EasyManua.ls Logo

ACP P2002228M - Page 7

ACP P2002228M
7 pages
Print Icon
To Previous Page IconTo Previous Page
To Previous Page IconTo Previous Page
Loading...
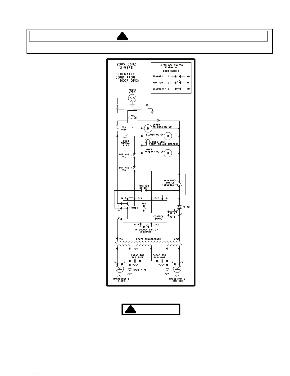
Wiring and Schematic Diagrams
!
WARNING
To avoid risk of electrical shock, personal injury, or death, disconnect power to oven and discharge capacitor
before servicing, unless testing requires power.
January 2013 16500051
©2013 ACP, Inc.
7
FA F F FA
230V 50HZ
3-WIRE
SCHEMATIC
CONDITION:
DOOR OPEN
CAPACITOR
RESISTOR
CAPACITOR
RESISTOR
M
BLOWER MOTOR
COM
POWER
AUX
CONTROL
BOARD
MONITOR
SWITCH
MAGNETRON 1
(TOP)
MAGNETRON 2
(BOTTOM)
BOT MAG
TCO
POWER TRANSFORMER230
M
OVEN LIGHT
(NOT ON ALL MODELS)
M
INTERLOCK
SWITCH
(SECONDARY)
LOWER
ANTENNA MOTOR
UPPER
ANTENNA MOTOR
UPPER
ANTENNA MOTOR
TOP MAG
TCO
20A
FUSE
LINE
FILTER
INTERLOCK SWITCH
(PRIMARY)
OVEN
THERMAL
LINK
POWER
CORD
RECTIFIER
CC
C NOSECONDARY
DOOR CLOSED
INTERLOCK SWITCH
SCHEMATIC
NCMONITOR
NOCPRIMARY
J1-2
E4
J4-6 J2-3 J2-2
E1
J4-1
J1-1
E3
G
TRIAC
2
J2-5
J2-4
1
20043401
DANGER
!
HIGH VOLTAGE
DEC14E2 DEC18E2

Related product manuals