EasyManua.ls Logo

ACR Electronics AIS - Page 70

ACR Electronics AIS
87 pages
Print Icon
To Next Page IconTo Next Page
To Next Page IconTo Next Page
To Previous Page IconTo Previous Page
To Previous Page IconTo Previous Page
Loading...
ACR ELECTRONICS INC.
SHEET
ACR PART NUMBER
5757 Ravenswood Road
Fort Lauderdale, FL 33312
-2-
2628
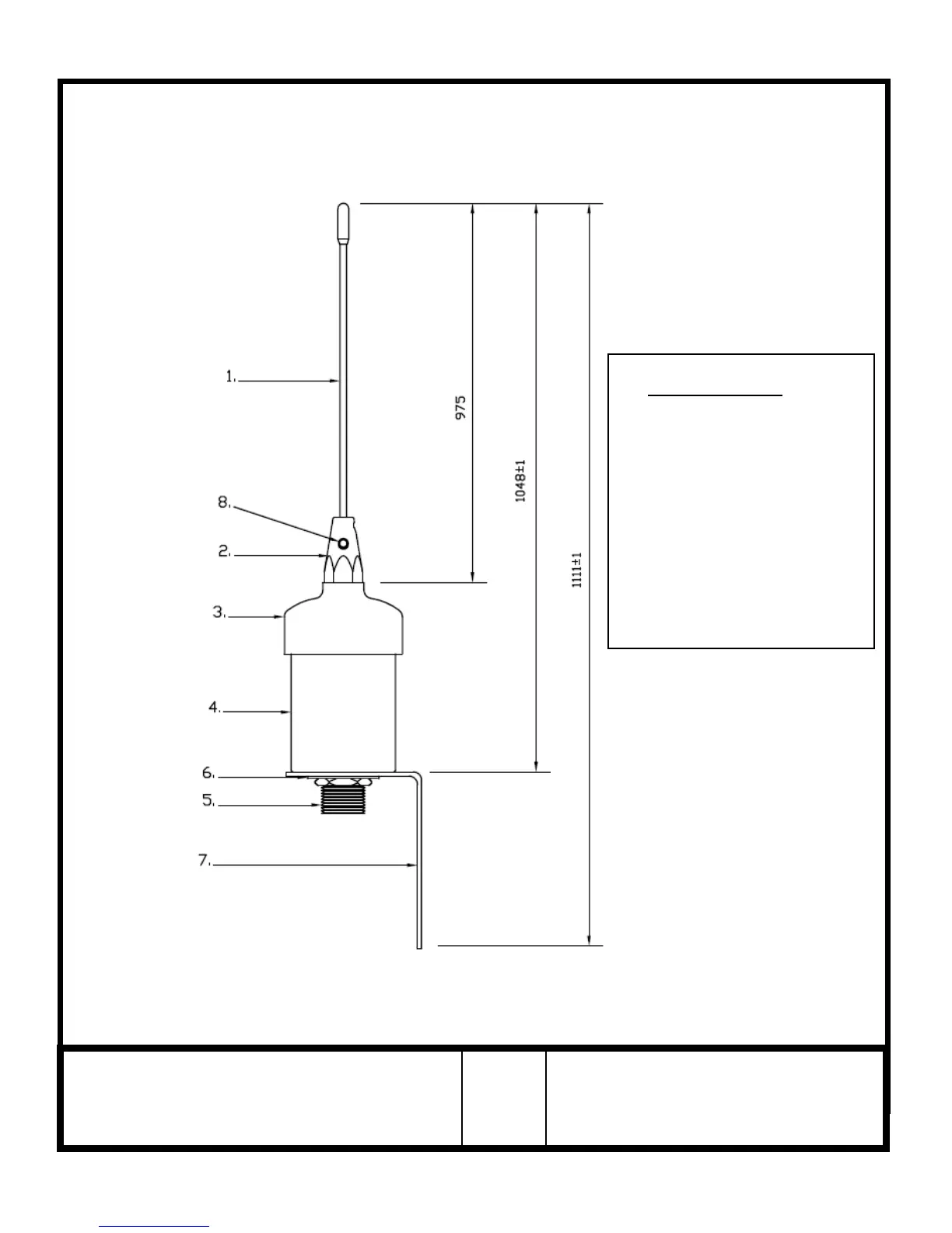
Antenna Dimension and Part Description:
Part Descriptions:
1.) Antenna Whip
2.) Base of whip
3.) Coil housing cover White
nylon.
4.) Coil housing Aluminum
White.
5.) Antenna Connector SO-
239, female.
6.) Locking washer and nut.
7.) Mounting bracket
8.) Set screw x2.
70
Y1-03-0204 Rev. L

Table of Contents

Related product manuals