EasyManua.ls Logo

Acson A5MSY18BR - Page 18

Acson A5MSY18BR
66 pages
Print Icon
To Next Page IconTo Next Page
To Next Page IconTo Next Page
To Previous Page IconTo Previous Page
To Previous Page IconTo Previous Page
Loading...
16
A5MSY_(i) Application Information
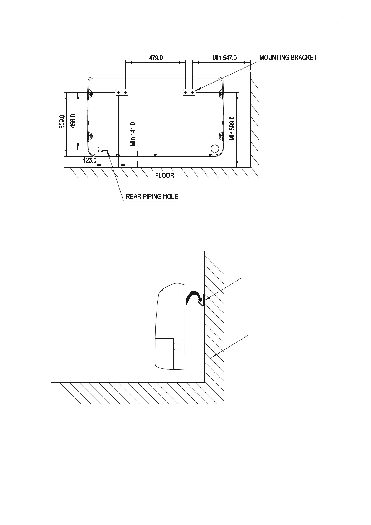
Floor Standing Installation
1. Refer to the dimension as illustrated when installing the mounting bracket.
2. Determine the pipe hose position using the rear piping hole. Drill the pipe hole at the slight downward
slant to the outdoor side.
WALL
MOUNTING BRACKET
HOCK THE UNIT ON THE
MOUNTING BRACKET

Related product manuals