EasyManua.ls Logo

Acson A5MSY18BR - Page 41

Acson A5MSY18BR
66 pages
Print Icon
To Next Page IconTo Next Page
To Next Page IconTo Next Page
To Previous Page IconTo Previous Page
To Previous Page IconTo Previous Page
Loading...
39
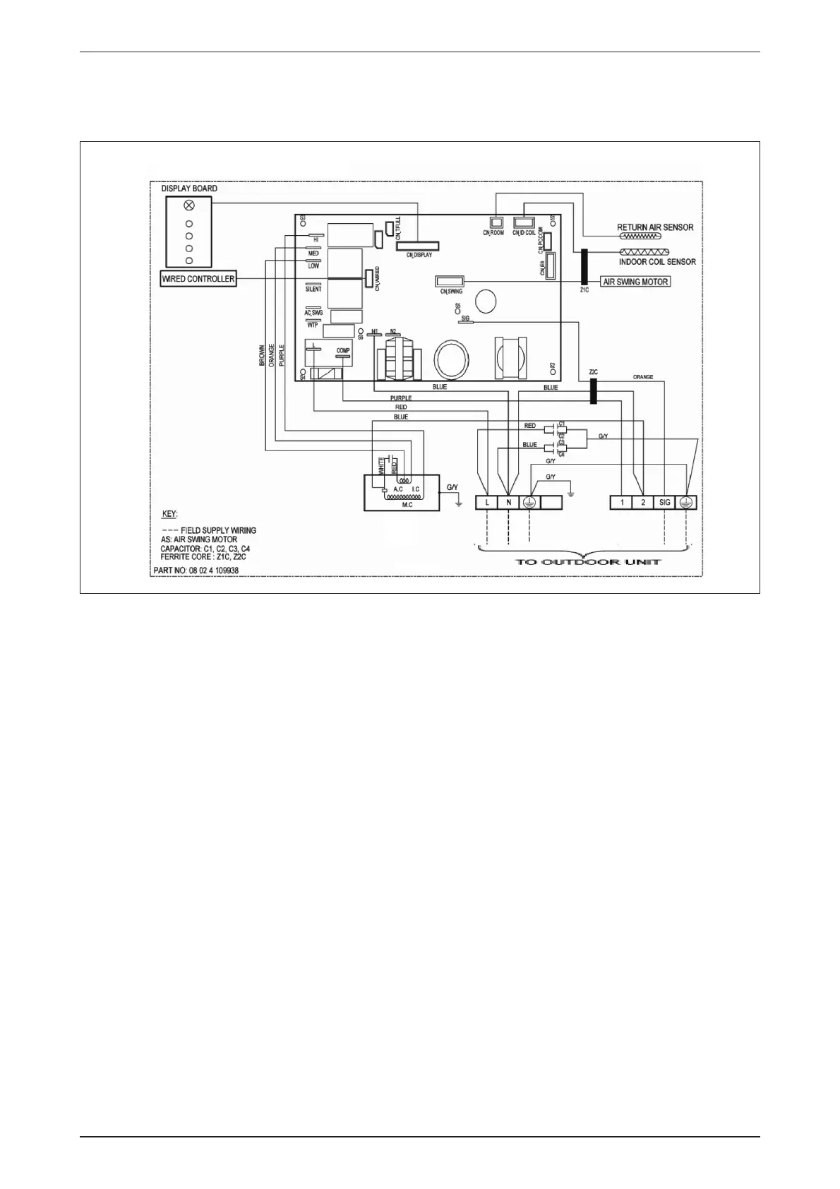
Wiring Diagram A5MSY_(i)
Indoor Unit
Model: A5CMY20ER

Related product manuals