EasyManua.ls Logo

Acson RCM 20 D - Page 68

Acson RCM 20 D
94 pages
Print Icon
To Next Page IconTo Next Page
To Next Page IconTo Next Page
To Previous Page IconTo Previous Page
To Previous Page IconTo Previous Page
Loading...
RCM 61/62C
Figure C
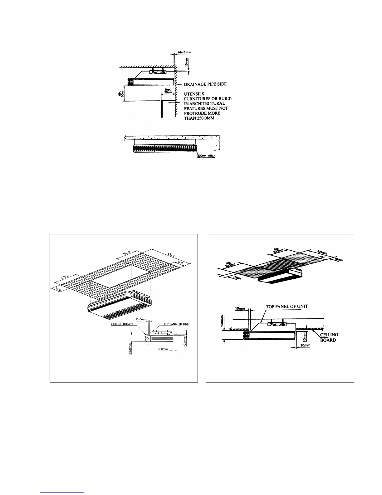
Provide the installation space as shown in Figure D.
RCM-D RCM 61/62C
Figure D
67

Related product manuals