EasyManua.ls Logo

ActronAir ELY700T - 26.02. 0-10 Analogue Output Compressor and 24 VAC Relay Output Indoor Fans

ActronAir ELY700T
92 pages
Print Icon
To Next Page IconTo Next Page
To Next Page IconTo Next Page
To Previous Page IconTo Previous Page
To Previous Page IconTo Previous Page
Loading...
Installation and Commissioning Guide
Split Tri-Capacity
67
Installation and Commissioning Guide 500-700 Tri-Capacity Split Ducted
Doc. No.0525-098 Ver. 2 210330
26.02. 0-10 Analogue Output Compressor and 24VAC Relay Output Indoor Fans
R
This drawing remains the intellectual property of Actron Engineering
Pty Ltd. Reproduction, modification and/or distribution are prohibited
without written consent.
Revision
0515-8803-2
A4
Size:
TRI-CAPACITY
Description:
Base
Model No:
Variation Code:
0-10V COMP & 24VAC IN-FAN
Variations:
B
Drawing No:
Drawn:
Date:
03-09-2014
22-03-2021
MH
JL
Approved:
Date:
Rev.
B
Description
0-10V STAGE CONTROL CHANGED
Date
22-03-2021
By
RL
PCR
PRJ378
ORIGINAL
A
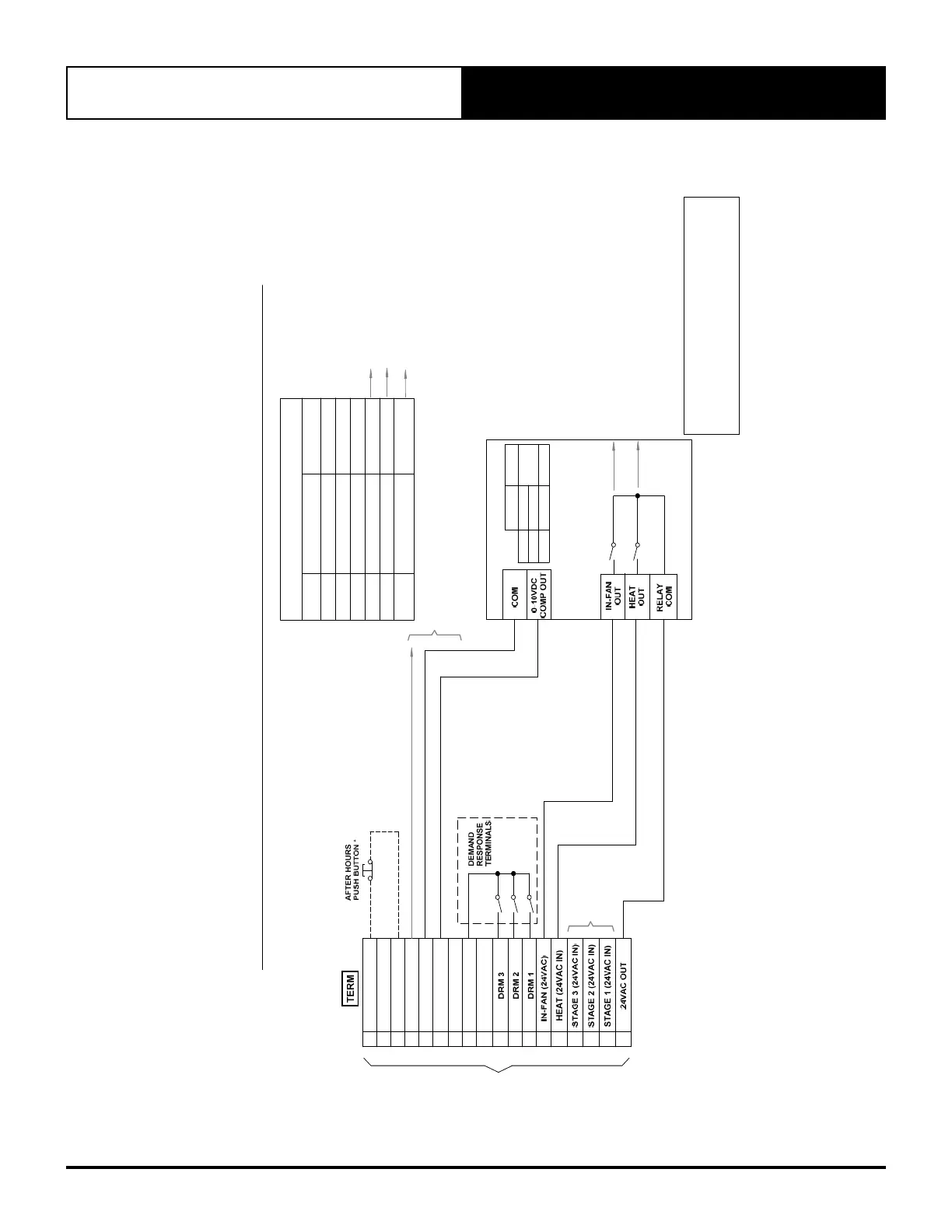
CM100 TRI-CAPACITY CONTROL SYSTEM WIRING DIAGRAM
3RD PARTY CONTROL INTERFACE CONNECTIONS
1
REMOTE ON/OFF
N/A
COMMON (GND)
COMMON (GND)
RTN AIR SENSOR (GND)
MULTI INPUT 1
MULTI INPUT 2
AFTER HOURS
10
7
6
8
9
5
4
3
2
14
16
13
15
12
11
RTN AIR SENSOR
17
18
* IMPULSE PUSH BUTTON N/C
CONNECTION SHOWN
* 5 SEC CONTACT BREAK REQUIRED
FOR AFTER HOURS ACTIVATION
3RD PARTY CONTROL
THERMOSTAT
24VAC INPUT FOR REVERSING VALVE (HEAT) OPERATION
STAGE CONTROL FOR HEAT DONE VIA COMP STAGE INPUTS
DRM1
DRM2
DRM3
DR COM
THESE TERMINALS USED FOR
DEMAND MANAGEMENT
VOTAGE FREE RELAY REQUIRED
DRM1 = COMPRESSORS OFF (0%)
DRM2 = COMPRESSOR 1 ONLY
(<50% INPUT POWER)
DRM3 = COMPRESSOR 2 ONLY
(<75% INPUT POWER)
SEE MULTI INPUT SELECTION TABLE FOR OPTIONS
& SEE INSTALLATION MANUAL FOR CONNECTION / SETUP DETAILS
(NOTE: SET MULTI INPUT 1 TO "D" - 0-10V COMP CONTROL
ONLY 1 OF 4 REMAINING OPTIONS CAN BE SELECTED
FOR MULTI INPUT 2 *)
ACTRONAIR
UNIT WIRING
3RD PARTY CONTROL INPUT TERMINALS
( 0-10V ANALOGUE COMP / RELAY OUT HEAT & INDOOR FAN
CONTROLLER REQUIRED )
TRI-CAPACITY CM100 COMMERCIAL CONTROLS
3RD PARTY THERMOSTAT CONTROLLER CONNECTION
0-10V ANALOGUE OUTPUT FOR COMPRESSOR & 24VAC RELAY OUTPUT FOR INDOOR FAN
THESE TERMINALS USED FOR 0-10V STAGE CONTROL ONLY
BOTH 0-10V & COM (GROUND) MUST BE CONNECTED
USE EITHER 0-10V STAGE CONTROL OR 24VAC STAGE
CONTROL - DO NOT USE BOTH
INDOOR FAN WILL RUN WHEN COMP INPUT IS ACTIVE
(AUTO MODE - SET CP05/10 CONTROL INTERFACE TO "UNIT ON" &
INDOOR FAN SETTING TO AUTO)
MULTI INPUT
MATRIX
DESCRIPTION
STAGE ON
D COMP STAGE CONTROL
IN-FAN SPEED CONTROL
C
STAGE 3
NIGHT MODE
Vin ≥ 9V
B
STAGE 2
ECONOMY MODE
5V ≤ Vin < 9V
A
STAGE 1
SUPPLY AIR TEMP
3V ≤ Vin < 5V
E
TYPE
STAGE OFF
0-10V ANALOGUE
DIGITAL INPUT
Vin ≤ 6V
DIGITAL INPUT
Vin ≤ 1V
SENSOR
0-10V ANALOGUE
MULTI INPUT SELECTION TABLE
"W"
OPTION
3P PROTECTION RELAY
OPTION - MULTI INPUT 2
DIGITAL INPUT
* FACTORY WIRED OPTION TO MULTI INPUT 2
WHEN "W" OPTION INSTALLED - NO ADDITIONAL
MULTI INPUT AVAILABLE
0-10V COMP STAGE CONTROL
DO NOT USE WHEN 24VAC IN-FAN INPUT
TERMINALS ARE CONNECTED
DO NOT USE
24VAC INPUT FOR INDOOR FAN -
FOR CONTINUOUS INDOOR FAN OPERATON USE THIS INPUT
(IE: INDOOR FAN REMAINS ON WHEN COMP CYCLED OFF)
SET CP05/10 CONTROL INTERFACE TO "UNIT OFF" & INDOOR
FAN SETTING TO CONTINUOUS
CONFIGURATION PROCEDURE
Compressor: Refer to Procedure 18.03
Fan: Refer to Procedure 18.02
GND

Table of Contents

Related product manuals