EasyManua.ls Logo

ActronAir ESP Plus SRV201E - 12. Zoning Cable Length and Specification; 12.01. ESP Plus

ActronAir ESP Plus SRV201E
48 pages
Print Icon
To Next Page IconTo Next Page
To Next Page IconTo Next Page
To Previous Page IconTo Previous Page
To Previous Page IconTo Previous Page
Loading...
27
Installation and Commissioning Guide
Split Ducted ESP Indoor Unit
Installation and Commissioning Guide - Split Ducted ESP Plus/Ultima Indoor Unit
Doc. No.0525-078 Ver. 2 190925
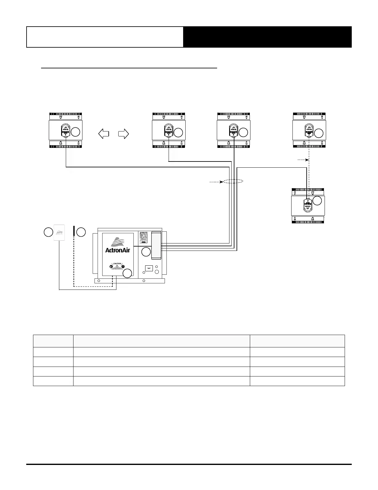
12. Zoning Cable Length and Specification
12.01. ESP Plus
TOTAL LENGTH OF ALL ZONING CABLE MUST NOT EXCEED 250 METRES ^
TOTAL CABLE LENGTH PER INDIVIDUAL ZONE MUST NOT EXCEED 100 METRES**
ITEM DESCRIPTION MAXIMUM CABLE LENGTH *^
2 to 3 Integrated Zone Barrel 3 to Zone Module 100 m
2 to 4A Maximum Cumulative Cable Length ** (per zone - 8 zone) 100 m
4 to 4A Zone Barrel 8 to Zone Barrel 9 (Piggy-Back) *** 95 m
1 to 5 Indoor PCB to Remote Sensor (Max. of 2 Optional Sensors) 50 m
*
**
***
^
^^
Suggested Maximum Cable Length.
Long runs beside Mains cables or TV antenna cables should be avoided where possible.
Diagram shown is a general presentation only. Refer to individual unit wiring diagram for complete connection details.
Maximum Cumulative Cable Length per individual zone must not exceed 100 m per zone.
For Example, 2 to 4A (Optional 8 Zones Piggy-Back Configuration), if 2 to 4 is 75 m, then 3 to 3A must be less than or equal to
25 m to be within the 100m maximum length.
Recommended maximum cable length, provided total of preceding and subsequent cable connections are only 5 m.
Total Cumulative length of all the aggregate cable must not exceed 250 meters. Consult ActronAir for longer cable length
requirement.
Total of 10 Zone Barrels are allowed for 8Z-24V, and a maximum of 4 Zone Barrels are allowed per individual zone.
INTEGRATED ZONE BARRELS
(1-Zone Up To 8-Zone Options / Max. of 10 Zone Motors per System ^^)
OPTIONAL ^^
PIGGYBACK
CONFIGURATION
4
3
3
3
OPTIONAL
1 ZONE - UP - TO - 8 ZONES
4A
CAT5E Cable with Basic
Non-Moulded RJ45 Plug
CAT5E Cable with Basic
Non-Moulded RJ45 Plug
8Z-24V
8 - ZONE MODULE
(Factory Supplied and Fitted)
INDOOR UNIT
2
8  ZONE
MODULE
R-410A
“CAUTION”
PLEASE ENSURE THERE IS
NO GAS / PRESSURE IN THE
FAN COIL UNIT BEFORE
REMOVING COPPER END CAPS.
3570-043
1
55
LM-RS-2
AERSS

Related product manuals