EasyManua.ls Logo

ADC AD-464 - Safety Devices

ADC AD-464
96 pages
Print Icon
To Next Page IconTo Next Page
To Next Page IconTo Next Page
To Previous Page IconTo Previous Page
To Previous Page IconTo Previous Page
Loading...
22
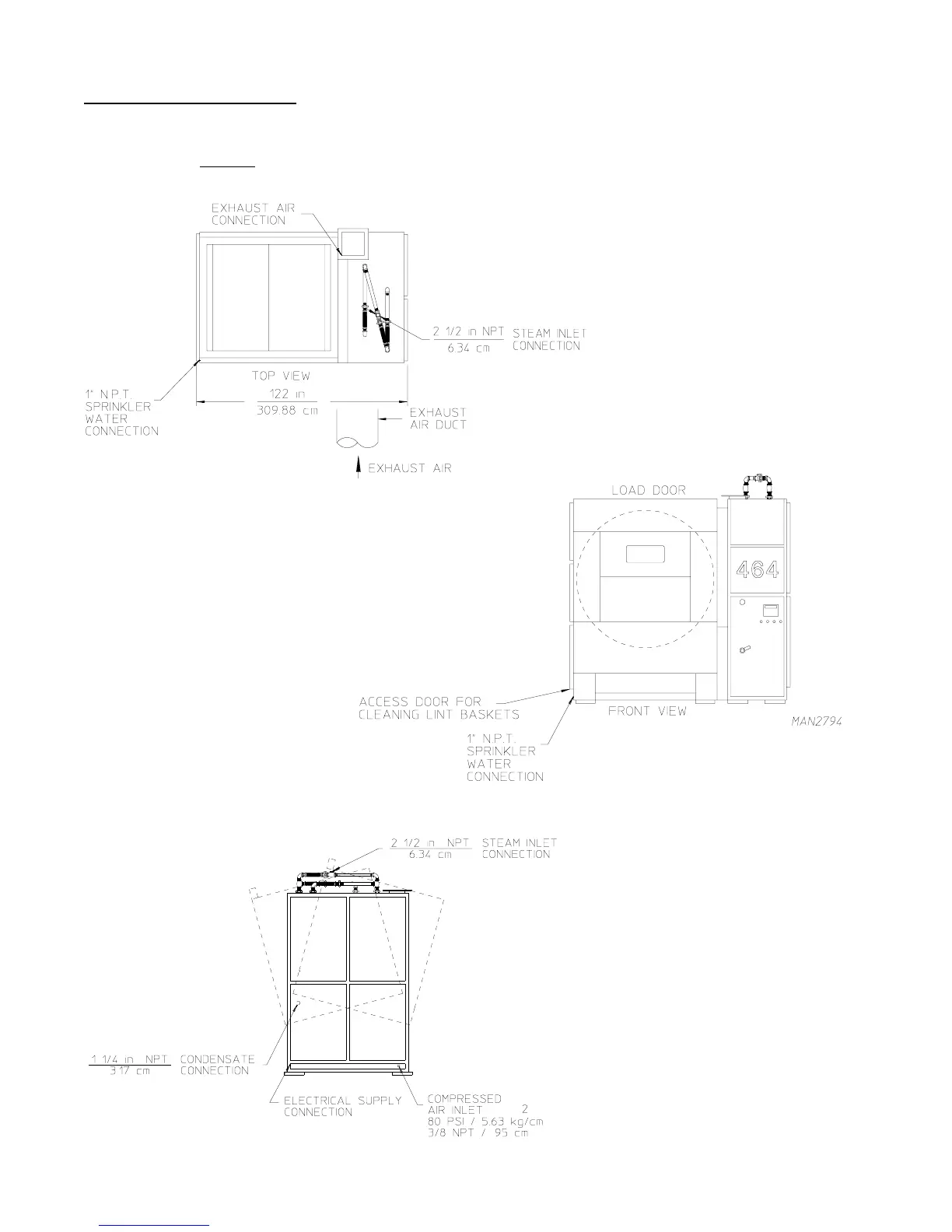
D. SAFETY DEVICES
The dryer is equipped with numerous safety devices to ensure that the dryer operates safely. The chart on the
following page (
page 23) lists each device with its location, function, computer display message, and result of
tripping.

Related product manuals