EasyManua.ls Logo

AEG VB 40.5 - Page 27

AEG VB 40.5
41 pages
Print Icon
To Next Page IconTo Next Page
To Next Page IconTo Next Page
To Previous Page IconTo Previous Page
To Previous Page IconTo Previous Page
Loading...
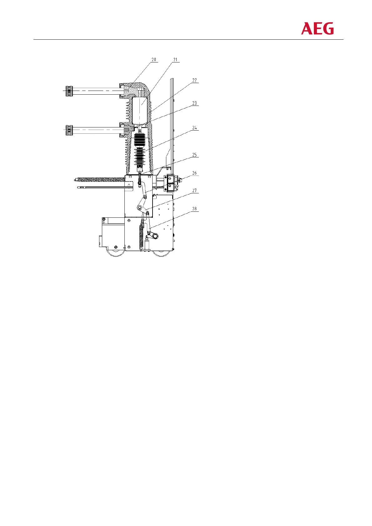
23
20 上出线
21 真空灭弧室
22 固封极
23 下出线
24 绝缘拉
25 螺杆
26 连板
27 拐臂
28 连板
3 路器内部结构图(落地式)
󾙔-󾙔-󾙓 储能
断路器合闸所需要的能量由合闸弹簧提供,储能即可以由电机电动完成,也可以使⽤储能⼿柄⼿动完
成。
储能操作:由固定在框架上的储能电机󾙙进⾏,或者将储能⼿柄插⼊⼿动储能轴󾙚中顺时针摇动进⾏。
电动储能时由电机输出轴󾙛带动齿轮系统进⾏,⼿动储能时通过⼿动储能轴󾙚带动齿轮系统进⾏。⼩齿轮转
动时,带动⼤齿轮⼀起运动,从而拉动储能弹簧进⾏储能。到达储能位置时,储能保持挚子顶住储能保持
块,使离合器分离,保持储能状态,储能指示牌显示拉簧拉伸状态,储能完成。微动开关切断储能电机供
电电源,此时断路器处于合闸准备状态
󾙔-󾙔-󾙔 合闸
在合闸过程中,不论⽤⼿动按下“合闸”按钮或远⽅操作使合闸线圈󾙓󾙔动作,均可使储能保持挚子
离储能保持块,在合闸弹簧力的作⽤下,带动凸轮转动,凸轮又驱动连杆机构带动绝缘拉杆󾙔󾙖和灭弧室󾙔󾙓
的动触头进⾏合闸。
合闸动作完成后分闸保持挚子与分闸半轴保持扣接状态,同时储能指示牌、辅助开关复位,电机供电
回路接通。若外接电源也接通则再次进⼊储能状态,连杆拉动合分指示牌,指示“┃”的位置,同时拉动
计数器实现计数,传动连杆拉动主轴,带动辅助开关切换。

Related product manuals