EasyManua.ls Logo

AERMEC CR 51 - Page 29

AERMEC CR 51
40 pages
Print Icon
To Next Page IconTo Next Page
To Next Page IconTo Next Page
To Previous Page IconTo Previous Page
To Previous Page IconTo Previous Page
Loading...
29
40 40
8080
C
D
B
10
10
A
EEFFG
LIH
10
40
9
15
90 90
Ø 1/2"
M
127 466
50
Ø ( )
Ø ( )
35
·
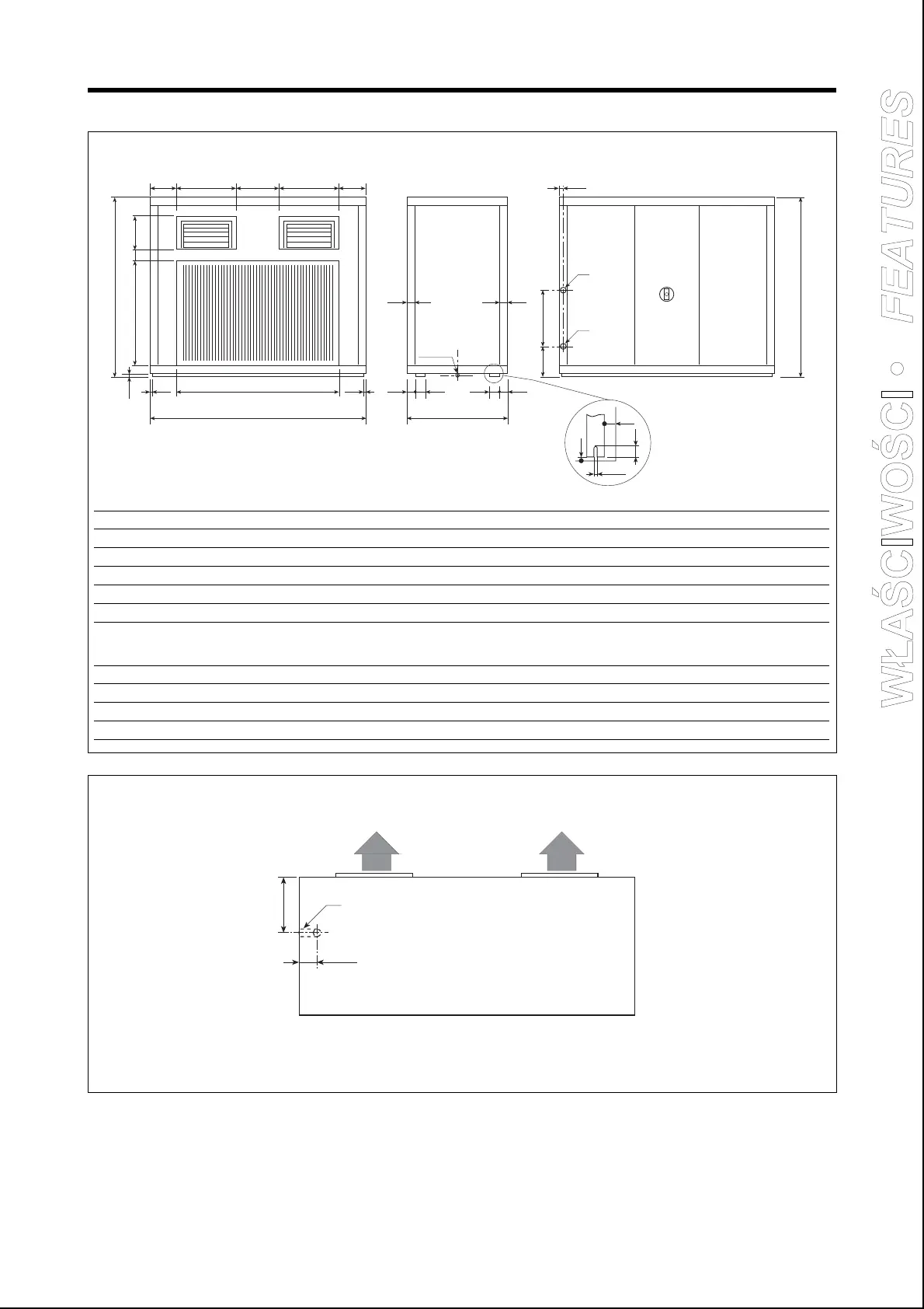
Mod. A B C D E F G H I L M
CR 31 - 31 H 975 950 600 975 153 252 140 178 93 575 770
CR 51 - 51 H 975 1300 600 975 159 351 280 198 73 575 1120
CR 71 - 71 H 1200 1500 700 1200 185 415 300 231 116 725 1320
CR 101 - 101 H 1310 1750 850 1310 204 491 360 264 141 775 1570
CR 151 - 151 H 1310 2000 850 1310 204 577 438 314 91 775 1820
Mod. CR 31 51 71 101 151 31 H 51 H 71 H 101 H 151 H
11111222 2 2
22222111 1 1
Ø 1" 1" 1"
1
/
2
1"
1
/
2
1"
1
/
2
1" 1" 1"
1
/
2
1"
1
/
2
1"
1
/
2
175
32
Ø 1/2"
WYMIARY DIMENSIONS (mm)
PRZYàĄCZA WODNE - WATER CONNECTIONS
Wlot wody Water inlet
Wylot wody Water outlet
Dla modeli CR 71 - 101 - 151 - 71 H - 101 H - 151 H przyáącze opróĪniania skroplin jest dostĊpne po obu stronach urządzenia.
On models CR 71 - 101 - 151 - 71 H - 101 H - 151 H the condensate discharge connection is available on both sides of the unit.
OPRÓĩNIANIE SKROPLIN CONDENSATE DISCHARGE
WàAĝCIWOĝCI
EATU
E

Related product manuals