EasyManua.ls Logo

AERMEC FCXI - Page 88

AERMEC FCXI
Print Icon
To Next Page IconTo Next Page
To Next Page IconTo Next Page
To Previous Page IconTo Previous Page
To Previous Page IconTo Previous Page
Loading...
FCXI_AS_U
88
IFCXIIJ 1501 - 5386400_00
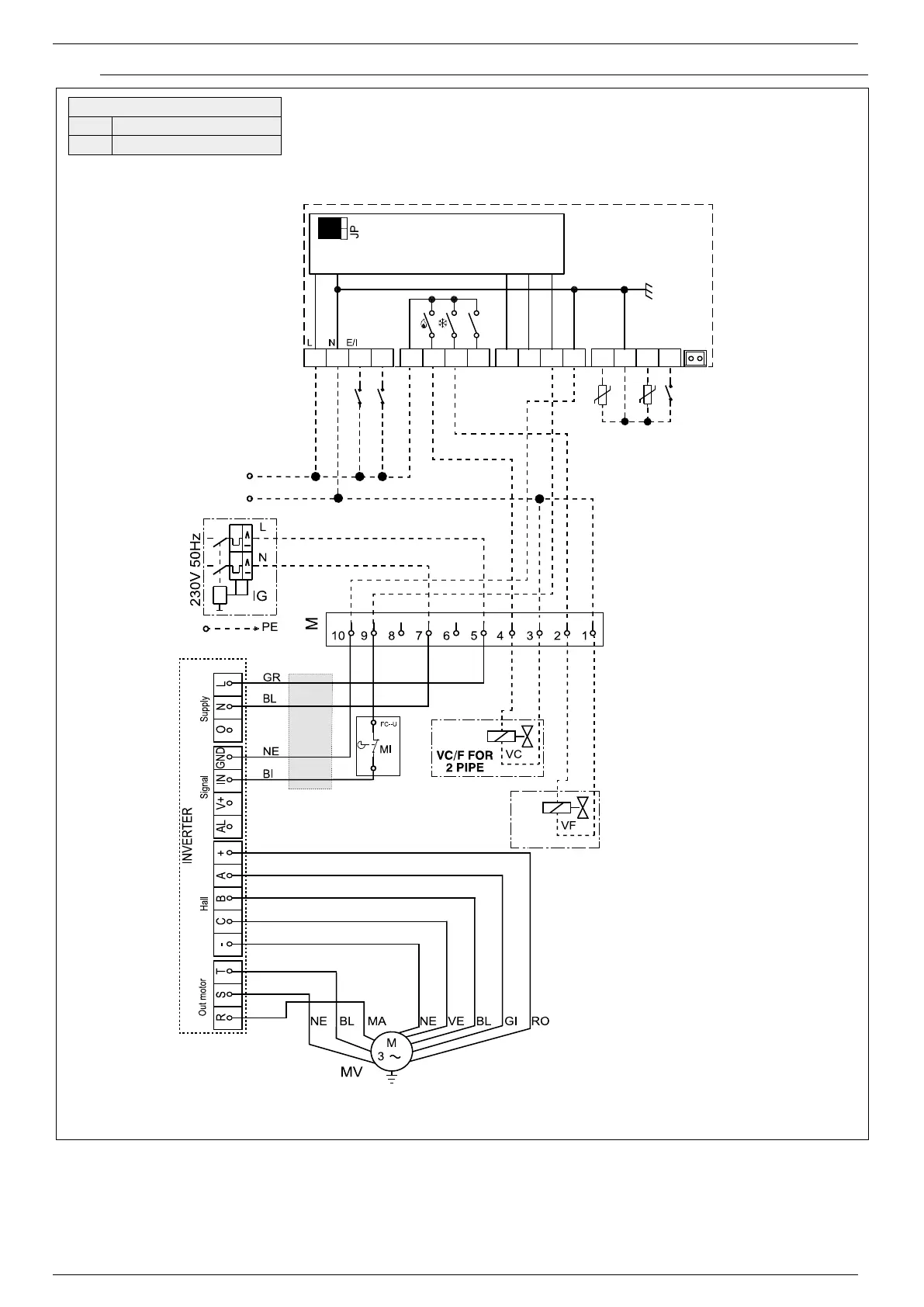
Gli schemi elettrici sono soggetti ad un continuo aggiornamento, è obbligatorio quindi fare riferimento a quelli a bordo macchina.
All wiring diagrams are constantly updated. Please refer to the ones supplied with the unit.
Nos schémas électriques étant constamment mis à jour, il faut absolument se référer à ceux fournis à bord de nos appareils.
Die Schaltpläne werden ständig aktualisiert, deswegen muss man sich stets auf das mit dem Gerät gelieferte Schaltschema beziehen.
El cableado de las máquinas es sometido a actualizaciones constantes. Por favor, para cada unidad hagan referencia a los esquemas suministrados con la misma.
Schemi elettrici • Wiring diagrams • Schemas electriques • Schaltpläne • Esquemas eléctricos
*SW=SA=
SWAI
SW*
CF
WMT21
L
N
3
4
5
6
7
8
9
10
11
12
13
14
15
16
E/I
RDC
V FAN
V COOL
V HEAT
2
24V
50Hz
24V
0V
SA*
24V
24V
FCXI80
FCXI84
WMT21 + VCF (24V)
FCXI 80
FCXI 84

Table of Contents

Related product manuals