EasyManua.ls Logo

AERMEC NRP 0550 - 24 Posi on of Hydraulic Connec Ons

AERMEC NRP 0550
52 pages
Print Icon
To Next Page IconTo Next Page
To Next Page IconTo Next Page
To Previous Page IconTo Previous Page
To Previous Page IconTo Previous Page
Loading...
39Aermec cod. 5806715_00 12.01
NRP 0200-0750
EN
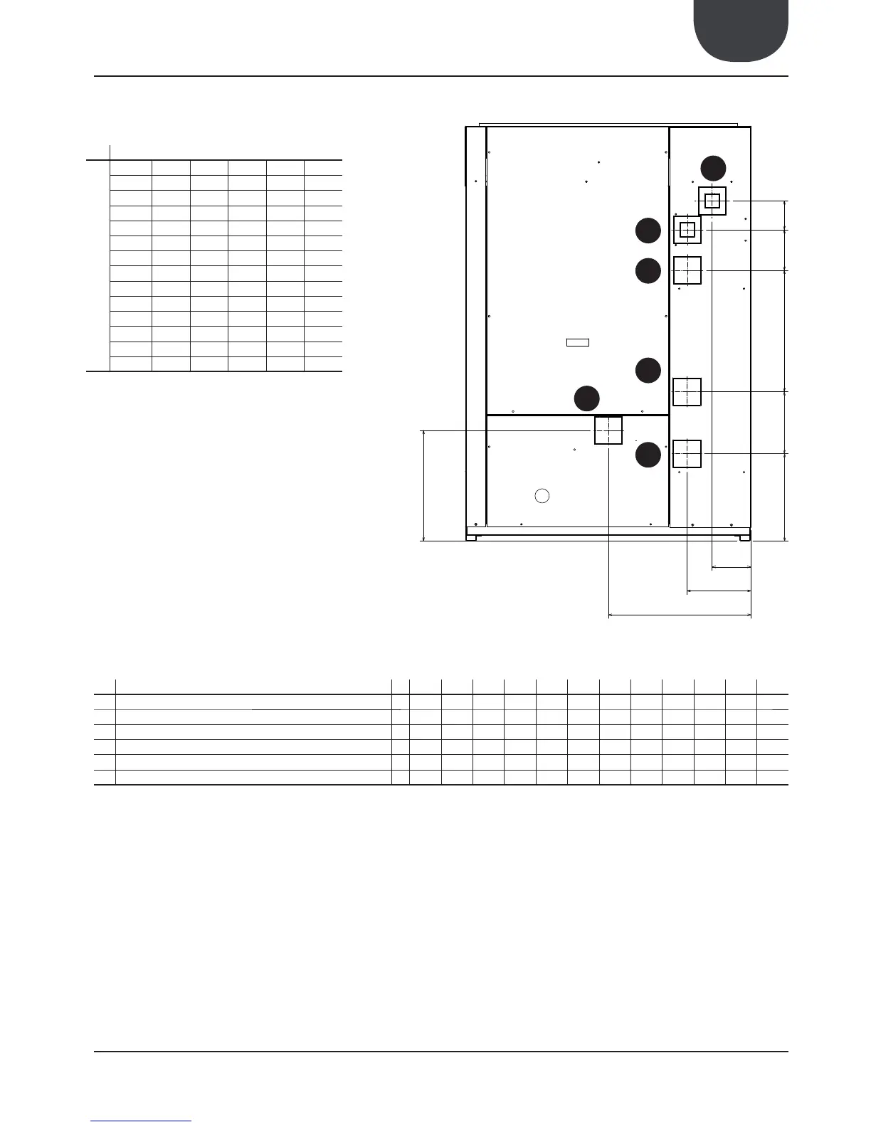
24. POSITION OF HYDRAULIC CONNECTIONS
110157470240340
150
248
550
428
1
2
3
4
5
6
2 and 4- pipe system KEY
0200 0240 0280 0300 0330 0350 0500 0550 0600 0650 0700 0750
1 Return from system (vers. P1-P2-P3-P4)
ø 2”½ 2”½ 2”½ 2”½ 2”½ 2”½ 2”½ 2”½ 2”½ 2”½ 2”½ 3”½
2 Return from system (vers. °)
ø 2”½ 2”½ 2”½ 2”½ 2”½ 2”½ 2”½ 2”½ 2”½ 2”½ 2”½ 3”½
3 Flow to system (vers. ° | 01…08)
ø 2”½ 2”½ 2”½ 2”½ 2”½ 2”½ 2”½ 2”½ 2”½ 2”½ 2”½ 3”½
4 Return from system (vers. 01…08)
ø 2”½ 2”½ 2”½ 2”½ 2”½ 2”½ 2”½ 2”½ 2”½ 2”½ 2”½ 3”½
5 Return from DHW system | heating system side
ø 2”½ 2”½ 2”½ 2”½ 2”½ 2”½ 2”½ 2”½ 2”½ 2”½ 2”½ 3”½
6 Flow to DHW system | heating system side
ø 2”½ 2”½ 2”½ 2”½ 2”½ 2”½ 2”½ 2”½ 2”½ 2”½ 2”½ 3”½
POSSIBLE CONFIGURATIONS BETWEEN HYDRONIC KITS
recovery hydronic unit
system hydronic unit
° R1R2R3R4
° ok ok ok ok ok
01 ok na na na na
02 ok na na na na
03 ok na na na na
04 ok na na na na
05 ok na na na na
06 ok na na na na
07 ok na na na na
08 ok na na na na
P1 ok ok ok ok ok
P2 ok ok ok ok ok
P3 ok ok ok ok ok
P4 ok ok ok ok ok

Table of Contents

Related product manuals