EasyManua.ls Logo

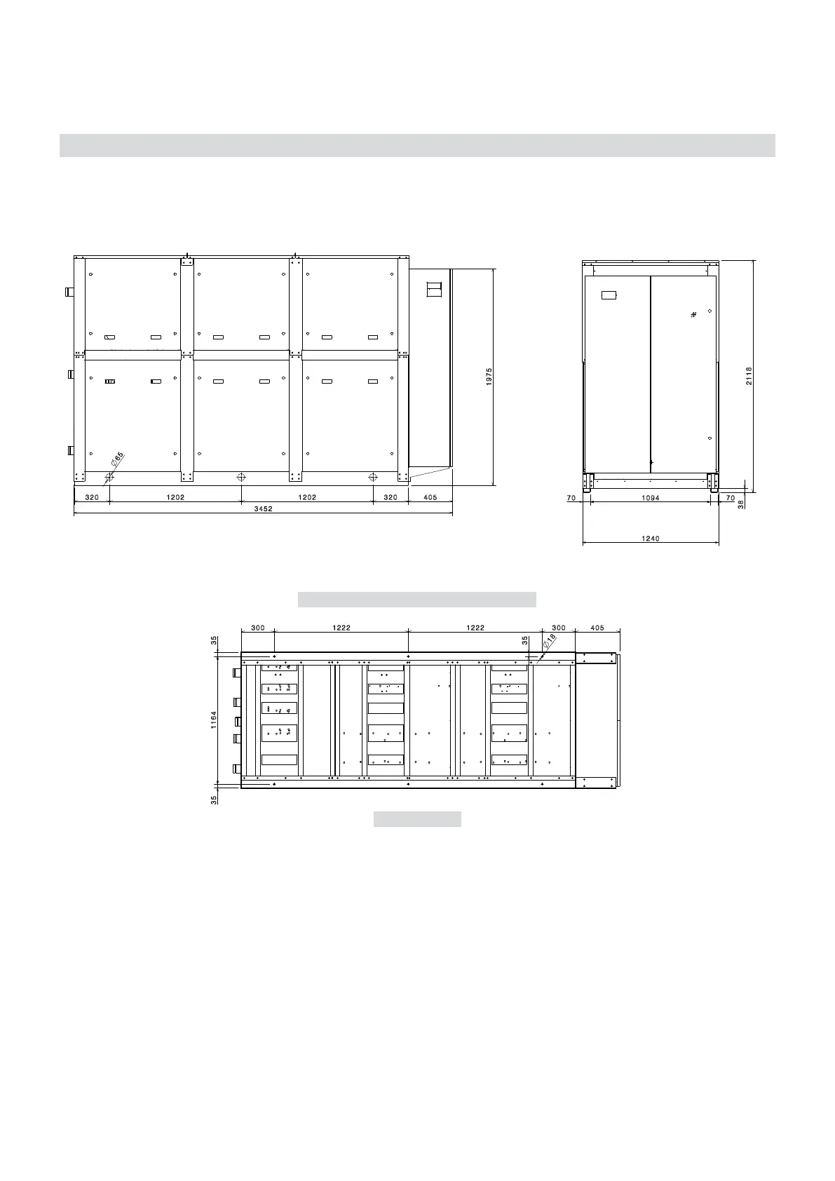
AERMEC NXP 0650 - NXP 0500-0750 (VERSION L) WITH PUMP Dimensions

AERMEC NXP 0650
40 pages
Print Icon
To Next Page IconTo Next Page
To Next Page IconTo Next Page
To Previous Page IconTo Previous Page
To Previous Page IconTo Previous Page
Loading...
14
NXP 0500÷0750 (VERSION L) WITH PUMP
bottom view
ANTIVIBRANT POSITION MOUNTS

Other manuals for AERMEC NXP 0650

Related product manuals