EasyManua.ls Logo

Aertesi SOFFIO Series - 4-Installation

Aertesi SOFFIO Series
15 pages
Print Icon
To Next Page IconTo Next Page
To Next Page IconTo Next Page
To Previous Page IconTo Previous Page
To Previous Page IconTo Previous Page
Loading...
AERTESI srl SOFFIO INSTALLATION USE AND MANTEINANCE MANUAL
Page 4 AER.MIU.GB.SOFFIO.000.02.15
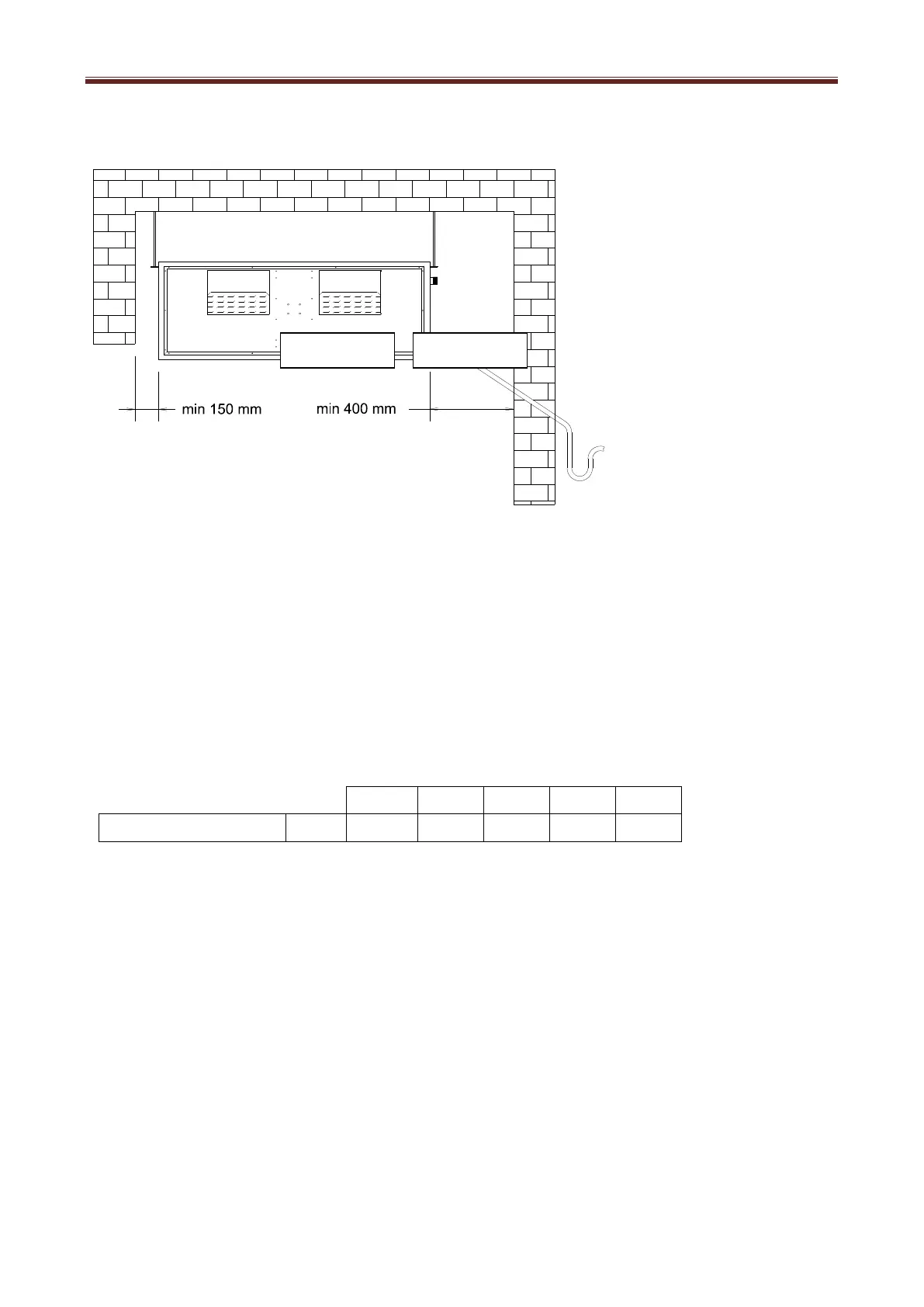
Meet the following minimum spaces that are needed for installation and maintenance. It’s also need a
minimum space on the suction side (filter side), at least equal to the height of the unit.
Minimum respect distance
4-INSTALLATION
Remove the cardboard packaging and / or plastic film and all guards before installation.
The machine must always be handled by two people and / or with suitable lifting means for the larger sizes.
Apply four or six threaded rods M8 (not provided) to the ceiling with bolts (not supplied) or other fasteners.
Make sure that the components used are rated to support the weight of the machine.
21
31/38
41/81
91
101
Unit weight
kg
70
90
135
175
190
The length of the bars depends on the distance between the ceiling and the false ceiling. The spacing of the
bars must comply with the measures of the drawing below.
Min 400mm