EasyManua.ls Logo

AGA AMPRO36DF - 9 Circuit Diagram

AGA AMPRO36DF
48 pages
Print Icon
To Next Page IconTo Next Page
To Next Page IconTo Next Page
To Previous Page IconTo Previous Page
To Previous Page IconTo Previous Page
Loading...
42
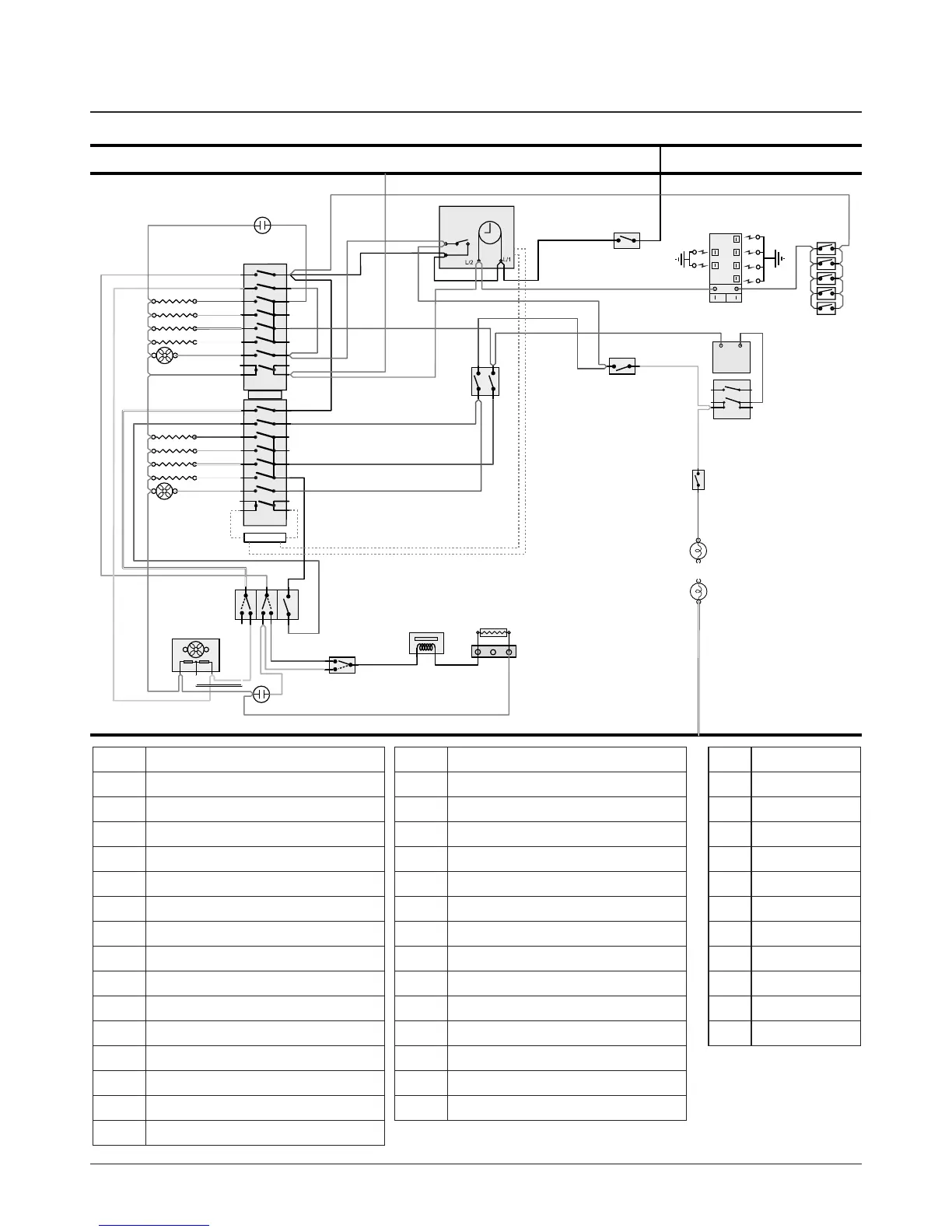
9. Circuit Diagram
6
P6
5 P5
4
P4
7 P7
8 P8
2
P2
1
P1
3 P3
a
b
e
f
c
d
1
2
v
32
31
21
22
24
14
12
1 2
1
2
P2
P1
A1
A2/B1
B2
6
P6
5 P5
4
P4
7 P7
8 P8
2
P2
1
P1
3 P3
11
or
gy
b
gy
w
y
or
r
br
w
b
gy
w
y
or
r
r
r
br
br
b
v
bk
b
r
bk
v
br
v
bk
r
r
or
w
bk
br w or v gy
gy w r
r
or
or
v
r
v
br
br
v
br
or
or
or
v
v
v
b
w
w
r v
r
br
bk
bk
r
bk bk
bk
w
b
bk bk
br
v
br
br
br
N
L1
L2
A1
A2
B1
B2
K
G
H3
H2
H2
J
M
O
P
D
Q2
R
I
Q1
H1
Q3
C1
C2
C3
C4
C5
F1
F2
F3
F4
F5
Code Description
A1 Multi-function oven master switch
A2 Multi-function oven drone switch
B1 Oven thermostat
B2 Oven front switch
C1 Right-hand oven base element
C2 Right-hand oven top outer element
C3 Right-hand oven top inner element
C4 Right-hand oven fan element
C5 Right-hand oven fan
D Cooling fan (2 speed)
F1 Left-hand oven base element
F2 Left-hand oven top outer element
F3 Left-hand oven top inner element
F4 Left-hand oven fan element
F5 Left-hand oven fan
Code Color
bl Blue
br Brown
bk Black
or Orange
r Red
v Violet
w White
y Yellow
g/y Green/yellow
gr Grey
r(f) Red (ag)
Code Description
G Oven protect thermostat
H1 Oven neon
H2 Oven light
H3 Oven light switch
I Door lock neon
J Ignition spark generator
K Oven divider switch (In)
M Ignition switches
O Cooling fan fail cut-out
P Pyrolytic thermostat
Q1 Lock cam switch
Q2 Lock motor
Q3 Lock motor resistor
R Clock / oven timer

Table of Contents

Related product manuals