EasyManua.ls Logo

AGA EC - Regulatory Compliance and Installation

AGA EC
28 pages
Print Icon
To Next Page IconTo Next Page
To Next Page IconTo Next Page
To Previous Page IconTo Previous Page
To Previous Page IconTo Previous Page
Loading...
4
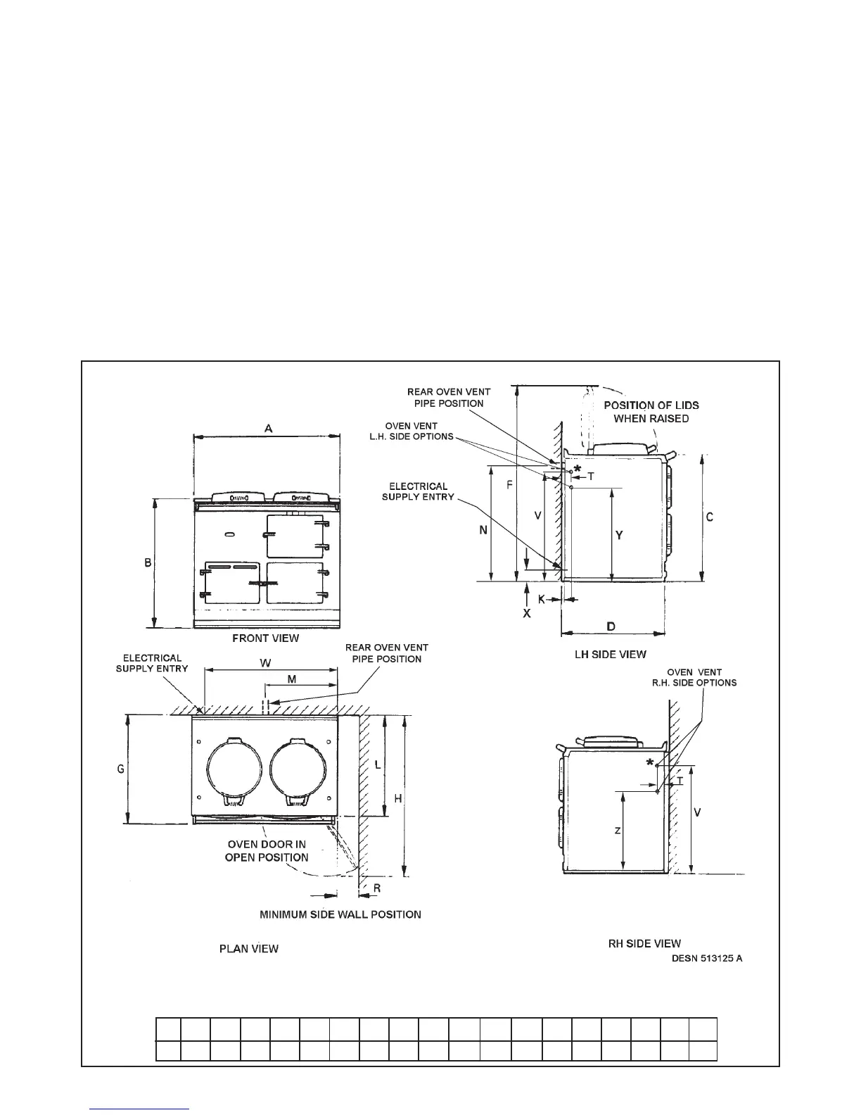
The top of the hearth must be of non-combustible material thickness of 12mm.
The wall behind the cooker must be of non-combustible material for a minimum thickness of 25mm.
If the oven vent pipe passes through combustible material, there must be an airgap of at least 25mm around the pipe
preferably wrapped with insulation material.
The appliance oven venting pipe can be achieved up to a maximum length of 6 metres, through an outside wall or unused
flue etc. Great care must be taken in all-timber houses.
Tiling
When the cooker is to stand in a recess, or against a wall which is to be tiled, in no circumstances should the tiles overlap
the cooker top plate.
Installation Requirements
The installation of the cooker must be in accordance with the relevant requirements of the IEE Wiring Regulations and
Building Regulations.
It should be in accordance also with any relevant requirements of the local authority.
In your own interest, and that of safety to comply with the law, all appliances should be installed by an authorised AGA
distributor, in accordance with the relevant regulations.
ABCDFGHKLMNR
116
TVWXYZ
mm
987 889 851
679
1330
756
1125 3
698 484 816 52 790 873 55 699 662
Fig. 1
EC-LMV MODEL
* THIS HOLE IF REQUIRED FOR OVEN VENT PIPE IS TO BE CUT ON SITE IN THE LEFT OR
RIGHT HAND SIDE PANEL.

Related product manuals