EasyManua.ls Logo

AGA EC - Operational Instructions; Electrical Test Procedure

AGA EC
28 pages
Print Icon
To Next Page IconTo Next Page
To Next Page IconTo Next Page
To Previous Page IconTo Previous Page
To Previous Page IconTo Previous Page
Loading...
6
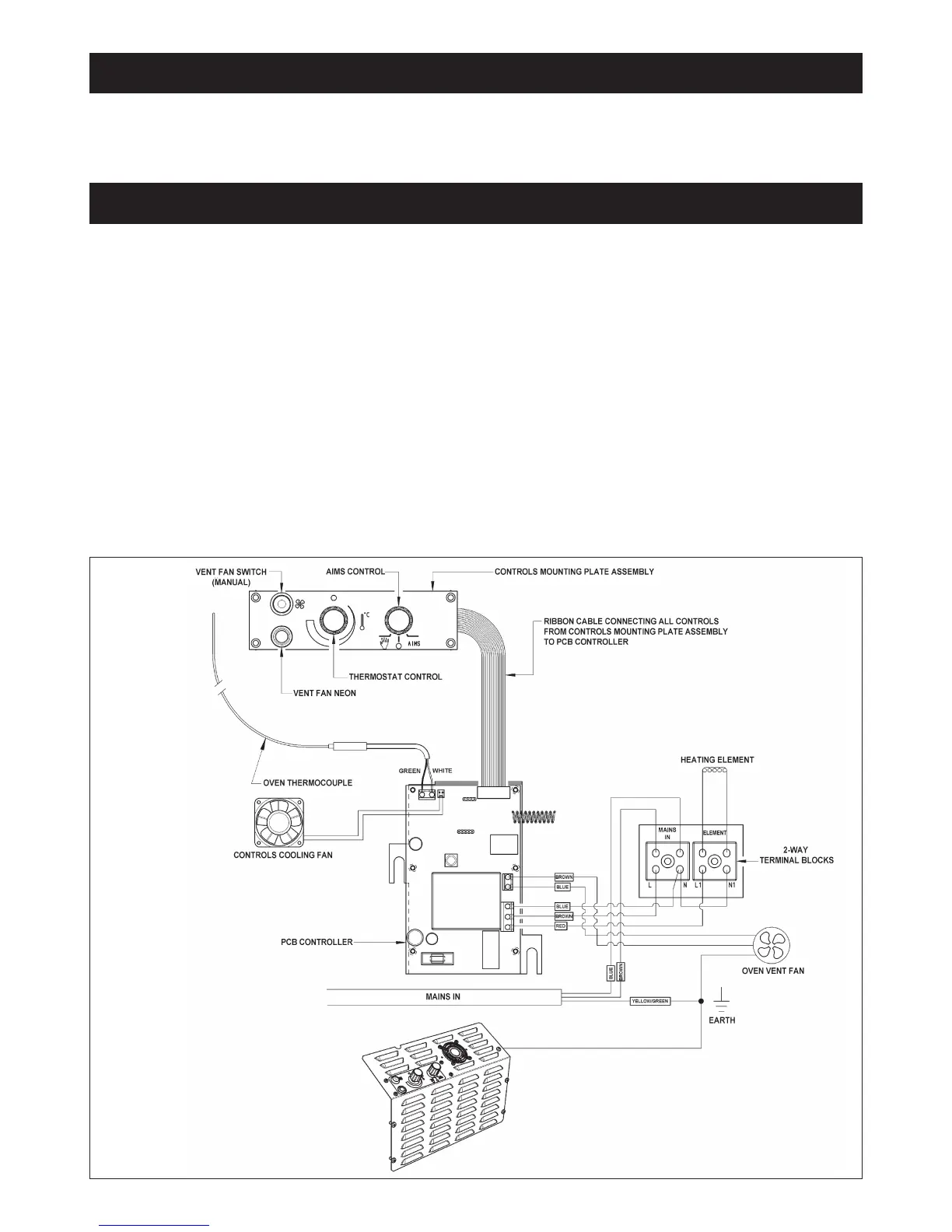
Fig. 2
Final Electrical Test using (CLARE) and Flash Test
Flash Test Procedure
(Earth Appliance Test Simulation)
1. Select 1250v Flash Test on Clare Test equipment.
2. Plug the 13 amp supply plug into the test equipment.
3. Depress the red ‘Test Button’ for 3 seconds.
4. A ‘Pass’ light will illuminate.
5. If the appliance fails the test, re-check all circuits and correct the fault and re-test the appliance.
6. Disconnect from the test equipment and connect cooker to its permanent supply.
7. A full load test will be performed using a clamp meter connected to the incoming supply.
NOTE: The test results 10.5/11 amps normal operation.
8. Make notes of results and disconnect all leads.
ELECTRICAL TEST PROCEDURE
INSTRUCTIONS
Hand this Owners Manual to the User for retention and instruct in the safe operation of the appliance.
Also advise the user that, for continued efficient and safe operation of the appliance that servicing is carried out at intervals
recommended by the Aga distributor.

Related product manuals