EasyManua.ls Logo

AGFA DX-D 600 - Page 36

AGFA DX-D 600
190 pages
Print Icon
To Next Page IconTo Next Page
To Next Page IconTo Next Page
To Previous Page IconTo Previous Page
To Previous Page IconTo Previous Page
Loading...
DX- D 600
User Manual
0242F EN 20181218
28
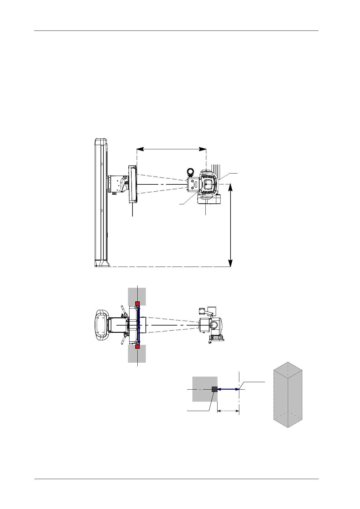
X-Ray equipment specified for any radiological examination that requires the
operator or staff to be close to the patient during normal use (e.g., some
pediatric examinations or other types of examination for patients that may
require assistance), shall have at least one Significant Zone of Occupancy”for
the use of the operator and staff, designated as follows:
Illustration 2-1
Radiographic Examination on the RAD Wall Stand DR
SID 100 cm
Focal Spot
1400 mm
S1 S2
S
S = SIGNIFICANT ZONE OF OCCUPANCY
MINIMUM AREA 60 x 60 cm
MINIMUM HEIGHT ABOVE THE FLOOR 200 cm
SIGNIFICANT ZONE OF OCCUPANCY
AT THE RIGHT SIDE OF THE RAD
WALL STAND DR
X-ray Tube
Tube Support & Collimator
X-ray Receptor
SIGNIFICANT ZONE OF OCCUPANCY
ATTHELEFTSIDEOFTHERADWALL
STAND DR
Focal Spot
S
50 cm
Dosi meter
Phantom

Related product manuals