EasyManua.ls Logo

AIREDALE CCW 18 - Page 12

Default Icon
24 pages
Print Icon
To Next Page IconTo Next Page
To Next Page IconTo Next Page
To Previous Page IconTo Previous Page
To Previous Page IconTo Previous Page
Loading...
12
The SLIMLINE PERFORMER Ceilin
g
Cassette
Ductless Mini-S
p
lit
Technical Manual : AIR 8-105.5
Ceiling Cassette
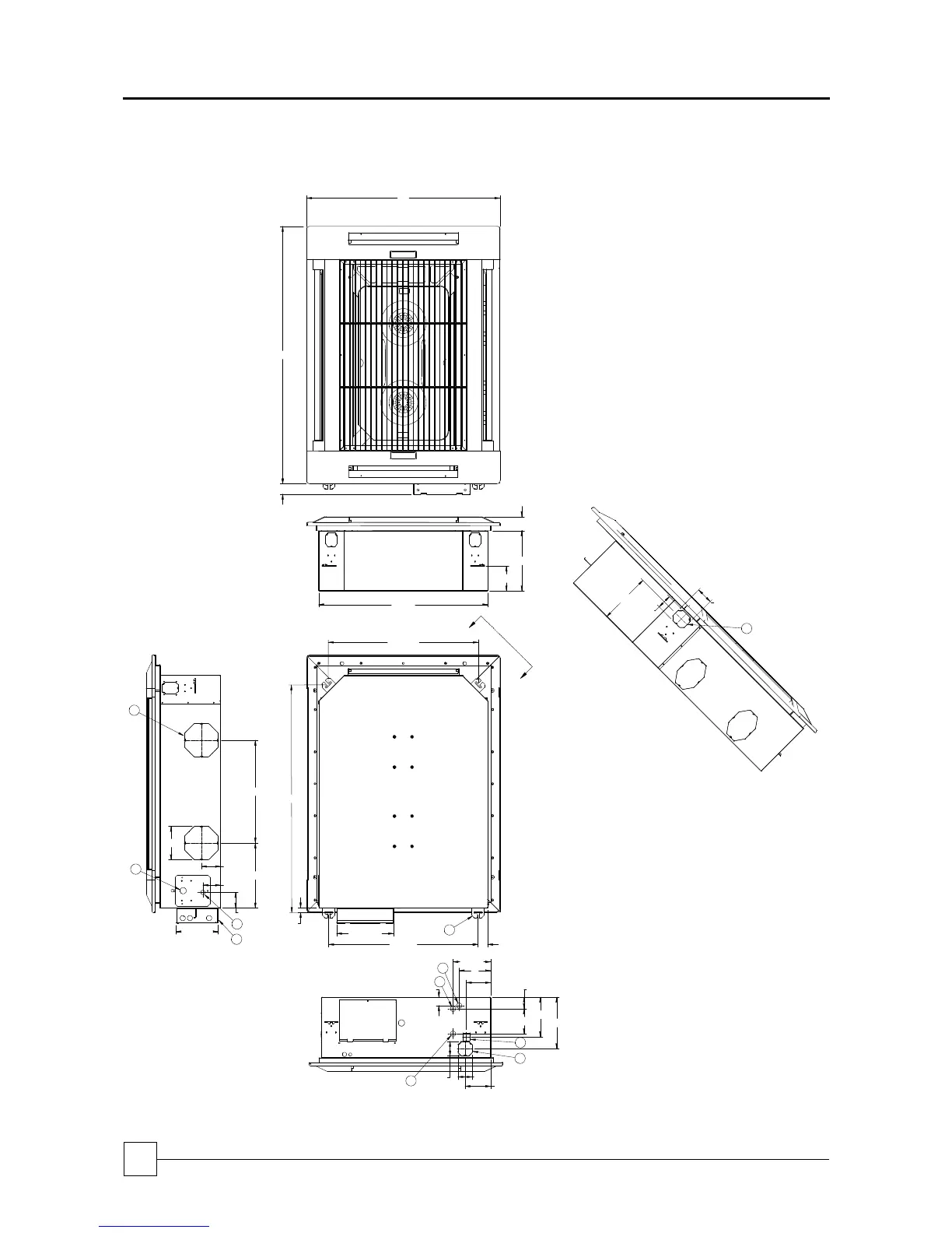
Figure 12.1 – Dimensions – Large Chassis
Model CCW 33 and CCW 36
A
A
VIEW A-A
49 3/16
37
2 1/4
32 3/8
4 3/4
11 1/2
2 5/8
28 11/16
12 9/16
28 9/16 1 7/8
43 1/2
7/8
8 13/16
19 5/8
12 7/16
6 3/8
3 5/8
3 3/8
3
6
4 5/8
7 3/16
2 3/16
4 3/4
7 9/16
9 13/16
1 5/8
4 7/8
2 3/4
2 3/4
3 1/8
9 13/16
2 3/4
5
10
2
5
4
3
1
6
7
9
8
1. CW Coil Inlet
2. CW Coil Outlet
3. HW Coil Inlet (Optional)
4. HW Coil Outlet (Optional)
5. Fresh Air Intake (x3)
6. Branch Duct Opening (x4)
7. Pump Inspection Port
8. Condensate Drain
9. Control Panel
10. Mounting Bracket

Related product manuals