EasyManua.ls Logo

AIREDALE CCW 18 - Page 13

Default Icon
24 pages
Print Icon
To Next Page IconTo Next Page
To Next Page IconTo Next Page
To Previous Page IconTo Previous Page
To Previous Page IconTo Previous Page
Loading...
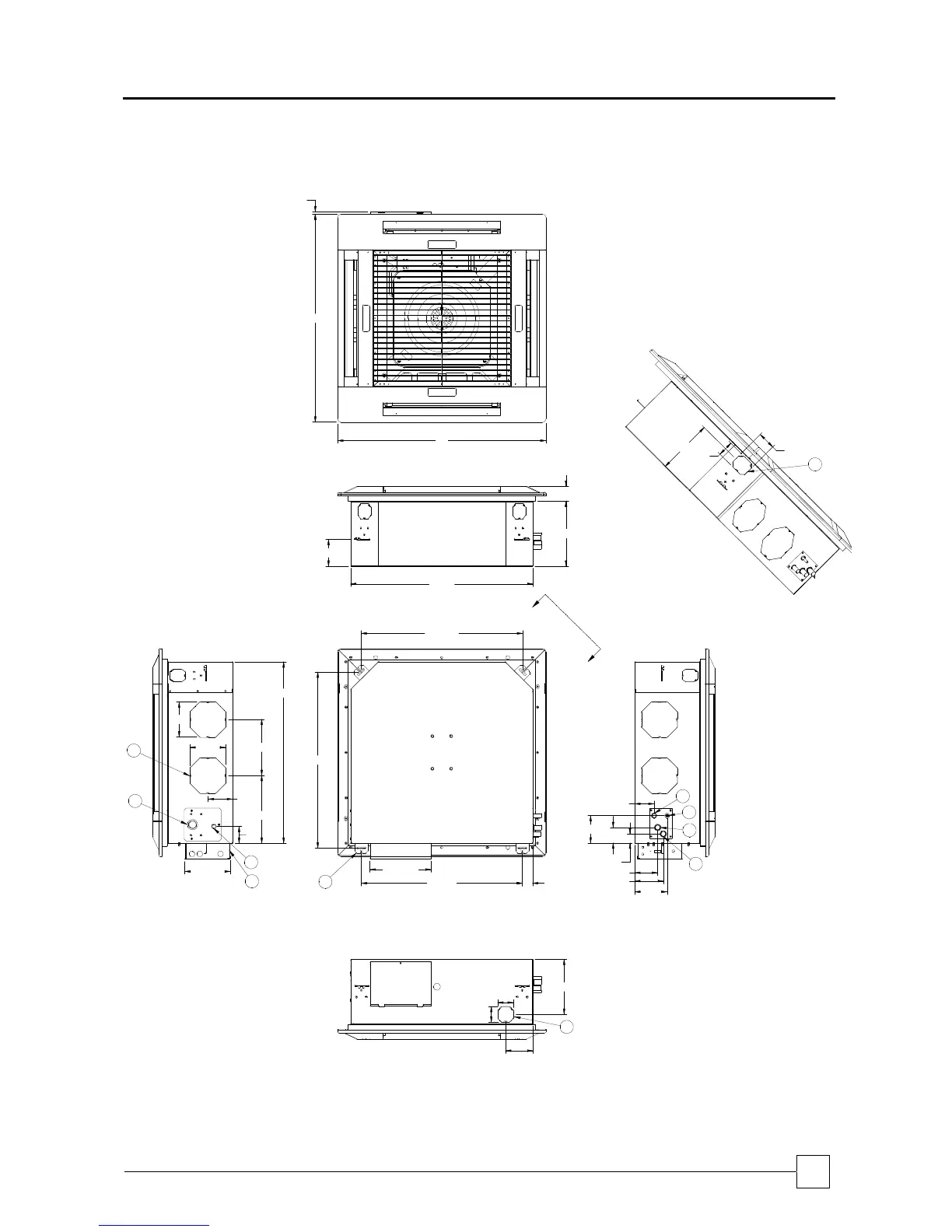
Ceiling Cassette
The SLIMLINE PERFORMER Ceilin
g
Cassette
Ductless Mini-S
p
lit
13
Technical Manual : AIR 8-105.
5
2 3/4
2 3/4
4 7/8
9 13/16
3
12 1/16
10
32 5/16
6 1/4
6 5/16
4 3/8
8 13/16
3 1/8
2 3/4
9 13/16
4 1/16
5 1/16
5 3/4
1 5/8
2 3/4
4 7/8
3 7/16
A
A
VIEW A-A
6
7
8
9
5
5
1
2
4
3
10
1. DX Suction Line
2. DX Liquid Line
3. HW Coil Inlet (Optional)
4. HW Coil Outlet (Optional)
5. Fresh AIr Intake (x3)
6. Branch Duct Opening (x4)
7. Pump Inspection Port
8. Condensate Drain
9. Control Panel
10. Mounting Bracket
31 3/8
1 7/828 9/16
12 9/16
28 11/16
32 3/8
4 3/4
11 5/8
2 5/8
37
37
11/16
Figure 13.1 – Dimensions – Medium Chassis
Model CSD/CSH 18 and CSD/CSH 24

Related product manuals