EasyManua.ls Logo

AIREDALE CCW 18 - Page 14

Default Icon
24 pages
Print Icon
To Next Page IconTo Next Page
To Next Page IconTo Next Page
To Previous Page IconTo Previous Page
To Previous Page IconTo Previous Page
Loading...
14
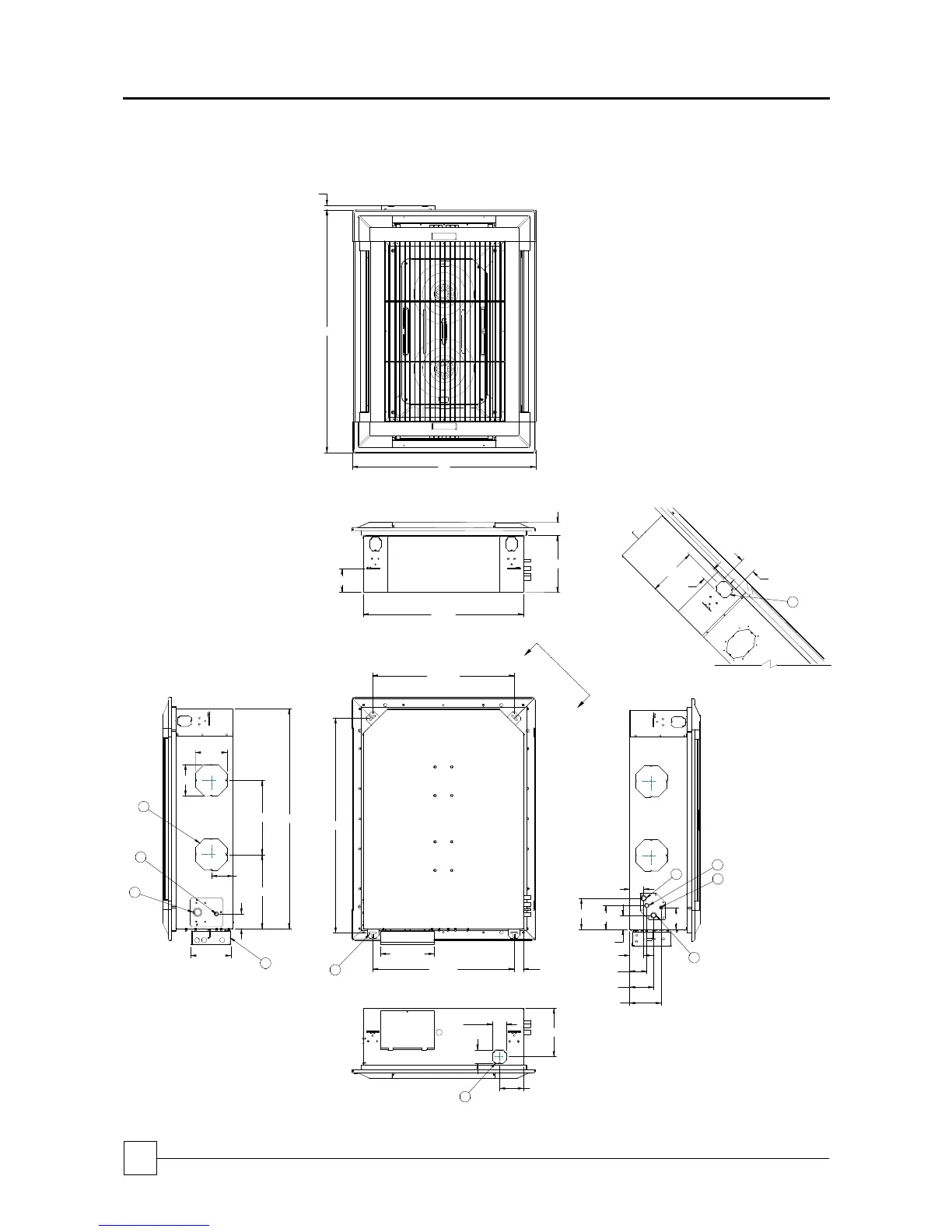
The SLIMLINE PERFORMER Ceilin
g
Cassette
Ductless Mini-S
p
lit
Technical Manual : AIR 8-105.5
Ceiling Cassette
49 3/16
1 1/8
37
4 3/4
2 5/8
11 1/2
32 3/8
28 11/16
12 9/16
28 9/16 1 7/8
9 13/16
2 3/4
4 13/16
2 3/4
6 3/8
6 3/8
4 3/8
3
15
15
3 1/8
2 3/4
9 13/16
VIEW A-A
A
A
8 13/16
2 7/8
2 7/8
4 7/8
6 5/16
4 7/16
2 7/8
3 1/2
4 7/8
6 7/16
1
2
3
4
9
7
8
6
10
5
5
43 1/2
44 7/16
1. DX Suction Line
2. DX Liquid Line
3. HW Coil Inlet (Optional)
4. HW Coil Outlet (Optional)
5. Fresh AIr Intake (x3)
6. Branch Duct Opening (x4)
7. Pump Inspection Port
8. Condensate Drain
9. Control Panel
10. Mounting Bracket
Figure 14.1 – Dimensions – Large Chassis
Model CSD/CSH 30, CSD/CSH 36 and CSD/CSH 42

Related product manuals