EasyManua.ls Logo

AJ 40486 - Page 15

Default Icon
53 pages
Print Icon
To Next Page IconTo Next Page
To Next Page IconTo Next Page
To Previous Page IconTo Previous Page
To Previous Page IconTo Previous Page
Loading...
022
001
692
523
04
042
100
840
272
20 tonne static loading capacity
15 tonne lifting capacity
12 tonne lifting capacity
2 | 010 32 888 50 • ajtuotteet.
Kiitos, että olet valinnut konetunkkimme. Turvallisuuden ja
oikean toiminnan takaamiseksi, lue käyttöohje huolellisesti läpi
ennen käyttöä.
Huom.:
Kaikki näissä ohjeissa annetut tiedot perustuvat painohetkellä
saatavilla olleisiin tietoihin. Tehdas pidättää oikeuden muokata
omia tuotteitaan koska tahansa ilman eri ilmoitusta tai mitään
erillisiä lupia. Tarkista tehtaalta mahdolliset käyttöohjeeseen
tehdyt päivitykset.
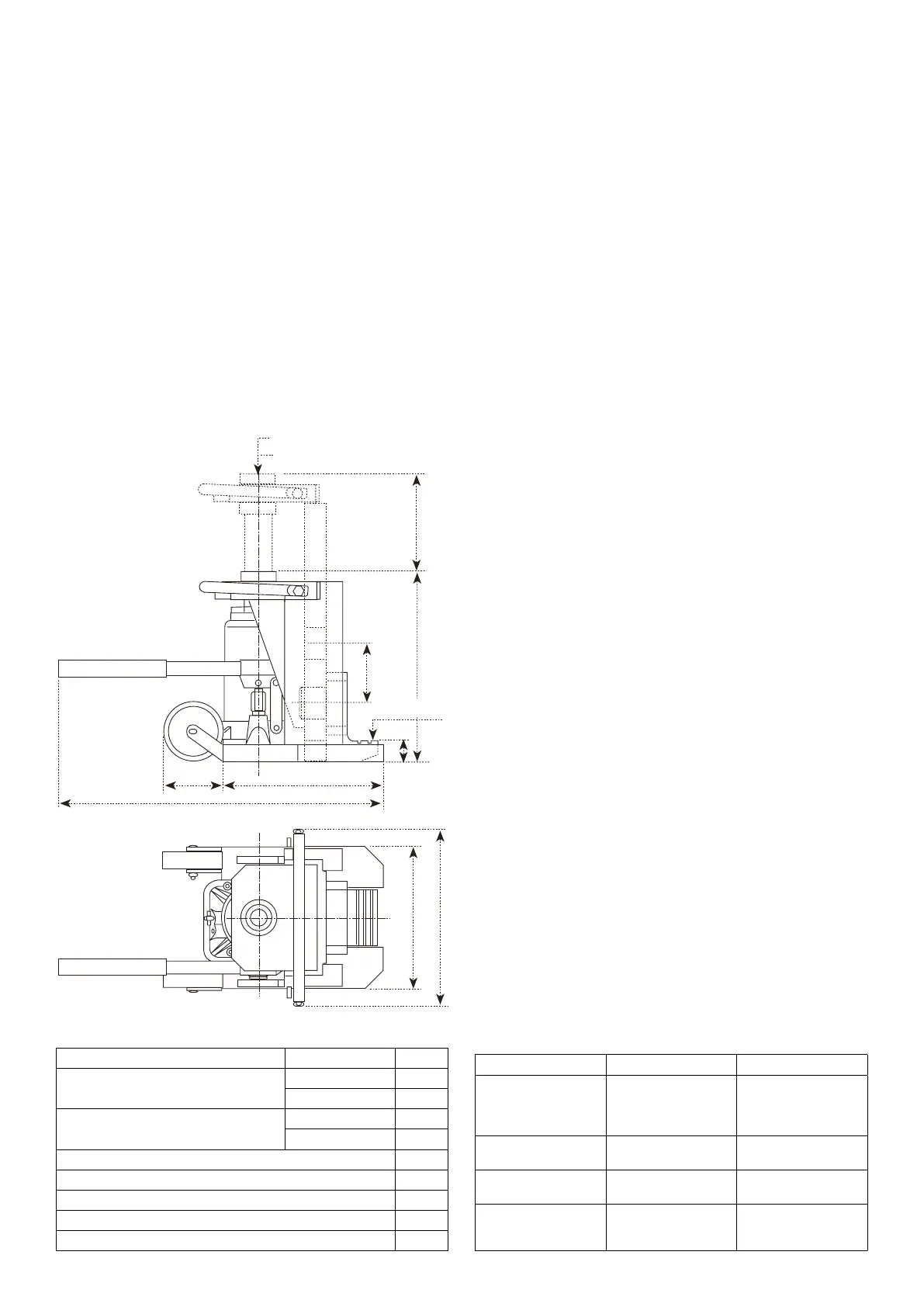
1. TEKNISET TIEDOT
Maks. kuormankesto (tonnia) Ylhäällä 20
Maks. nostokuorma (tonnia) Alhaalla 12
Ylhäällä 15
Min. korkeus (mm) Alhaalla 40
Ylhäällä 325
Nostokorkeus (mm) 140
Kierretangon säätökorkeus (mm) 0~60
Kahvan käyttövoima (N) ≤400
Männäntangon puristusvoima (N) ≤250
Nettopaino (kg) 68
20 tonnin staattinen kuormauskyky
15 tonnin nostokyky
12 tonnin nostokyky
2. TURVALLISUUSOHJEET
1. Käytä konetunkkia vain tukevalla alustalla; älä koskaan käytä pehmeällä
alustalla.
2. Nostettava kuorma ei saa ylittää nimelliskapasiteettia.
3. Älä koskaan käytä tunkkia sen tarrassa ilmoitetun maksimi-iskupituuden yli.
4. Varmista ennen käyttöä, että hammaslevy on sijoitettu oikein.
5. Älä koskaan aseta mitään kehonosaa kuorman alle.
6. Suorita silmämääräinen tarkistus ennen tunkin käyttöä. Vialliselta näyttävät
tunkit on poistettava käytöstä.
7. Tunkin lisäturvaventtiili estää sen ylikuormituksen. Tunkkia ei saa muokata.
8. Aseta paino tunkin pään hammaslevyn päälle. Hammaspään etupäätä ei
voida käyttää painon nostamiseen.
9. Jos näitä perussääntöjä ei noudateta, voi se johtaa henkilövammaan,
tunkin tai nostetun kuorman vaurioihin.
10. Vain valtuutettu henkilöstö saa suorittaa huollon ja korjaukset.
3. KÄYTTÖ
1. Ennen tunkin käyttämistä on ilma poistettava venttiilijärjestelmästä. Tämä
tehdään avaamalla venttiiliä ja pumppaamalla tunkkia useaan kertaan.
2. Liitä kaksi erillistä kahvaa tiukkaan.
3. Nosta kuorma, sulje venttiili ja pumppaa tunkkia. Kaikki
paineenalennusventtiilin muokkaukset ovat kiellettyjä.
4. Laske kuorma avaamalla venttiiliä hitaasti, ja kuorma laskeutuu tasaisesti.
Pikavapautus on ehdottomasti kielletty.
4. HUOLTO
1. Voitele kaikki liikkuvat osat säännöllisesti.
2. Pidä tunkki puhtaana ja suojattuna haitallisilta olosuhteilta.
3. Tarkista tunkin öljyntaso mäntä täysin sisällä. Lisää tarvittaessa.
Tärkeää:
Liika öljy tekee tunkista toimintakyvyttömän.
4. Käytä vain hydrauliöljyä, HL tai HM -tyypit, kinemaattisella viskositeetilla
ISO-asteella 30 cSt kun 40 °C tai Engler-viskositeetilla 3 kun 50 °C.
Hyvin tärkeää:
Älä koskaan käytä jarrunestettä.
5. Varaosia tilattaessa, ilmoita räjäytyskuvassa esitetty osanumero.
5. VIANETSINTÄOPAS
Ongelma Mahdollinen syy Toimenpiteet
Tunkkia ei voida pum-
pata ylös kunnolla.
Sulkuventtiiliä ei ole
suljettu.
1) Avaa venttiili, pump-
paa useaan kertaan
ilman poistamiseksi. 2)
Sulje venttiili tiukkaan.
Tunkki ei laskeudu
yläasennosta.
Sulkuventtiiliä ei ole
avattu riittävästi.
Avaa venttiiliä riittävästi.
Tunkkia ei voida pum-
pata nimelliskorkeuteen.
Ei riittävästi öljyä. Irrota tulppa (37), lisää
öljyä.
Öljyä on vuotanut
männän ympäriltä.
Tiivisteet kuluneet. Vaihda kuluneet tiivis-
teet uusiin (12) ja (11)
(varaosapussissa).