EasyManua.ls Logo

AJ 40486 - Bezpečnostní Instrukce

Default Icon
53 pages
Print Icon
To Next Page IconTo Next Page
To Next Page IconTo Next Page
To Previous Page IconTo Previous Page
To Previous Page IconTo Previous Page
Loading...
022
001
692
523
04
042
100
840
272
20 tonne static loading capacity
15 tonne lifting capacity
12 tonne lifting capacity
2 | 283 933 763 • ajprodukty.cz
Děkujeme, že jste si vybrali náš hydraulický zvedák. Abyste
zajistili správné použití a vaši bezpečnost si, prosím, pozorně
přečtěte tyto instrukce.
Poznámka:
Veškeré zde uvedené informace jsou založeny na údajích
platných v době tisku tohoto dokumentu. Výrobce si vyhrazuje
právo na úpravu vlastních výrobků bez předchozího
upozornění a bez nároku na vznik jakékoliv sankce. O
možných změnách se můžete informovat u výrobce.
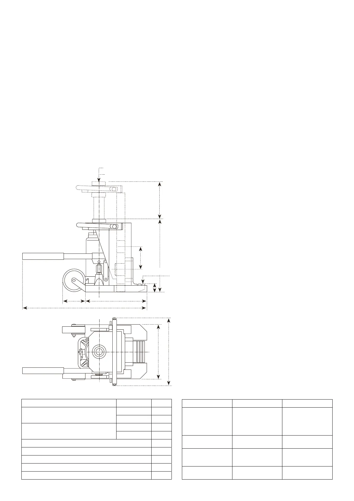
1. SPECIFIKACE
Maximální nosnost - statické zatížení (tuny) Hlava 20
Kapacita zdvihu (tuny) Patka 12
Hlava 15
Minimální výška (mm) Patka 40
Hlava 325
Délka zdvihu (mm) 140
Nastavitelná výška závitové tyče (mm) 0~60
Působící síla rukojeti (N) ≤400
Stlačující síla pístnice (N) ≤250
Hmotnost (kg) 68
Statická nosnost 20 tun
Kapacita zdvihu 15 tun
Kapacita zdvihu 12 tun
2. BEZPEČNOSTNÍ INSTRUKCE
1. Hydraulický zvedák používejte pouze na pevném povrchu.
2. Zvedaný náklad nesmí přesahovat maximální kapacitu.
3. Nikdy nepřesahujte maximální zdvih zvedáku uvedený na etiketě.
4. ed použitím se ujistěte, že je patka umístěna správně.
5. Nikdy neumisťujte žádnou část svého těla pod náklad.
6. ed každým použitím se pohledem ujistěte, že je zvedák v pořádku.
Pokud se zdá být poškozená, neprodleně ho vyřaďte z provozu.
7. Jako přídavná bezpečnostní složka je na zvedáku ventil, který předchází
přetížení zvedáku. Nezasahujte do tohoto zařízení.
8. Stabilně umístěte břemeno na patku zvedáku. Nepoužívejte přední část
patky zvedáku ke zdvihání břemene.
9. Při nedodržení těchto instrukcí může vzniknout škoda na zvedaném
břemeni, poškození zvedáku nebo zranění operátora.
10. Veškerá údržba a opravy musejí být prováděny školeným personálem.
3. PROVOZ A POUŽITÍ
1. ed použitím zvedáku je nutné vypustit vzduch ze systému ventilů.
Udělejte tak uvolněním ventilu a napumpováním zvedáku.
2. Pevně spojte dvě oddělené páky.
3. Při zvedání nákladu uzavřete ventil a pumpujte pákou. Jakákoliv
manipulace s výpustí ventilu je zakázána.
4. Při spouštění nákladu pomalu uvolněte ventil, aby se náklad spustil
plynule. Rychlé uvolňování ventilu je zakázáno.
4. ÚDRŽBA
1. Pravidelně promazávejte všechny pohyblivé části.
2. Udržujte zvedák čistý a chraňte ho před agresivními podmínkami.
3. Kontrolujte množství oleje jen když je píst zcela zatažený. Pokud nutno,
olej doplňte.
Důležité:
Přebytek oleje zablokuje funkčnost zvedáku.
4. Používejte pouze hydraulický olej typu HL nebo HM, se stupněm ISO
kinematické viskozity 30 cSt při 40oC nebo Englerově viskozitě 3 při 50oC.
Velice důležité:
Nikdy nepoužívejte brzdovou kapalinu.
5. Při objednávání náhradních dílů uveďte číslo dílu, které najdete na nákresu.
5. PORADCE PŘI POTÍŽÍCH
Závada Možná příčina Řešení
Zvedák nelze správně
napumpovat.
Vypouštěcí ventil není
uzavřený.
1) Otevřte ventil a
několikrát zapumpujte,
abyste vypustili vzduch.
2) Pevně uzavřete
ventil.
Zvedák nelze spustit
dolů z nejvyšší pozice.
Vypouštěcí ventil není
dostatečně otevřený.
Dostatečně otevřte
ventil.
Zvedák nelze
napumpovat do
nejvyšší pozice.
Nedostatek oleje. Otevřte zátku (37) a
doplňte olej.
Olej vytéká okolo pístu. Opotřebení těsnění. Vyměňte opotřebené
těsnění (12) a (11).