EasyManua.ls Logo

AJ 40486 - Specifications; Safety Instructions; Maintenance; Troubleshooting Guide

Default Icon
53 pages
Print Icon
To Next Page IconTo Next Page
To Next Page IconTo Next Page
To Previous Page IconTo Previous Page
To Previous Page IconTo Previous Page
Loading...
022
001
692
523
04
042
100
840
272
20 tonne static loading capacity
15 tonne lifting capacity
12 tonne lifting capacity
2 | 01252 359760 • ajproducts.co.uk
Thank you for using this machinery jack. For your safety and
correct operation, please carefully read this instruction before
using it.
NOTE:
All of the information reported herein is based on data
available at the moment of printing. The factory reserves the
right to modify its own products at any moment without notice
and incurring in any sanction. So it is suggested to always
verify possible updates.
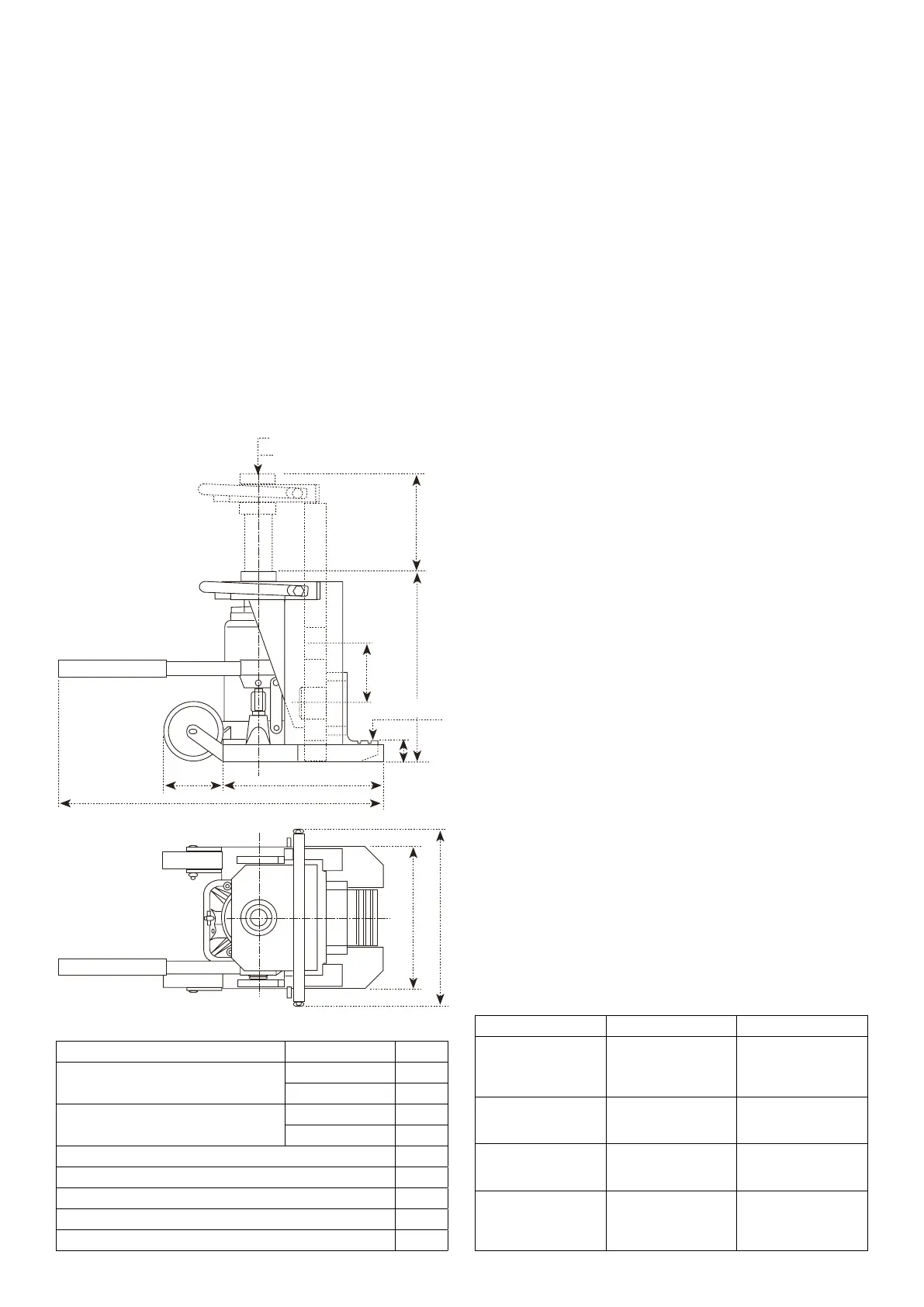
1. SPECIFICATIONS
Max. supporting load (tonne) Top 20
Max. lifting load (tonne) Toe 12
Top 15
Min. height (mm) Toe 40
Top 325
Lifting distance (mm) 140
Adjusting height of screw rod (mm) 0~60
Acting force of handle (N) ≤400
Press down force of piston rod (N) ≤250
Net weight (kg) 68
20 tonne static loading capacity
15 tonne lifting capacity
12 tonne lifting capacity
2. SAFETY INSTRUCTIONS
1. Use machinery jacks only on a rm level; never use on soft grounds.
2. The load to be lifted should never exceed the rated capacity.
3. Never operate the jack beyond its maximum stroke indicated on the label.
4. Before operating the jack ensure the tooth plate is positioned properly.
5. Never position any part of your body under the load.
6. Make a visual inspection before each use the jack. Any jack which
appears to be damaged must be removed from service.
7. As an additional safety feature the jack is equipped with a valve to prevent
the unit from being overloaded. This unit must not be tampered with.
8. Put a weight on the tooth plate of jack stable. Can not use front end of the
tooth plate to lift the weight.
9. If these basic rules are not followed, injury to the user, the jack or the load
being lifted may result.
10. Both maintenance and repair must only be carried out by qualied
personnel.
3. USE & OPERATION
1. Before using the jack, it is necessary to purge air from the valve system.
This can be done by releasing the valve ,then pumping the jack several
times.
2. Connect two separated handles tightly.
3. Raising the load, close the valve and pump the jack. Any manipulation of
the pressure relief valve is prohibited.
4. Lowering the load, release the valve slowly , the load can be lowered
smoothly. Quick -releasing is strictly prohibited.
4. MAINTENANCE
1. Lubricate all moving parts at regular intervals.
2. Always keep the jack clean and protected from aggressive conditions.
3. Check the oil level of the jack with the piston fully retracted. Top up if
necessary.
Important:
An excess of oil will render the jack inoperative.
4. Use only hydraulic oil, HL or HM types, with an ISO grade of cinematic
viscosity of 30 cSt at 40ºC or an Engler viscosity of 3 at 50ºC.
Very important:
Never use brake fluid.
5. When ordering spare parts, please state the parts number as shown in the
exploded view drawing provided.
5. TROUBLE SHOOTING GUIDE
Symptom Possible cause Aliments
Jack can not be
pumped up properly.
The release valve Is not
closed.
1)Release the valve,
then pump several
times to purge air. 2)
close the valve tightly.
Jack can not be
released down at the
top position.
The release valve is not
opened enough.
Release the valve
enough.
Jack can not be
pumped up to its rated
Max . height.
Oil is not enough. Take off the plug( 37 ),
add enough oil.
The oil has leaked
around the plunger .
Seals are worm out. Replace worm seals
with new ones ( 12 )and
( 11 ) (in the spare parts
bag).