EasyManua.ls Logo

AJ 40486 - Saugos Nurodymai

Default Icon
53 pages
Print Icon
To Next Page IconTo Next Page
To Next Page IconTo Next Page
To Previous Page IconTo Previous Page
To Previous Page IconTo Previous Page
Loading...
022
001
692
523
04
042
100
840
272
20 tonne static loading capacity
15 tonne lifting capacity
12 tonne lifting capacity
2 | 8 (5) 2 785 980 • ajproduktai.lt
Dėkojame, kad pasirinkote šį mašinų kėliklį. Norėdami
susipažinti su saugos ir naudojimo nurodymais, atidžiai
perskaitykite šį naudotojo vadovą.
Pastaba.
Visa šiame vadove naudojama informacija paremta
duomenimis, pateiktais spausdinant šį vadovą. Gamykla
pasilieka teisę bet kada keisti savo gaminius be įspėjimo – už
tai nėra taikomos jokios sankcijos. Todėl patariame nuolat
domėtis galimais pakeitimais.
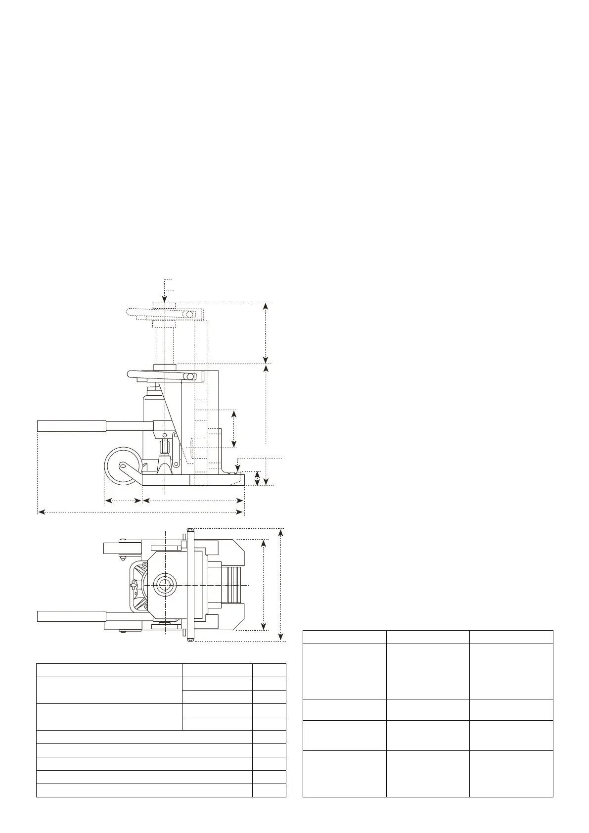
1. SPECIFIKACIJOS
Didžiausia laikomoji galia (tonos) Viršus 20
Didžiausia keliamoji galia (tonos) Koja 12
Viršus 15
Mažiausias aukštis (mm) Koja 40
Viršus 325
Kėlimo atstumas (mm) 140
Srieginio strypo reguliuojamas aukštis (mm) 0~60
Rankeną veikianti jėga (N) ≤400
Stūmoklio nuspaudimo galia (N) ≤250
Svoris (kg) 68
20 tonų statinė keliamoji galia
15 tonų keliamoji galia
12 tonų keliamoji galia
2. SAUGOS NURODYMAI
1. Kėliklį naudokite tik ant kieto ir lygaus paviršiaus. Nenaudokite kėliklio ant
minkšto paviršiaus.
2. Keliamas krovinys neturėtų viršyti kėliklio keliamosios galios.
3. Niekada neviršykite informacinėje lentelėje nurodytos didžiausios kėliklio
apkrovos.
4. Prieš naudodami kėliklį įsitikinkite, ar danties atrama yra tinkamoje padėtyje.
5. Niekada nekiškite kūno dalių po kroviniu.
6. Prieš kiekvieną naudojimą atidžiai apžiūrėkite kėliklį. Draudžiama naudoti
apgadintą kėliklį.
7. Ant kėliklio sumontuotas specialus apsauginis vožtuvas nuo perkrovos.
Draudžiama keisti šio kėliklio konstrukciją.
8. Uždėkite krovinį ant kėliklio danties atramos. Negalima naudoti priekinės
danties atramos dalies kroviniui kelti.
9. Nesilaikant šių pagrindinių taisyklių, galima susižeisti, apgadinti kėliklį ar
krovinį.
10. Techninės priežiūros ir remonto darbus gali atlikti tik kvalikuoti darbuotojai.
3. KĖLIKLIO NAUDOJIMAS IR VEIKIMAS
1. Prieš naudojant kėliklį būtina išleisti orą iš vožtuvo sistemos. Tai galima
padaryti atlaisvinus vožtuvą ir keliant rankeną į viršų ir žemyn keletą kartų.
2. Tvirtai sujunkite rankenas tarpusavyje.
3. Norėdami pakelti krovinį, uždarykite vožtuvą ir kelkite rankeną į viršų ir
žemyn. Draudžiama liesti viršslėgio vožtuvą.
4. Norėdami nuleisti krovinį, lėtai atlaisvinkite vožtuvą – krovinys bus atsargiai
nuleistas. Draudžiama greitai nuleisti krovinį.
4. TECHNINĖ PRIEŽIŪRA
1. Reguliariai tepkite visas judančias dalis.
2. Kėliklis visada turi būti švarus ir apsaugotas nuo atšiaurių sąlygų.
3. Tikrinkite alyvos lygį visiškai įtraukę stūmoklį. Jei reikia, pripilkite alyvos.
Svarbu:
Dėl per didelio alyvos kiekio kėliklis gali neveikti.
4. Naudokite tik HL arba HM tipo hidraulinę alyvą, kurios kinematinė klampa
yra 30 cSt esant 40 ˚C temperatūrai arba 3 esant 50 ˚C temperatūrai,
išreikšta Englerio laipsniais.
Labai svarbu.
Niekada nenaudokite stabdžių skysčio.
5. Užsakant atsargines dalis būtina nurodyti išardyto kėliklio schemoje
esančius dalių numerius.
5. GEDIMŲ ŠALINIMO VADOVAS
Gedimas Galima priežastis Veiksmai
Kėliklis nesikelia. Viršslėgio vožtuvas
neuždarytas.
1) Atlaisvinkite vožtuvą,
tada nuspauskite
rankeną keletą kartų,
kad išleistumėte iš orą.
2) Tvirtai uždarykite
vožtuvą.
Kėliklis nenusileidžia. Viršslėgio vožtuvas
nevisiškai atidarytas.
Atidarykite vožtuvą.
Kėliklio neįmanoma
pakelti iki didžiausio
nustatyto aukščio.
Nepakankamas alyvos
lygis.
Nuimkite dangtelį (37) ir
įpilkite alyvos.
Aplink stūmoklį pastebi-
mas alyvos nuotėkis.
Susidėvėjo tarpikliai. Pakeiskite
susidėvėjusius tarpik-
lius (12) ir (11) naujais
(tiekiami atsarginių dalių
maišelyje).