EasyManua.ls Logo

AJ 40486 - Page 23

Default Icon
53 pages
Print Icon
To Next Page IconTo Next Page
To Next Page IconTo Next Page
To Previous Page IconTo Previous Page
To Previous Page IconTo Previous Page
Loading...
022
001
692
523
04
042
100
840
272
20 tonne static loading capacity
15 tonne lifting capacity
12 tonne lifting capacity
2 | 67 62 52 72 • ajprodukti.lv
Pateicamies, ka lietojat šo mehānisko domkratu! Lai droši un
pareizi darbinātu
Iekārtu, pirms lietošanas rūpīgi izlasiet šo instrukciju.
Piezīme!
Visa šeit minētā informācija ir balstīta uz datiem, kas bija
pieejami publikācijas brīdī. Rūpnīca patur tiesības jebkurā
brīdī veikt savu izstrādājumu pārveidojumus bez iepriekšēja
paziņojuma un papildu saistībām. Tāpēc ieteicams vienmēr
pārbaudīt, vai nav kādu jauninājumu.
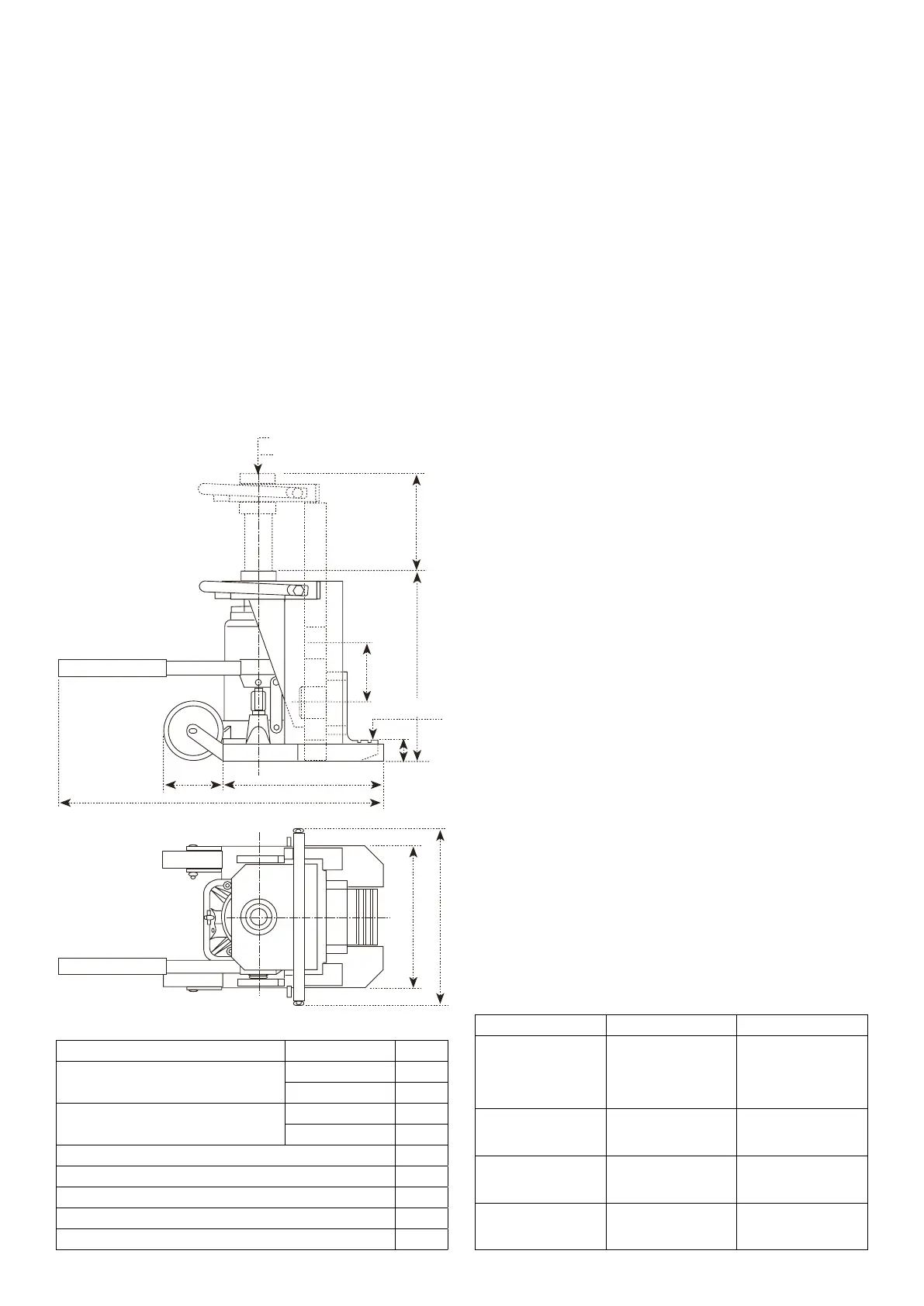
1. SPECIFIKĀCIJAS
Maks. atbalsta slodze, tonnas Augša 20
Maks. celtspēja, tonnas Pēda 12.
Augša 15.
Min. augstums, mm Pēda 40
Augša 325
Celšanas attālums, mm 140
Vītņotā stieņa pielāgošanas augstums, mm 0~60
Roktura aktīvais spēks, N ≤400
Virzuļa kāta piespiešanas spēks, N ≤250
Neto svars, kg 68
20 tonnu statiskā nestspēja
15 tonnu celtspēja
12 tonnu celtspēja
2. DROŠĪBAS INSTRUKCIJAS
1. Mehānisko domkratu lietojiet vienīgi uz cietas virsmas, nekādā gadījumā
nelietojiet to uz mīkstas virsmas.
2. Ceļamā krava nekādā gadījumā nedrīkst būt smagāka par nominālo
celtspēju.
3. Nekādā gadījumā nepārsniedziet domkrata maksimālo gājienu, kas
norādīts uz marķējuma.
4. Pirms domkrata lietošanas pārliecinieties, ka zobu plāksne ir pareizi
novietota.
5. Neviena jūsu ķermeņa daļa nedrīkst atrasties zem kravas.
6. Pirms katras domkrata lietošanas vizuāli to pārbaudiet. Ja domkrats ir
bojāts, neizmantojiet to.
7. Lai novērstu iekārtas pārslodzi, domkrats papildu drošības nolūkiem ir
aprīkots ar vārstu. Šo iekārtu nedrīkst pārveidot.
8. Kravu uz domkrata zobu plāksnes novietojiet stabili. Kravas celšanai
nedrīkst izmantot zobu plāksnes priekšgalu.
9. Ja šos pamatnoteikumus neievēro, lietotājam var rasties ievainojumi,
domkratam vai celtajai kravai var rasties bojājumi.
10. Apkopi un remontdarbus drīkst veikt vienīgi kvalicēts personāls.
3. LIETOŠANA
1. Pirms domkrata lietošanas izpūtiet gaisu caur vārsta sistēmu, t. i., atveriet
vārstu un pāris reizes sūknējiet domkratu.
2. Cieši savienojiet divus atdalītus rokturus.
3. Lai paceltu kravu, aizveriet vārstu un sūknējiet domkratu. Spiediena
izlaišanas vārstu nedrīkst pārveidot.
4. Lai pakāpeniski nolaistu kravu, lēnām atveriet vārstu. Nekādā gadījumā
neatveriet vārstu ātri.
4. APKOPE
1. Regulāri eļļojiet visas kustīgās daļas.
2. Vienmēr uzturiet domkratu tīru un aizsargātu pret skarbiem apstākļiem.
3. Pārbaudiet domkrata eļļas līmeni, virzulim esot pilnībā iebīdītam. Ja
nepieciešams, uzpildiet eļļu.
Svarīgi:
Ja eļļas ir pārāk daudz, domkratu nevar izmantot.
4. Lietojiet vienīgi hidrauliskās eļļas tipu HL vai HM, ISO klase, viskozitāte 30,
temperatūra 40ºC vai viskozitāte 3, temperatūra 50ºC.
Ļoti svarīgi!
Nekādā gadījumā neizmantojiet bremžu šķidrumu.
5. Pasūtot rezerves daļas, miniet daļu numuru, kā norādīts piegādātajā
sadalītā skata rasējumā.
5. PROBLĒMU NOVĒRŠANA
Problēma Iespējamie cēloņi Novēršanas metodes
Domkratu nevar pareizi
pacelt.
Izlaišanas vārsts nav
aizvērts.
1) Atveriet vārstu
un vairākas reizes
sūknējiet, lai caurpūstu
gaisu. 2) Cieši aizveriet
vārstu.
Domkratu nevar nolaist,
ja tas atrodas augšējā
pozīcijā.
Izlaišanas vārsts nav
pietiekami atvērts.
Atveriet vārstu pieti-
ekami plaši.
Domkratu nevar pacelt
līdz tā maks. augstu-
mam.
Nav pietiekami daudz
eļļas.
Noņemiet spraudni (37),
uzpildiet eļļu pareizā
daudzumā.
Eļļas noplūde pie
virzuļa.
Blīves ir nodilušas. Mainiet nolietotās blīves
ar jaunām (12) un (11)
(rezerves daļu maisā).