EasyManua.ls Logo

AJ 40486 - Page 7

Default Icon
53 pages
Print Icon
To Next Page IconTo Next Page
To Next Page IconTo Next Page
To Previous Page IconTo Previous Page
To Previous Page IconTo Previous Page
Loading...
022
001
692
523
04
042
100
840
272
20 tonne static loading capacity
15 tonne lifting capacity
12 tonne lifting capacity
2 | +45 59 400 999 • ajprodukter.dk
Tak, fordi du har valgt denne maskindonkraft. Af hensyn til
din sikkerhed og korrekt brug skal du læse denne vejledning
omhyggeligt, inden donkraften tages i brug.
Bemærk:
Alle oplysninger i denne vejledning er givet ud fra de
tilgængelige data på udgivelsestidspunktet. Fabrikken
forbeholder sig retten til når som helst at foretage ændringer
af egne produkter uden forudgående varsel og godkendelse.
Derfor bør man altid tjekke for eventuelle opdateringer.
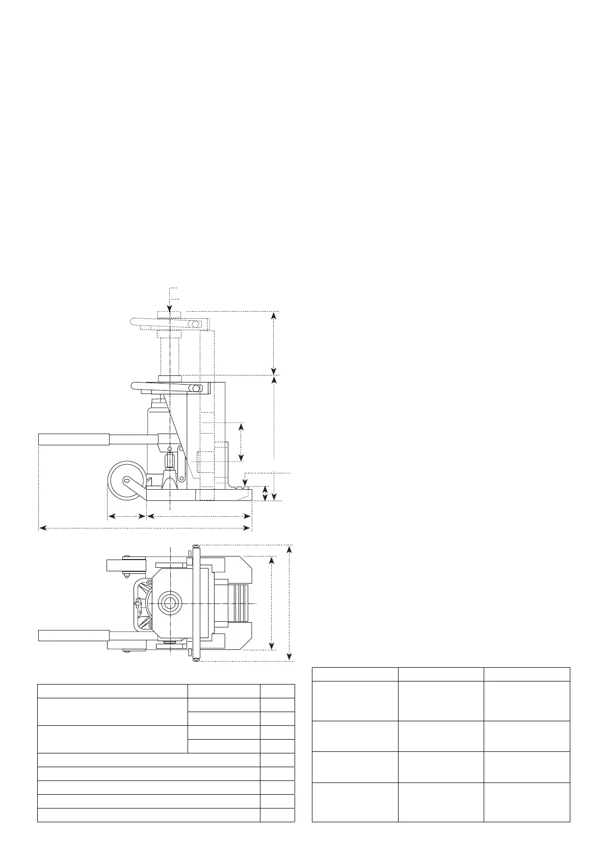
1. SPECIFIKATIONER
Maks. støttelast (ton) Top 20
Maks. løftelast (ton) Fod 12
Top 15
Min. højde (mm) Fod 40
Top 325
Løfteafstand (mm) 140
Justeringshøjde for skruestangen (mm) 0~60
Håndtagets kraft (N) ≤400
Stempelstangens kraft (N) ≤250
Nettovægt (kg) 68
20 tons statisk løfteevne
15 tons løfteevne
12 tons løfteevne
2. SIKKERHEDSANVISNINGER
1. Brug kun maskindonkrafte på jævne underlag. Brug aldrig på bløde
underlag.
2. Lasten må aldrig overstige maksimumløfteevnen.
3. Betjen aldrig donkraften ud over den maksimumslaglængde, der er
angivet på mærkaten.
4. Sørg for, at tandpladen er placeret korrekt, inden du betjener donkraften.
5. Stik aldrig hænder eller fødder ind under lasten.
6. Foretag en visuel inspektion før hver brug af donkraften. Brug aldrig en
donkraft, der ser ud til at være beskadiget.
7. Som en ekstra sikkerhedsforanstaltning er donkraften udstyret med en
ventil til at forhindre, at enheden bliver overbelastet. Denne enhed må ikke
pilles ved.
8. Placér en last på donkraftens tandplade. Den forreste del af tandpladen
må ikke anvendes til at bære lasten.
9. Hvis disse grundregler ikke overholdes, kan det resultere i beskadigelse
af brugeren, donkraften eller lasten.
10. Både vedligeholdelse og reparation må kun udføres af kvaliceret personale.
3. BRUG OG BETJENING
1. Før donkraften tages i brug, er det nødvendigt at lukke luft ud af
ventilsystemet. Dette kan gøres ved at åbne ventilen og derefter pumpe
donkraften adskillige gange.
2. Forbind to adskilte håndtag stramt.
3. Luk ventilen, og pump donkraften for at løfte lasten. Enhver betjening af
sikkerhedsventilen er forbudt.
4. Åbn langsomt ventilen for at sænke lasten i et jævnt tempo. Det er strengt
forbudt at åbne ventilen hurtigt.
4. VEDLIGEHOLDELSE
1. Smør alle bevægelige dele med jævne mellemrum.
2. Hold altid donkraften ren og beskyttet mod skadelige miljøer.
3. Sørg for, at stemplet er trukket helt tilbage, når du tjekker donkraftens
olieniveau. Fyld på, hvis det er nødvendigt.
Vigtigt:
Overfyldning af olie gør donkraften uanvendelig.
4. Brug kun hydraulikolie af typerne HL eller HM med en ISO-grad af
kinematisk viskositet på 30 cSt ved 40 ºC eller en Engler-viskositet på
3 ved 50 ºC.
Meget vigtigt:
Brug aldrig bremsevæske.
5. Oplys komponentnummeret som anført i den medfølgende
eksplosionstegning, når du bestiller nye dele.
5. FEJLFINDINGSGUIDE
Fejl Mulig årsag Afhjælpning
Donkraften kan ikke
pumpes ordentligt op.
Aastningsventilen er
ikke lukket.
1) Åbn ventilen, og
pump adskillige gange
for at lukke luften ud.
2) Luk ventilen godt til.
Donkraften kan ikke
sænkes fra den øverste
position.
Aastningsventilen er
ikke åbnet tilstrækkeligt.
Åbn ventilen tilstræk-
keligt.
Donkraften kan ikke
pumpes op til maksi-
mumhøjden.
Der er ikke påfyldt
tilstrækkelig olie.
Fjern proppen (37), og
påfyld tilstrækkelig olie.
Olien har lækket rundt
om pressestemplet.
Pakningerne er slidte. Udskift de slidte
pakninger med nye (12)
og (11) (i posen med
reservedele).