EasyManua.ls Logo

Alfa Laval LKH - LKH-10, -15, -20, -25, -35, -40, -50, -60, -70, -75, -85, -90 Sanitary Version

Alfa Laval LKH
60 pages
Print Icon
To Next Page IconTo Next Page
To Next Page IconTo Next Page
To Previous Page IconTo Previous Page
To Previous Page IconTo Previous Page
Loading...
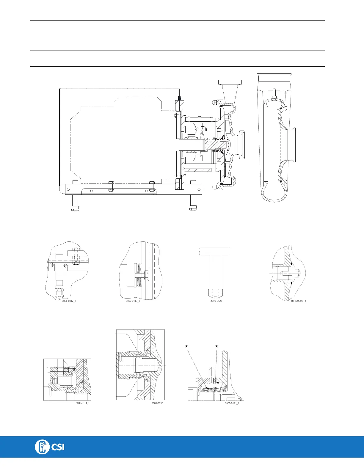
7 Parts list and service kits
The drawing shows the LK H pump, sanitary version.
7.2 LKH-10, -15, -20, -25, -35, -40, -50, -60, -70, -75, -85, -90 sanitary version
3000-0264
LKH10 -75 LKH-85 and LKH-90
US legs are different to the ones shown. For further information see U S spare parts.
Only used for 0.75, 1.1
and 3 kW
Fitting of legs
Fitting of back plate
Only used for 55 - 110 kW
Fitting of legs
Impeller screw
Flushed shaft seal
Single shaft seal
Double mechanical shaft seal
* Only used for LKH-70, -75, -85, -90
49
CONTACT CSI FOR MORE INFORMATION | CSIDESIGNS.COM | SALES@CSIDESIGNS.COM | 417.831.1411