EasyManua.ls Logo

ALLEN & HEATH 14:4:2 MixWizard WZ3

ALLEN & HEATH 14:4:2 MixWizard WZ3
78 pages
To Next Page IconTo Next Page
To Next Page IconTo Next Page
To Previous Page IconTo Previous Page
To Previous Page IconTo Previous Page
Loading...
Kernick Industrial Estate,
Penryn, Cornwall,
England. TR10 9LU
+44 (0)8707 556250
+44 (0)8707 556251
2
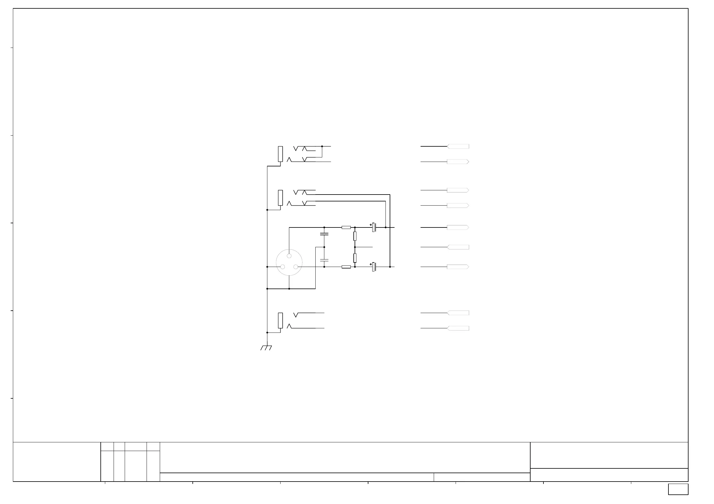
WZ³14:4:2 CONNECTOR
C5399 7 14
PAGE:
TITLE:
DRG No: ISSUE: SHEET: OF
ISSUE BY DATE
FILE: C5399_2 CH6.Sch 10:35:16 24-Aug-2004
ALLEN&HEATH
Tel:
Fax:
PRINTED:
ABCDEFGH
a
b
c
d
e
CHK
BY
3
1 2
0
CN103_5
XLR NC3FAV20
T
R
CN102_5
JACK V3M
T
R
CN101_5
JACK V5M
C103_5
47/63
C102_5
47/63
R100_5
6K8 1%
R101_5
6K8 1%
LINE+
LINE-
MIC+
MIC-
+48V_SW
DIR_OUT+
DIR_OUT-
T
R
CN100_5
JACK V5M
INSEND
INSRET
L100_5
TCW
L101_5
TCW
C100_5
15P/DISK
C101_5
15P/DISK
MIC-
+48V_SW
MIC+
DIR_OUT+
DIR_OUT-
LINE-
LINE+
INSRET
INSEND
LINE+
LINE-
MIC+
MIC-
+48V_SW
DIR_OUT+
DIR_OUT-
INSEND
INSRET
A AAT XXX
CH6 CONNS
26-09-03
1 AAT XXX28-01-04
2 JB XXX01-04-04
003-209/7
003-209 iss.2

Related product manuals