EasyManua.ls Logo

ALLEN & HEATH iDR-16 - Page 11

ALLEN & HEATH iDR-16
12 pages
Print Icon
To Next Page IconTo Next Page
To Next Page IconTo Next Page
To Previous Page IconTo Previous Page
To Previous Page IconTo Previous Page
Loading...
iDR MixRack Getting Started Guide 11 AP7445 iss.3
48V
GAIN
-
+
MIC/LINE
PAD
-25
ADC
CONTROL
INPUT
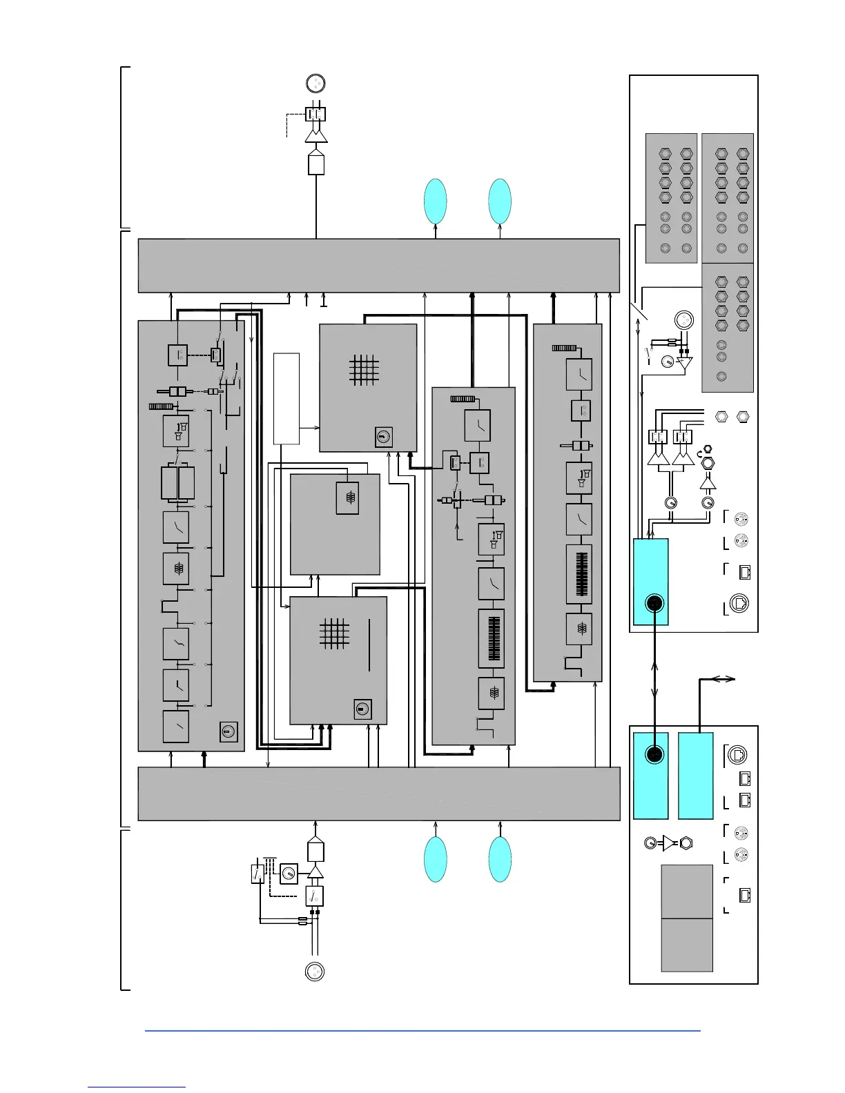
PATCHBAY
POLARITY HPF GATE PEQ COMP
LIMITER
DE-ESSER
DELAY
0
POST-HPF POST-GATE POST-PEQ POST-COMP POST-LIM POST-DLYPOST-INS
INSERT
POST-PREAMP
AUX SOURCE (PER MIX)
DIRECT OUT SOURCE (GLOBAL)
FOLLOW FADER
PRE
MUTE
DIRECT
OUT
STRIP METER
MULTI-POINT PEAK
FADER
INPUT PROCESSING x 64
PEQ GEQ
LIMITER
MUTE
MULTI-POINT PK
GRP / AUX / MAIN PROCESSING
From CH AUX / FX
From CH GRP / MAIN
EXT INPUT
GRP / AUX / FX / MAIN MIX
x 30 max
MATRIX MIX
max = 32 - (GRP/AUX/MAIN)
TALKBACK
GRP/AUX/MAIN
POST
PRE
To MTX
POST
PRE
AUX SEND
COMP
STRIP METER
PEQ GEQ
DELAY
INSERT
MUTE
MULTI-POINT PK
COMP
STRIP METER
FADER
FADER
MATRIX PROCESSING
OUTPUT
PATCHBAY
NOT PATCHED
GRP
AUX
MAIN
MATRIX
DIRECT OUT
RACK FX
PAFL
BUS OUT
TO OUTPUT
GRP/AUX/MAIN
FX
From FX (SHORT RET)
From CH DIR OUT (INSERT FX)
From FX MIX (SEND/RTN FX)
To MIX (SHORT RTN)
To IP PATCHBAY (LONG RTN)
To IP PATCHBAY (INSERT RTN)
PEQ
LINE
ANALOGUE OUT
FX RTN
INPUT
INSERT SEND
INSERT SEND
INSERT SEND
INSERT RTN
INSERT RTN
INSERT RTN
64x32 RackExtra DSP ENGINEINPUTS OUTPUTS
DAC
BAL
-
+
ACE
ACE
From PAFL BUS
POWER UP/DOWN MUTE
None, M, LR, LCR, LCR+
LRM, LRSub, LCRSub
Configure as MONO or STEREO mixes
Configure as MONO or STEREO channels
Configure as MONO or STEREO matrix
DIGITAL TRIM
CH SOURCE
DIGITAL TRIM
TALKBACK
SURFACE INPUTS
SURFACE TALKBACK
RELAY
EXT IN SOURCE
SYSTEM BLOCK DIAGRAMiDR-16, 32, 48, 64
USER
EXT IN SOURCE
RACKEXTRA = x8 FX RACK max
TALKBACK
SIG GEN
SINE, PINK, WHITE, BP NOISE
TALKBACK
EXT INPUT
DIGITAL TRIM
MAIN MIX CONFIG:
iDR-32
= 32 MIC/LINE INPUTS
iDR-48
= 48 MIC/LINE INPUTS
iDR-32
= 16 XLR OUTPUTS
iDR-48
= 24 XLR OUTPUTS
PORT BDIGITAL MIC SPLIT IN
MULTITRACK PLAYBACK
PORT B
AUDIO NETWORK INPUTS AUDIO NETWORKOUTPUTS
SURFACE OUTPUTS
SURFACE PAFL MONITOR
REMOTE AUDIO
DIGITAL MIC SPLIT SENDS
MULTITRACK RECORDING
REMOTE AUDIO
ACE
-
+
LOCAL MON OUT
L
PHONES
LOCAL
MONITOR
PP
TB MIC
TRIM
L
SPDIF
A
B
C
D
1234
567/8
1234
567/8
TRS +4dBu SPDIF
A
B
1234567/8
SPDIF RCA 0dBu
iLive-T80
iLive-T112
RELAYBAL
-
+
NETWORK
IN OUT
MIDI
AUDIO and CONTROL
SURFACE
ACE
AUDIO and CONTROL
SURFACE AUDIO/CONTROL
CAT5
IN OUT
MIDI
NETWORKPL-ANET
PORT B
AUDIO NETWORK OPTION
PHONES
PHONES
OUT
MIC/LINE INPUTS XLR LINE OUTPUTS
SLOTS A - F SLOTS G, H, I
MIXRACK
DIGITAL MIC SPLIT
MULTITRACK RECORDING
AUDIO NETWORKING
CAT5
iDR-32 = 32x
iDR-48 = 48x
iDR-32 = 16x
iDR-48 = 24x
SURFACE AUDIO
NETWORK OPTION SLOT
SURFACE AUDIO
NETWORK OPTION SLOT
64 CHANNELS
64 CHANNELS
+4dBu
INPUT SENSITIVITY +15 to -65dBu
TRS +4dBu
TRS +4dBu
RCA 0dBuRCA 0dBu
64 CHANNELS
SLOTS A - D
SLOTS A - F
SLOTS G, H
SLOTS G, H, I
iDR-16
= 16 MIC/LINE INPUTS
SLOTS A - B
iDR-16
= 8 XLR OUTPUTS
SLOTS G
ACE
EtherSound
MADI
ACE
EtherSound
MADI
MMO
iDR-16 = 16x iDR-16 = 8x
iLive-R72
iDR-64
= 64 MIC/LINE INPUTS
SLOTS A - H
iDR-64
= 32 XLR OUTPUTS
SLOTS G, H, I, J
DUAL-RACK BUS LINK master (ACE)
DUAL-RACK BUS LINK slave
(ADAT, Aviom, iDR expander)
LIMITER
iDR-64 = 64x iDR-64 = 32x
INSERT
(from firmware V1.7)
DELAY
GRP to MTXAUX/MAIN to MTX
PRE-DLY POST-DLY

Other manuals for ALLEN & HEATH iDR-16

Related product manuals