EasyManua.ls Logo

Allen + Roth 2564458 - Page 25

Allen + Roth 2564458
36 pages
Print Icon
To Next Page IconTo Next Page
To Next Page IconTo Next Page
To Previous Page IconTo Previous Page
To Previous Page IconTo Previous Page
Loading...
25
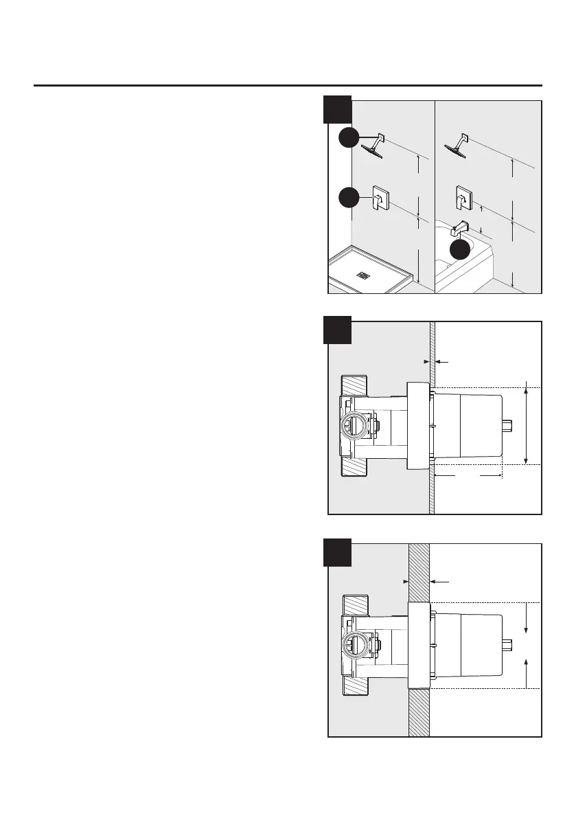
INSTRUCTIONS POUR L’ASSEMBLAGE
2. Prenez note de la distance d’installation
entre le bras de douche (B), la poignée (D)
et le bec (I).
3a. Installation sur un mur mince
Pour les murs dont l’épaisseur est inférieure à
6,35 mm Utilisez cette méthode lorsque l’épaisseur
des murs de la douche est inférieure à 6,35 mm,
comme dans le cas des contours de baignoire en
bre de verre, et que ceux-ci serviront de support
principal au robinet. Le protecteur doit rester xé au
robinet. Reportez-vous à la gure de droite.
3b. Installation sur un mur épais
Utilisez cette méthode lorsque l’épaisseur du
mur de la douche est supérieure à 6,35 mm. Les
« murs épais » sont normalement faits de matériaux
comme des panneaux de ciment, des cloisons
sèches, des carreaux, etc. Le robinet est retenu par
des courroies (non incluses) qui fixent les conduites
d’entrée aux pièces de charpente (2 x 4 po). Le
protecteur est placé de façon à être appuyé contre
le mur fini. Vous vous assurerez ainsi que le robinet
est à la bonne position pour y installer la garniture.
2
3a
3b
2
3a
3b
1,22m (48 po)
Baignoire et douche
76,2cm (30 po)
Douche Seulement
1,22m (48 po)
Douche Seulement
20,3cm (8 po) min.
76,2cm (30 po)
Baignoire et douche
Moins de 6,35 mm
(1/4 po)
Plus de 6,35 mm
(1/4 po)
19mm
(3/4 po)
57mm
(2 1/4 po) min.
89mm
(3 1/2 po) max.
13,97 cm
(5 1/2 po)
B
D
I

Related product manuals