EasyManua.ls Logo

Alliance Laundry Systems HAT30N - Page 78

Alliance Laundry Systems HAT30N
136 pages
Print Icon
To Next Page IconTo Next Page
To Next Page IconTo Next Page
To Previous Page IconTo Previous Page
To Previous Page IconTo Previous Page
Loading...
Electrical Requirements
78
©
Copyright, Alliance Laundry Systems LLC - DO NOT COPY or TRANSMIT Part No. 70458301ENR7
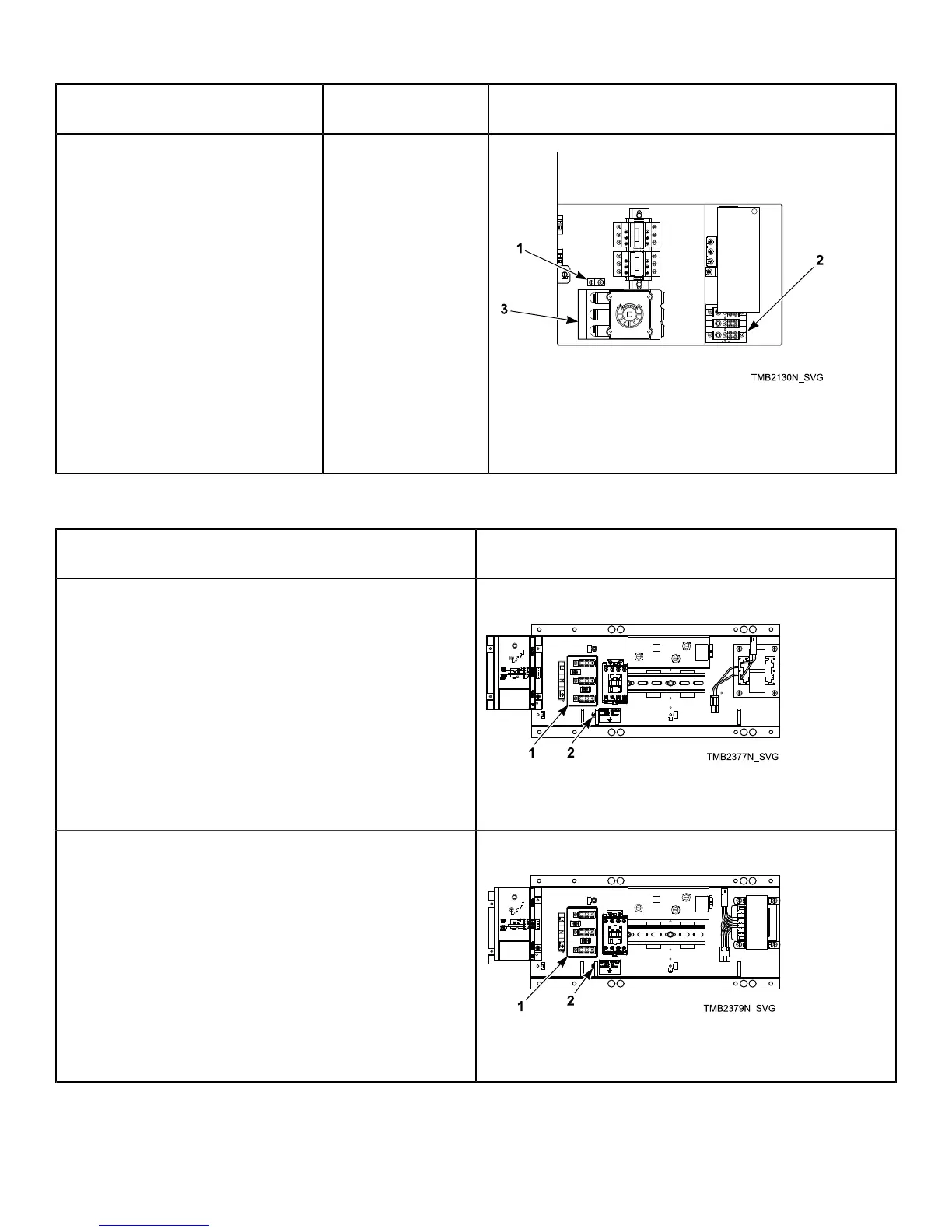
Models Through 7/9/12 Heat Source Ground and Terminal Block Locations
CE
025
030
035
055
Electric
1. Ground Lug
2. Power Distribution Block
3. Models Through 7/31/11
Table 9
Models Starting 7/10/12 Ground and Terminal Block Locations
Non-CE
025
030
035
055
Control Tray
1. Power Distribution Block
2. Ground
CE
025
030
035
055
Control Tray
1. Power Distribution Block
2. Ground
Table 10

Table of Contents

Other manuals for Alliance Laundry Systems HAT30N

Related product manuals