EasyManua.ls Logo

Alpha CD50 - Page 12

Alpha CD50
44 pages
Print Icon
To Next Page IconTo Next Page
To Next Page IconTo Next Page
To Previous Page IconTo Previous Page
To Previous Page IconTo Previous Page
Loading...
12
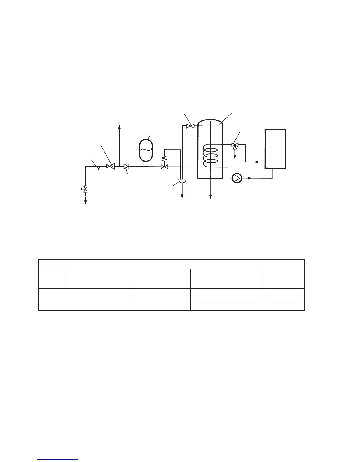
3.12 UNVENTED HOT WATER STORAGE SYSTEM
The installation is subject to Building Regulations approval and the Local Authority must be notified of the intention to install.
The CD50 boiler is supplied with all the components required for an unvented hot water system, i.e. temperature/pressure and
expansion relief valves, expansion vessel, check valve and tundish. All these components are factory fitted, except for the
tundish which must be installed as follows:-
Discharge pipe - The discharge pipes from the temperature/pressure and expansion relief valves must be routed to the
tundish supplied and in 15 mm pipe. The discharge pipework from both relief valves may be joined together in the same sized
pipe, providing at least 22 mm pipework is connected downstream of the tundish.
Alpha CD50 - General Boiler Information
Tundish - The tundish must be positioned within 500 mm of the appliance, so that it is visible to the User and away from electrical
devices. The minimum size of the discharge pipe downstream of the tundish is given in the following table.
Primary return
Boiler
Storage cylinder
Heating
Primary
flow
Hot
water
22 mm discharge
pipe
Pump
Tundish
6 bar expansion
relief valve
Temperature/pressure
relief valve
4L DHW expansion vessel
2.5 bar pressure
reducing valve
(supplied)
Filter
Stop valve
Mains
water
supply
Cold water supply
Diverter
valve
Check
valve
Fig. 10
Resistance created
by each elbow
or bend
0.8 m
1.0 m
1.4 m
Maximum resistance allowed,
expressed as a length of straight
pipe (i.e. no elbows or bends)
up to 9 m
up to 18 m
up to 27 m
Minimum size of discharge
pipe 'D2' from tundish
22 mm
28 mm
35 mm
Minimum size of discharge
pipe 'D1' to tundish
15 mm
Valve
outlet size
Sizing of copper discharge pipe 'D2' - refer also to Fig. 11Table 1
The discharge pipework from the tundish:-
1. Shall fall continuously through its length.
2. Shall be of a heat resistant material, e.g. metal.
3. Shall not be fitted with any valves or taps.
4. Shall discharge to a safe visible position, e.g. into a gulley.
5. Shall have a minimum of 300 mm straight pipework directly from the tundish.
Note: Where children may play or otherwise come into contact with discharges, a wire cage or similar guard must be
positioned to prevent contact whilst maintaining visibility.

Other manuals for Alpha CD50

Related product manuals