EasyManua.ls Logo

Alpine IVA-D901 - Wiring Diagram Explanation

Alpine IVA-D901
78 pages
Print Icon
To Next Page IconTo Next Page
To Next Page IconTo Next Page
To Previous Page IconTo Previous Page
To Previous Page IconTo Previous Page
Loading...
71-EN
SUB W.
REAR
FRONT
Ai-NET
L
R
VIDEO
CAMERA IN
(MONO)
L
AUX IN 3
R
RADIO ANTENNA IN
REMOTE IN/OUT
NAVIGATION IN
DISPLAY OUT
POWER SUPPLY
VIDEO
AUDIO
(MONO)
L
AUX IN 1/2
R
AUDIO
VIDEO
L
AUX OUT
R
PRE IN/OUT
AUDIO
1
2
1
2
3
IVA-D901
Tuner BOX
2
3
5
\
4
&
%
_
^
]
(
[ @ ? >
8
= < ; :
SPEAKER
LEFT
FRONT
SPEAKER
LEFT
REAR
GND
6
/
BATTERY
.
IGNITION
,
-
PARKING BRAKE
FOOT BRAKE
+
REMOTE
TURN-ON
~
"
!
1
POWER ANT
GND
BATTERY
SPEAKER
RIGHT
REAR
SPEAKER
RIGHT
FRONT
8
6
7
!
REVERSE
9
9
REMOTE OUT AUX2
9
#
$
4
)
NORM
EQ/DIV
REMOTE OUT AUX1
REMOTE OUT AUX3
REMOTE IN AUX1
REMOTE IN AUX2
AUDIO INTERRUPT IN
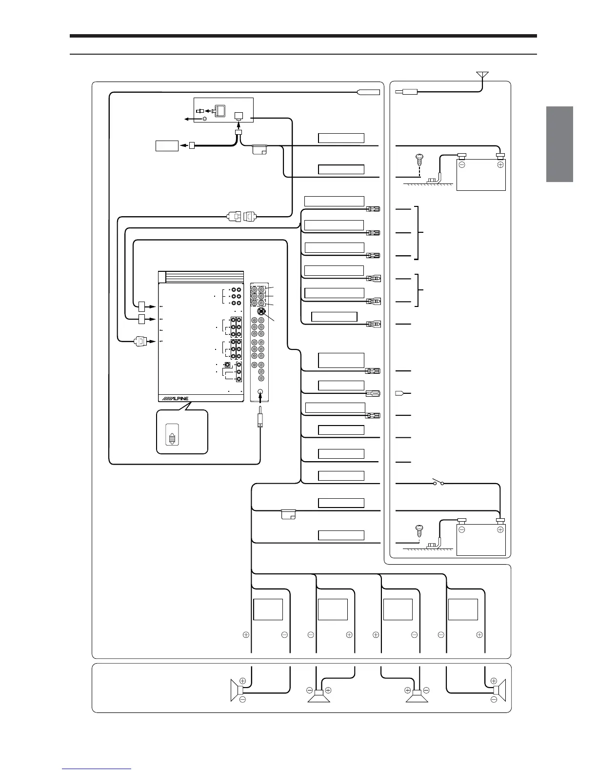
Connections (IVA-D901 Wiring Diagram)
IVA-D901
<Monitor>
(Yellow)
(Black)
Battery
(Blue)
(Pink/Black)
(Yellow/Blue)
(Red)
(Yellow)
(Black)
(White)
(White/
Black)
(Green/
Black)
(Green)
(Violet)
(Violet/
Black)
(Gray/
Black)
(Gray)
Front left Rear left Rear right Front right
Speakers
To the foot brake cord or
brake lamp cord.
To remote input lead.
To amplifier or equalizer
To power antenna
To vehicle phone
To the parking brake
signal lead
Ignition key
Battery
Antenna
Set the system switch to “NORM” when only a changer is connected (when the Ai-NET
compatible equalizer is not used).
Continued
To remote output lead.
To plus side of the back
lamp signal lead of the car
(Yellow/Black)
(White/Brown)
(White/Brown)
(Orange/White)
(Blue/White)
(White/Brown)
(White/Brown)
(White/Brown)
To remote control
interface box

Table of Contents

Related product manuals