EasyManua.ls Logo

Alto-Shaam 1000-UP - Page 46

Alto-Shaam 1000-UP
52 pages
To Next Page IconTo Next Page
To Next Page IconTo Next Page
To Previous Page IconTo Previous Page
To Previous Page IconTo Previous Page
Loading...
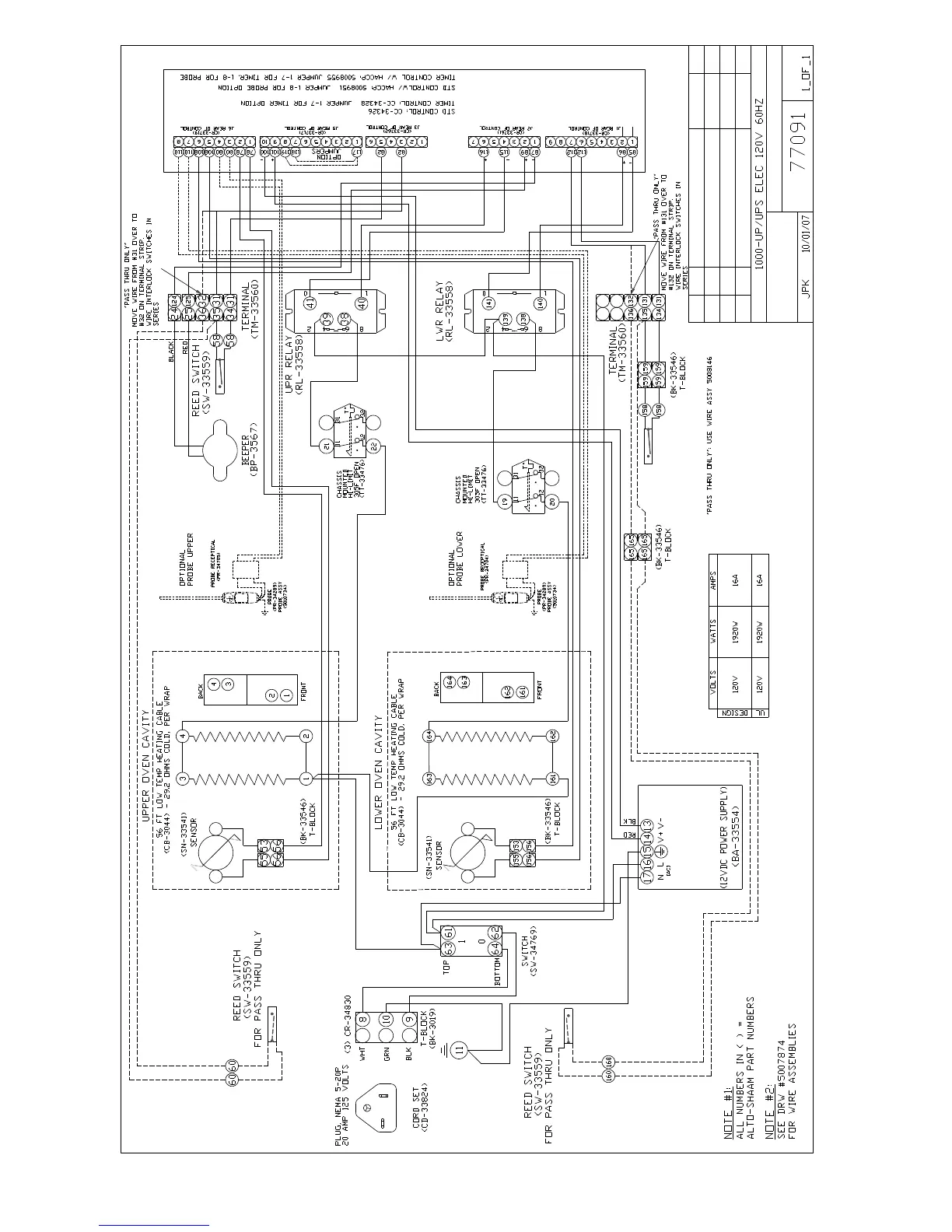
holding cabinets installation/operation/service manual (12/12) - pg. 44





 

  
 

  
 

Other manuals for Alto-Shaam 1000-UP

Related product manuals