EasyManua.ls Logo

Alto-Shaam 1000-UP - Page 47

Alto-Shaam 1000-UP
56 pages
To Next Page IconTo Next Page
To Next Page IconTo Next Page
To Previous Page IconTo Previous Page
To Previous Page IconTo Previous Page
Loading...
MN-29423 • Rev 6 • 02/18 • S-Series Hot Food Holding Cabinets 47
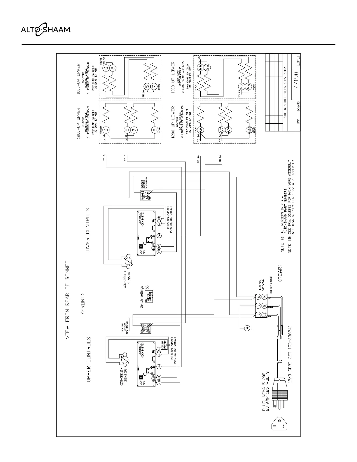
Wiring Diagrams






 
  
 

  


 


Other manuals for Alto-Shaam 1000-UP

Related product manuals