EasyManua.ls Logo

Alto-Shaam 1767-SK - Page 12

Alto-Shaam 1767-SK
47 pages
To Next Page IconTo Next Page
To Next Page IconTo Next Page
To Previous Page IconTo Previous Page
To Previous Page IconTo Previous Page
Loading...
MN-29756 (Rev. 5) 12/17 • TH-SK Series Cook, Hold, Smoke • 
Installation
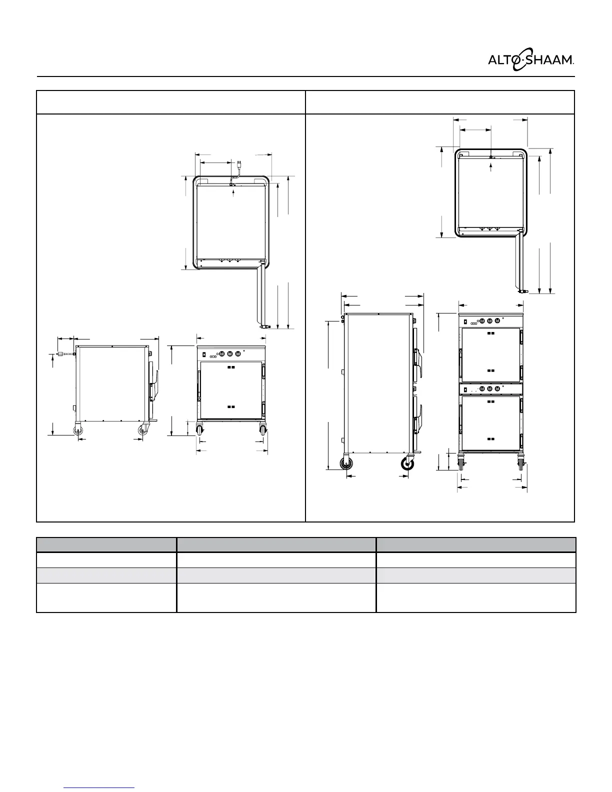
26-5/8" (676mm)
25-11/16" (651mm)
*31-11/16" (804mm) - with optional 2-1/2" casters
*35-1/16" (890mm) - with optional 5" casters
*33-13/16" (858mm) - with optional 6" legs
33-3/8" (848mm)
with 3-1/2" casters*
28-5/8" (726mm)
Shown with
optional bumper
34-7/8" (886mm)
56-3/4" (1441mm)
Electrical
Connection
54-1/16" (1373mm)
11-5/8"
(295mm)
31-5/8" (802mm)
30-3/16" (767mm)
(electrical connection)
24-1/8" (612mm)
23-5/8" (600mm)
5-1/8" (130mm)
Cord Length
120V - 5 ft. (1524mm)
230V - 8 ft. (2438mm)
767-SK
27-1/16" (686mm)
25-11/16" (651mm)
23-5/8" (600mm)
Shown with
optional bumper
Electrical
Connection
28-5/8" (726mm)
34-7/8" (886mm)
56-3/4" (1441mm)
54-1/16" (1373mm)
11-5/8"
(295mm)
31-3/4" (807mm)
24-1/8" (613mm)
58-9/16" (1487mm)
Electrical Connection
61-15/16" (1572mm) with 5" (127mm) casters*
6-13/16" (172mm)
*60-11/16" (1540mm) - with optional 3-1/2" (89mm) casters
*62-1/8" (1577mm) - with optional 6" (152mm) legs
32-3/4" (832mm)
1767-SK
Model > 767-SK 1767-SK
Net Weight
197 lb (89 kg) 356 lb (161 kg)
Ship Weight
265 lb (120 kg) 450 lb (204 kg)
Product/Pan Capacity
(per compartment)
100 lb (45 kg) maximum
Volume maximum: 53 quarts (67 liters)
100 lb (45 kg) maximum
Volume maximum: 53 quarts (67 liters)

Other manuals for Alto-Shaam 1767-SK

Related product manuals