EasyManua.ls Logo

Alto-Shaam Vector VMC-H3H - Components H4-Electrical Component Identification; Default Chapter; H4-Electrical Component Identification

Alto-Shaam Vector VMC-H3H
138 pages
Print Icon
To Next Page IconTo Next Page
To Next Page IconTo Next Page
To Previous Page IconTo Previous Page
To Previous Page IconTo Previous Page
Loading...
COMPONENTS
Vector H Seri es Serv ic e M anua l MN- 4654 4 Re v 01 1 1/19
20
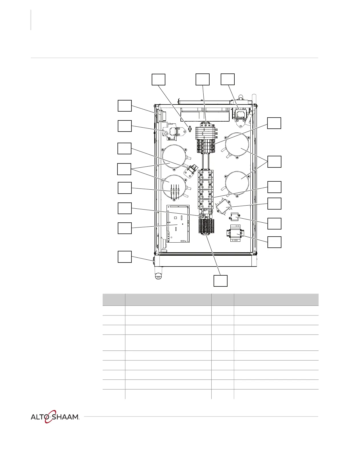
H4—Electrical Component Identification
Ref. Description Ref. Description
1 Check fans indicator light switch 10 Terminal blocks
2 Terminal blocks 11 USB port
3 Main disconnect switch 12 Control board
4 Circuit breakers (heating ele-
ments)
13 Relays
5 Variable Frequency Drive (VFD) 14 Fuses (lights)
6 Solid State Relay (SSR) 15 Wye filter (CE models only)
7 Line filter (CE models only) 16 Circuit breakers (control)
8 12VAC transformer 17 High limit switch(es)
9 12VDC power supply
VMC-PHD-007545
4
5
6
8
9
7
1
2
3
16
14
15
17
5
11
12
13
10

Table of Contents

Other manuals for Alto-Shaam Vector VMC-H3H

Related product manuals