EasyManua.ls Logo

Amana AMES960403ANAA - Page 55

Amana AMES960403ANAA
56 pages
Print Icon
To Next Page IconTo Next Page
To Next Page IconTo Next Page
To Previous Page IconTo Previous Page
To Previous Page IconTo Previous Page
Loading...
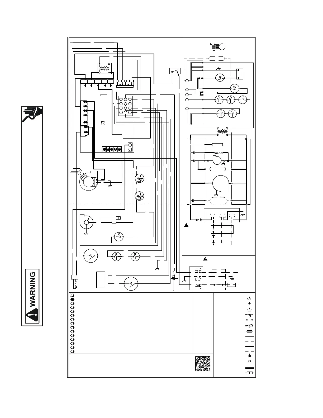
WIRING DIAGRAMS
Wiring is subject to change. Always refer to the wiring diagram on the unit for the most up-to-date wiring.
HIGH VOLTAGE!
DISCONNECT ALL POWER BEFORE SERVICING OR INSTALLING THIS
UNIT. MULTIPLE POWER SOURCES MAY BE PRESENT. FAILURE TO
DO SO MAY CAUSE PROPERTY DAMAGE, PERSONAL INJURY OR DEATH.
55
Y
L
Y
E
L
L
O
W
O
R
O
R
A
N
G
E
P
U
P
U
R
P
L
E
G
N
G
R
E
E
N
B
K
B
L
A
C
K
B
R
B
R
O
W
N
W
H
W
H
I
T
E
B
L
B
L
U
E
G
Y
G
R
A
Y
R
D
R
E
D
C
O
L
O
R
C
O
D
E
S
:
L
O
W
V
O
L
T
A
G
E
(
2
4
V
)
L
O
W
V
O
L
T
A
G
E
F
IE
L
D
H
I
V
O
L
T
A
G
E
(
1
1
5
V
)
H
I
V
O
L
T
A
G
E
F
I
E
L
D
N
O
T
E
S
:
1
.
S
E
T
H
E
A
T
A
N
T
I
C
I
P
A
T
O
R
O
N
R
O
O
M
T
H
E
R
M
O
S
T
A
T
A
T
0
.
7
A
M
P
S
.
2
.
M
A
N
U
F
A
C
T
U
R
'S
S
P
E
C
I
F
IE
D
R
E
P
L
A
C
E
M
E
N
T
P
A
R
T
S
M
U
S
T
B
E
U
S
E
D
W
H
E
N
S
E
R
V
IC
IN
G
.
G
A
S
V
A
L
V
E
C
2
I
N
T
E
R
N
A
L
T
O
IN
T
E
G
R
A
T
E
D
C
O
N
T
R
O
L
J
U
N
C
T
I
O
N
E
Q
U
I
P
M
E
N
T
G
N
D
F
I
E
L
D
G
N
D
D
IA
G
N
O
S
T
I
C
L
E
D
2
C
IR
C
U
IT
C
O
N
N
E
C
T
O
R
H
O
T
S
U
R
F
A
C
E
IG
N
IT
E
R
O
V
E
R
C
U
R
R
E
N
T
P
R
O
T
.
D
E
V
IC
E
IG
N
IT
E
R
T
H
(
3
)
IN
T
E
G
R
A
T
E
D
C
O
N
T
R
O
L
M
O
D
U
L
E
J
U
N
C
T
IO
N
B
O
X
L
IN
E
-
H
X
F
M
R
-
H
INTEGRATED CONTROL MODULE
INTEGRATED CONTROL MODULE
G
N
D
D
I
S
C
O
N
N
E
C
T
L
N
D
IS
C
O
N
N
E
C
T
P
O
W
E
R
B
E
F
O
R
E
S
E
R
V
IC
IN
G
.
W
IR
IN
G
T
O
U
N
IT
M
U
S
T
B
E
P
R
O
P
E
R
L
Y
P
O
L
A
R
IZ
E
D
A
N
D
G
R
O
U
N
D
E
D
.
O
V
E
R
C
U
R
R
E
N
T
P
R
O
T
E
C
T
IO
N
D
E
V
IC
E
B
L
4
.
B
L
O
W
E
R
S
P
E
E
D
S
S
H
O
U
L
D
B
E
A
D
J
U
S
T
E
D
B
Y
I
N
S
T
A
L
L
E
R
T
O
M
A
T
C
H
T
H
E
IN
S
T
A
L
L
A
T
IO
N
R
E
Q
U
I
R
E
M
E
N
T
S
S
O
A
S
T
O
P
R
O
V
ID
E
T
H
E
C
O
R
R
E
C
T
H
E
A
T
IN
G
T
E
M
P
E
R
A
T
U
R
E
R
I
S
E
A
N
D
T
H
E
C
O
R
R
E
C
T
C
O
O
L
I
N
G
C
F
M
.
3
.
IF
A
N
Y
O
F
T
H
E
O
R
IG
I
N
A
L
W
IR
E
A
S
S
U
P
P
L
I
E
D
W
IT
H
T
H
E
F
U
R
N
A
C
E
M
U
S
T
B
E
R
E
P
L
A
C
E
D
,
IT
M
U
S
T
B
E
H
A
V
IN
G
A
T
E
M
P
E
R
A
T
U
R
E
R
A
T
IN
G
O
F
A
T
L
E
A
S
T
T
E
R
M
I
N
A
L
S
W
IT
C
H
(
P
R
E
S
S
.)
5
.
U
N
IT
M
U
S
T
B
E
P
E
R
M
A
N
E
N
T
L
Y
G
R
O
U
N
D
E
D
A
N
D
C
O
N
F
O
R
M
T
O
N
.
E
.
C
.
A
N
D
L
O
C
A
L
C
O
D
E
S
.
P
K
P
IN
K
F
L
A
M
E
S
E
N
S
O
R
(
S
IN
G
L
E
C
O
N
T
R
O
L
O
N
4
0
K
B
T
U
)
B
K
P
L
U
G
C
O
N
N
E
C
T
IO
N
F
I
E
L
D
S
P
L
IC
E
S
W
IT
C
H
(
T
E
M
P
.)
B
L
O
W
E
R
C
O
M
P
A
R
T
M
E
N
T
D
O
O
R
S
W
IT
C
H
(
O
P
E
N
W
H
E
N
D
O
O
R
O
P
E
N
)
D
O
O
R
S
W
IT
C
H
W
A
R
N
IN
G
:D
IS
C
O
N
N
E
C
T
P
O
W
E
R
B
E
F
O
R
E
S
E
R
V
IC
IN
G
.W
IR
IN
G
T
O
U
N
IT
M
U
S
T
B
E
P
R
O
P
E
R
L
Y
P
O
L
A
R
IZ
E
D
A
N
D
G
R
O
U
N
D
E
D
.
POWER SUPPLY WITH
OVERCURRENT PROTECTION
DEVICE
1
TO 115 VAC / / 60HZ
O
R
ID
B
L
O
W
E
R
P
R
E
S
S
U
R
E
S
W
IT
C
H
R
D
W
H
B
U
R
N
E
R
C
O
M
P
A
R
T
M
E
N
T
B
L
O
W
E
R
C
O
M
P
A
R
T
M
E
N
T
N
O
Y
L
C
O
N
T
R
O
L
P
R
I
M
A
R
Y
L
I
M
IT
A
U
T
O
R
E
S
E
T
B
L
P
U
M
A
N
U
A
L
R
E
S
E
T
R
O
L
L
O
U
T
L
IM
IT
C
O
N
T
R
O
L
(S
)
R
D
O
R
P
K
B
K
W
H
W
H
B
L
O
W
E
R
IN
D
U
C
E
D
D
R
A
F
T
A
U
X
IL
IA
R
Y
L
IM
I
T
C
O
N
T
R
O
L
S
C
F
S
L
IM
IT
C
O
N
T
R
O
L
S
A
U
X
IL
IA
R
Y
IG
N
I
T
E
R
H
O
T
S
U
R
F
A
C
E
IN
D
IG
N
B
L
W
R
C
IR
C
U
L
A
T
O
R
B
L
W
R
I
D
F
L
A
M
E
S
E
N
S
O
R
1
1
5
V
A
C
T
R
A
N
S
F
O
R
M
E
R
4
0
V
A
2
4
V
A
C
G
N
D
C
O
N
T
R
O
L
L
IM
IT
P
R
IM
A
R
Y
A
U
T
O
R
E
S
E
T
(
S
IN
G
L
E
C
O
N
T
R
O
L
O
N
4
0
K
B
T
U
)
L
IM
IT
C
O
N
T
R
O
L
(S
)
M
A
N
U
A
L
R
E
S
E
T
R
O
L
L
O
U
T
R
O
1
(
5
)
R
O
2
(
1
1
)
H
L
O
(
1
)
H
L
I
(
7
)
M
V
C
(9
)
G
N
D
(8
)
T
R
(6
)
OR
WH
BL
YL
OR
RD
GR
BR
P
K
PK
BK
BK
24V THERMOSTAT CONNECTIONS N.E.C. CLASS 2 WIRE
M
IC
R
O
T
O
C
G
Y
W
R
2
O
R
B
L
Y
L
O
R
P
K
R
D
O
R
W
H
XFMR-H
B
L
G
Y
G
R
1
2
3
1
2
1
1
1
0
9
8
7
6
5
4
W
A
R
N
IN
G
:
1
0
5
°
C
.
U
S
E
C
O
P
P
E
R
C
O
N
D
U
C
T
O
R
S
O
N
L
Y
.
P
S
O
(
4
)
M
V
(1
2
)
P
S
(
1
0
)
C
N
O
ID
B
L
O
W
E
R
P
R
E
S
S
U
R
E
S
W
IT
C
H
0
C
6
5
4
3
2
1
O
F
F
=
C
O
N
T
R
O
L
F
A
I
L
U
R
E
S
T
E
A
D
Y
O
N
=
N
O
R
M
A
L
O
P
E
R
A
T
IO
N
1
F
L
A
S
H
=
2
F
L
A
S
H
E
S
=
P
R
E
S
S
U
R
E
S
W
IT
C
H
S
T
U
C
K
C
L
O
S
E
D
3
F
L
A
S
H
E
S
=
P
R
E
S
S
U
R
E
S
W
IT
C
H
S
T
U
C
K
O
P
E
N
4
F
L
A
S
H
E
S
=
O
P
E
N
H
IG
H
L
IM
IT
5
F
L
A
S
H
E
S
=
F
L
A
M
E
S
E
N
S
E
W
IT
H
O
U
T
G
A
S
V
A
L
V
E
O
P
E
N
R
O
L
L
O
U
T
6
F
L
A
S
H
E
S
=
S
Y
S
T
E
M
L
O
C
K
O
U
T
(
R
E
T
R
IE
S
E
X
C
E
E
D
E
D
)
C
O
N
T
I
N
U
O
U
S
/R
A
P
ID
F
L
A
S
H
E
S
=
R
E
V
E
R
S
E
D
1
1
5
V
A
C
P
O
L
A
R
IT
Y
C
O
N
T
R
O
L
M
O
D
U
L
E
IN
T
E
G
R
A
T
E
D
F
U
S
E
M
I
G
Y
GY
M
1
G
A
S
V
A
L
V
E
C
2
T
O
1
1
5
V
A
C
/
1
Ø
/6
0
H
Z
P
O
W
E
R
S
U
P
P
L
Y
W
IT
H
P
U
B
R
G
Y
B
R
LINE NEUTRALS
N
O
C
F
R
O
N
T
C
O
V
E
R
P
R
E
S
S
U
R
E
S
W
IT
C
H
C
N
O
F
R
O
N
T
C
O
V
E
R
P
R
E
S
S
U
R
E
S
W
IT
C
H
Y
L
7
F
L
A
S
H
E
S
=
8
F
L
A
S
H
E
S
=
L
O
W
F
L
A
M
E
S
IG
N
A
L
IG
N
IT
E
R
R
E
L
A
Y
F
A
U
L
T
7
8
E
L
E
C
T
R
O
N
I
C
A
IR
C
L
E
A
N
E
R
E
A
C
-H
H
U
M
ID
IF
IE
R
H
U
M
ID
IF
I
E
R
R
C
G
W
Y
2
4
V
T
H
E
R
M
O
S
T
A
T
C
O
N
N
E
C
T
IO
N
S
N
.
E
.
C
.
C
L
A
S
S
2
W
I
R
E
R
D
O
R
1
1
5
V
A
C
2
4
V
A
C
B
K
G
Y
4
0
V
A
T
R
A
N
S
F
O
R
M
E
R
W
H
G
N
G
N
D
R
D
5
2
1
4 3
G
C
W
H
L
N
B
L
O
W
E
R
C
I
R
C
U
L
A
T
O
R
H
A
R
N
E
S
S
E
C
M
M
T
R
R
D
B
K
O
R
B
L
B
K
R
D
W
H
W
H
W
H
B
L
R
D
O
R
B
K
W
H
B
K
G
N
D
D
IS
C
O
N
N
E
C
T
L
N
W
H
J
U
N
C
T
I
O
N
B
O
X
G
N
D
G
R
G
R
G
N
D
G
N
D
E9
E36
IG
N
-N
I
G
N
-N
I
G
N
-N
E8
1
2
0
V
E7
H
U
M
-N
E6
IG
N
-N
E5
X
F
M
R
-N
IG
N
-
N
E4
E32
E25
E3
E1 E2
L
IN
E
-H
X
F
M
R
-H
C
IR
C
-H
1
2
0
V
H
U
M
-H
E
A
C
-H
T
1
T
2
T
3
T
4
X
C
O
M
B
K
R
C
MICRO
CONTROLLED
0
1
4
0
F
0
2
4
8
2
-A
9
F
L
A
S
H
E
S
=
9
1
0
F
L
A
S
H
E
S
=
1
0
1
1
F
L
A
S
H
E
S
=
1
1
1
2
F
L
A
S
H
E
S
=
1
2
REPLACED WITH W IRING MATERIAL
T
W
IN
N
IN
G
F
A
U
L
T
O
P
E
N
F
U
S
E
IG
N
IT
E
R
O
P
E
N
IN
D
U
C
E
R
R
E
L
A
Y
E
R
R
O
R
B
K
CIRC-H

