EasyManua.ls Logo

Amana PGB**C - Page 80

Amana PGB**C
85 pages
Print Icon
To Next Page IconTo Next Page
To Next Page IconTo Next Page
To Previous Page IconTo Previous Page
To Previous Page IconTo Previous Page
Loading...
80
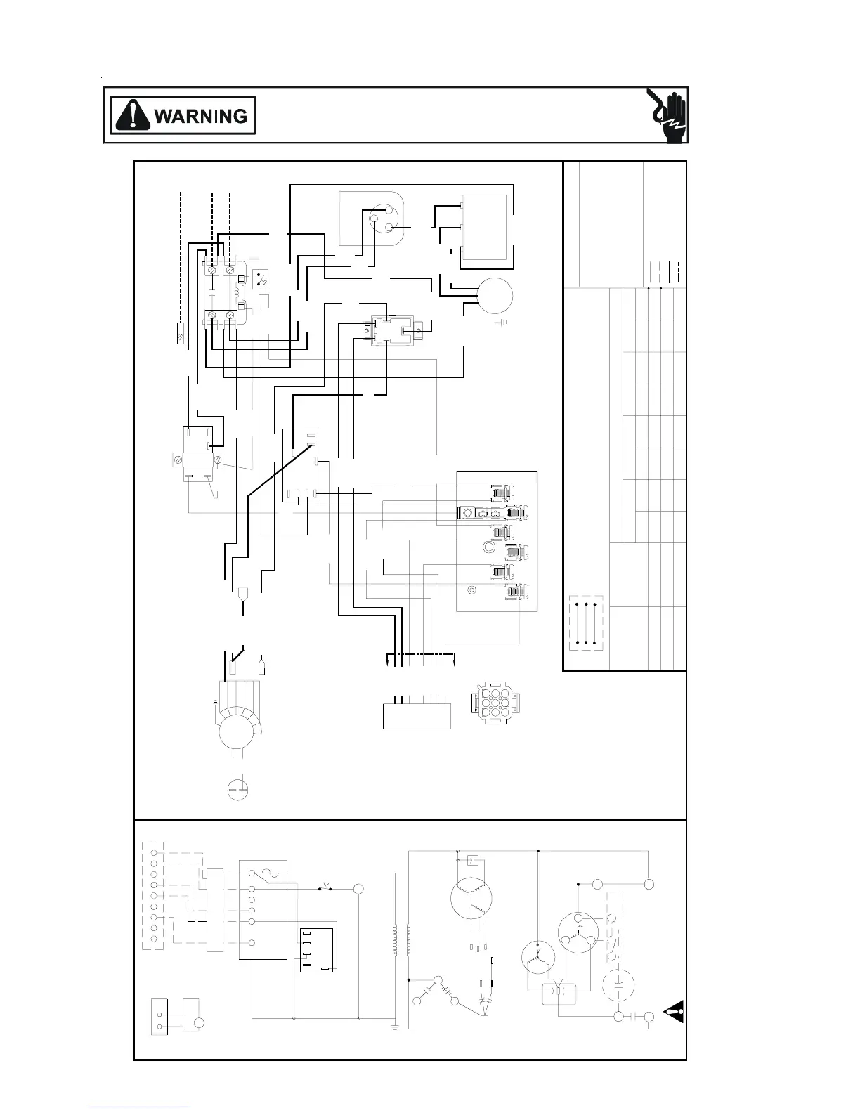
WIRING DIAGRAMS
HIGH VOLTAGE!
DISCONNECT ALL POWER BEFORE SERVICING OR INSTALLING THIS
UNIT. MULTIPLE POWER SOURCES MAY BE PRESENT. FAILURE TO
DO SO MAY CAUSE PROPERTY DAMAGE, PERSONAL INJURY OR DEATH.
PCC42, 48C02 [E/F]
75
°C MIN
WIRING
FIELD CONNECTI ON
208/230 VAC 1
Ø
208/230 VAC 1
Ø
WARNING:DISCONNECT POWER BEFORE SERVICING.
USE COPPER CONDUCTORS ONLY - 75ºC MIN
XFMR-R
R
XFMR-C
C
G
NO
NC
COM
WH -7
G
C
XF MR C
XF MR R
R
COM
NC
NO
HI VOLTAGE FIELD
R
CC
MED
COIL
FOLLOWING CHANGE MUST BE MADE:
L2
HI
ELECTRIC HEAT BLOWER TAP
HEAT RELAY
LOW
HORIZ
NUMBER
GN GREEN
PCC42C02*
MED
G
CAP
HER M
FAN
OD
COLOR CODE
YL YELLOW
MED
PCC48C02*
Y
G
MED
TO HEATER KIT
C
LOW
ACB
CONTACTOR
LOW
BK BLACK
230/208
LOW VOLTAGE FIELD
MED
R
HORIZ
MED
HI VOLTAGE
HORIZ
T1
DOWN
ALTERNATE UNIT POWER REFRIGERANT
R
BLOWER
FOR PROPER OPERATION ON 208 VOLT THE
W2
RD RED
KIT
T2
LOW
MED
2
DOWN
DOWN
LPS
PHCB20C1
W
RELAY
LOW
COOLING
RD
HEATER
MED
PHCB05C1
RELAY
GN
CAP
RELAY
COM
L1
HORIZ
LOW VOLTAGE
C
ACCE SSORY INSTALLATION INSTRUCTIONS.
OR ORANGE
TAP
HEAT
1
LOW
22303201 REV. 1
230 VOLT
4
F
U
S
E
208 VOLT INSTALLATION
LEADS MAY BE USED WITH ELECTRIC
HEAT
LO
CAP
START
DOWN
PHCB10C1
5
COOLING
COMMON
PHCB15C1
COOLING
S
CAP
BU BLUE
HI
24V
SPEED TAP
FAN
BR BROWN
MED
MOVE RD6 WIRE FROM TRANSFORMER
HEATER ACCESSORIES. SEE HEATER
W
C
GY GRAY
LOW
BK
5
2
ELECTRIC
START
ELECTR IC
W1
HI
230 TERMINAL TO 208 TERMINAL.
MODE L
E
COMP
MED
VT VIOLET
FAN RELAY
SWITCH
WH WHITE
Y
COOLING
TAP
RD-27
USE COPPER
RD
RD-6
7
ELECTRIC
4
T2
FAN
YL-27
FAN
VT-14(COMMON)
C
BU-34
HERM
L2
C
TRANSFORMER
BU
BK-27
BR-21
GY-70
BU-34
VT-14
TERMINAL BOARD
BR
YL/BK
VT
TO
PIN 5
BR-11
HI
W
GND
LOW
Y
YL/BK
L1
S
COMPR ESSOR
3
VT-20
12
O
RD-13
BK-26
RD-11
PIN 8
HEATER
PIN 1
PIN 2
6
MED
6
PIN 7
BLOWER
2
5
RELAY
31
BU-1
RD
YL
RD-13
CAPACITOR
G
CIRC ULATI ON
2
BU-9
COMMON
RD
(ACB)
KITS
SWITCH
PIN 6
RD-10
BU-23
4
5
BK-26
2
RD-27
VIEW A-A
R
BU-23( HEAT)
10
33
GY-28
CONDUCTORS
BR
1
CONTACTOR (CC)
CAPACITOR
1
L2
A
MOTOR
LINE
LOAD
VT-18
RD-22
VT-7
VT-18
AIR
3
PIN 9
5
L1
1
RD
A
(CAP)
BU
HEAT
SWITCH (LPS)
LOW PRESSUR E
BU-9
RD-31
7
RELAY
23
230
COOLING
3
GND
BU-9
COM
20
PIN 4
O.D.
208
R
T1
31
9 8
PIN 3
VT-16
ONLY-
RD-24(COOL)
COM
4

Table of Contents

Other manuals for Amana PGB**C

Related product manuals