EasyManua.ls Logo

Amana PGB**C - Page 81

Amana PGB**C
85 pages
Print Icon
To Next Page IconTo Next Page
To Next Page IconTo Next Page
To Previous Page IconTo Previous Page
To Previous Page IconTo Previous Page
Loading...
81
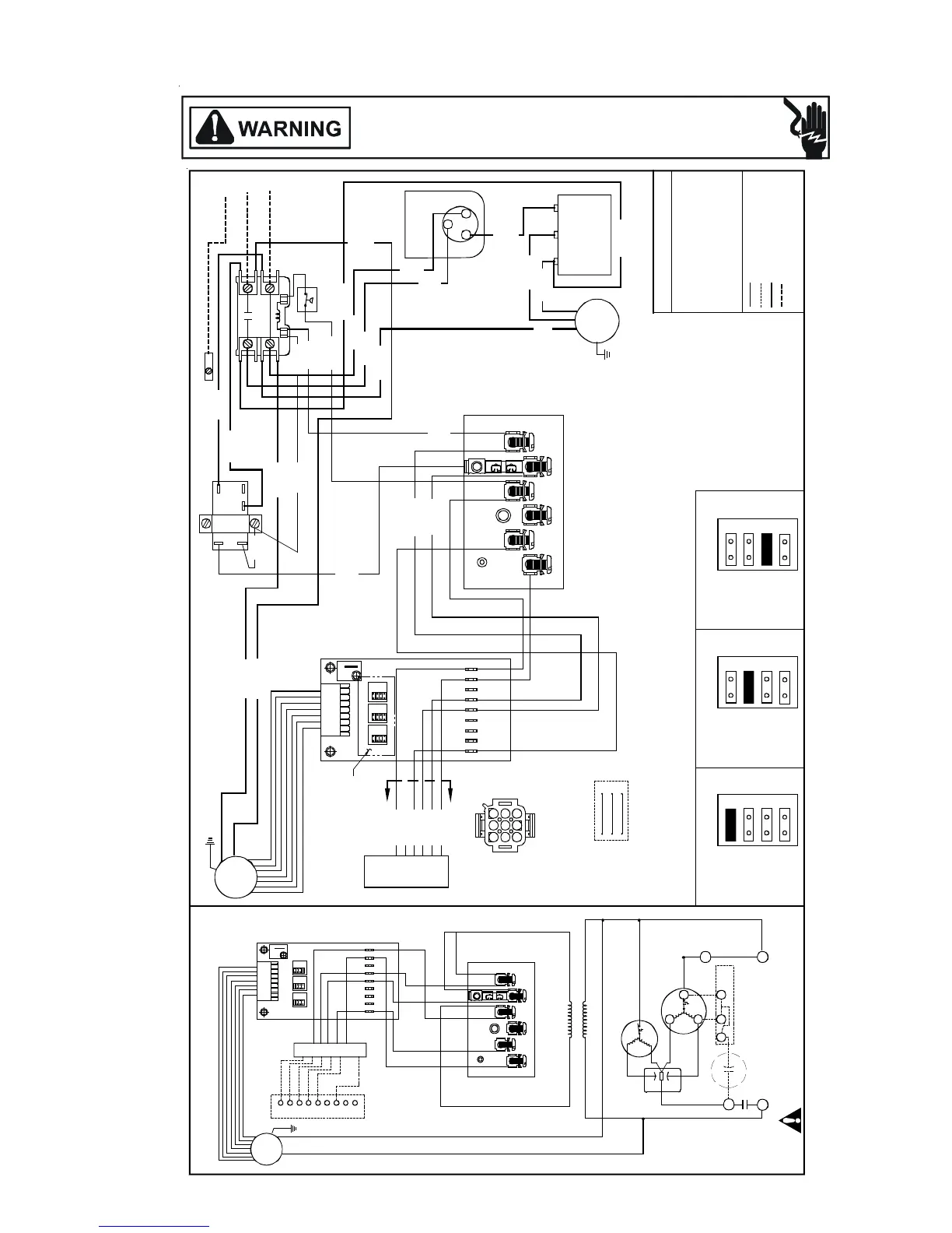
WIRING DIAGRAMS
HIGH VOLTAGE!
DISCONNECT ALL POWER BEFORE SERVICING OR INSTALLING THIS
UNIT. MULTIPLE POWER SOURCES MAY BE PRESENT. FAILURE TO
DO SO MAY CAUSE PROPERTY DAMAGE, PERSONAL INJURY OR DEATH.
PCC60C02 [E/F]
DISCONNECT UNIT POWER
WHEN CHANGING TAPS
CONTACTOR (CC)
YL YELLOW
OR ORANGE
VT VIOLET
GN GREEN
BK BLACK
BR BROWN
WH WHITE
BU BLUE
GY GRAY
RD RED
COLOR CODE
LOW VOLTAGE
LOW VOLTAGE FIELD
HI VOLTAGE
HI VOLTAGE FIELD
20283201 REV. 0
R
S
C
FAN
COM
HERM
CAP
T1
T2
COMP
OD
FAN
CC
WARNING: DISCONNECT POWER BEFORE SERVICING.
USE COPPER CONDUCTORS ONLY
COMPRESSOR
1Ø WIRING
O.D.
FAN
MOTOR
COM
208
23 0
LOAD
LINE
TRANSFORMER
CS
R
FIELD CONNECTION
208/230 VAC 1Ø
L1
GND
L2
AIR
CIRCULATION
BLOWER
(ACB)
L1
208/2 30 VAC
FOR PROPER OPERATION ON 208 VOLT THE
FOLLOWING CHANGE MUST BE MADE:
208 VOLT INSTALLATION
MOVE RD6 WIRE FROM TRANSFORMER
230 TERMINAL TO 208 TERMINAL.
VT
20
RD
10
CONTACTOR (CC)
PIN 1
PIN 2
PIN 3
PIN 4
PIN 5
PIN 6
PIN 7
PIN 8
PIN 9
GY-70
TO
HEATER
KIT
BU-34
RD-13
BR-21
YL-27
COM
FAN HER M
CAPACITOR
YL
12
BK-27
BR-11
GND
L2
T2
L1
T1
W1
G
E
C
R
W
O
Y
24V
COMMON
CAP
L2
START
CAP
521
START
REL AY
VT-7
RD-6
BU-9
BU-9
RD-27
230/208
VT-14
BU-9
BU-7
VT-20
RD-10
T
O
H
E
A
T
E
R
K
I
T
W2
USE COPPER
CONDUCTORS
ONLY-
75°C MIN
HEATER
KIT
YL/BK
LOW PRESSURE
SWITCH (LPS)
RD-27
RD
31
VT
16
RD
33
C
2
C
1
R
3
O
ADJUST
NOR M
( )+
(-)
TEST
HEAT
A
B
C
D
COOL
A
B
C
D
R
2
E
M
/
W
2
W
1
Y
/
Y
2
G
VT-14
RD-31
BLOWER
INTERFACE
C
2
C
1
R
3
O
A
D
J
U
S
T
N
O
R
M
(
)+
(
-
)
T
E
S
T
H
E
A
T
A
B
C
D
C
O
O
L
A
B
C
D
C
U
T
T
O
E
N
A
B
L
E
D
E
H
U
M
ID
IF
Y
R
2
E
M
/
W
2
W
1
Y
/
Y
2
G
BLOWER
INTERFACE
(COOL)
A
B
C
D
1700
1717
1734
1750
(HEAT)
A
B
C
D
525(7.5 KW)
700(10 KW)
1050(15 KW)
1400(20 KW)
CFM
ADJUST
NORM
(+)
(-)
TEST
CFM
DETAIL 2
RD
BK
GN
321
65
987
4
VIEW A-A
ALTERNATE UNIT POWER REFRIGERANT
LEADS MAY BE USED WITH ELECTRIC
HEATER ACCESSORIES. SEE HEATER
ACCESSORY INSTALLATION INSTRUCTIONS.
A
A
A
B
C
D
G
W
O
Y
R
C
TERMINAL BOARD
BU
7
BU-34
RD-13
VT-16
G
W
O
Y
R
C
TERMINAL BOARD
SEE DETAIL 2
AIR
CIRCULATION
BLOWER
(ACB)
ENABLE
DEH U M ID I F Y
CUT TO

Table of Contents

Other manuals for Amana PGB**C

Related product manuals