EasyManua.ls Logo

AMBIC Classic - Schematic Layout and Installation Overview; Schematic Layout; Installation Guide

AMBIC Classic
9 pages
Print Icon
To Next Page IconTo Next Page
To Next Page IconTo Next Page
To Previous Page IconTo Previous Page
To Previous Page IconTo Previous Page
Loading...
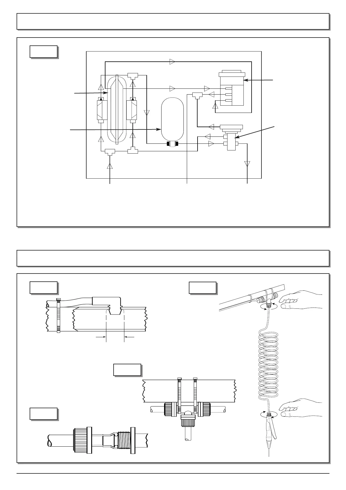
FIG. 3
1
. SCHEMATIC LAYOUT
2. INSTALLATION
FIG. 2
FIG. 5
FIG. 6
10 mm Ø
3/8” Ø
ATS/2006
A
TS/426
ATS/436
ATS/401
1
ATS/425
C E F
FIG. 4