EasyManua.ls Logo

AOX AOX-Q-005 - Wiring Diagram; Wiring Diagram (AOX-Q-005~010, 110;220 VAC, 1 Ph, On;Off); Wiring Diagram (AOX-Q-015~600, 110;220 VAC, 1 Ph, On;Off)

Default Icon
17 pages
Print Icon
To Next Page IconTo Next Page
To Next Page IconTo Next Page
To Previous Page IconTo Previous Page
To Previous Page IconTo Previous Page
Loading...
- 9 -
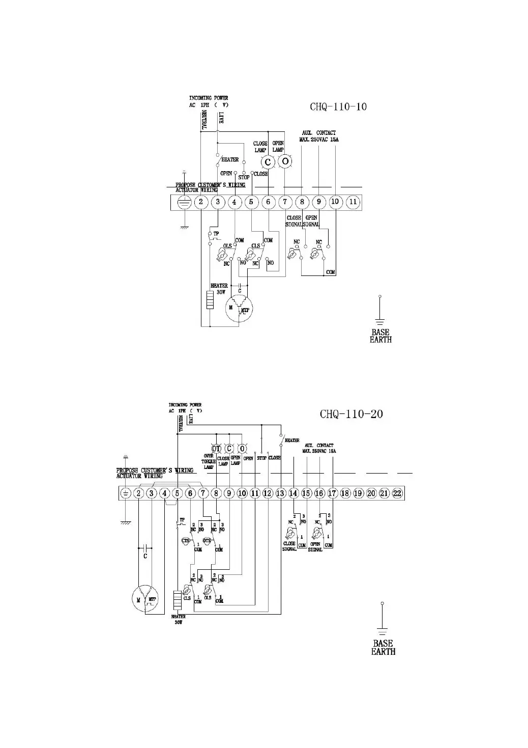
7. Wiring Diagram
7.1 AOX-Q-005010 110/220VAC/50/60Hz,1Phon/off model
Picture 3
7.2 AOX-Q-015
600 110/220VAC/50/60Hz,1Ph
on/off model
Picture 4

Related product manuals