EasyManua.ls Logo

Areca ARC-1210 - Page 43

Areca ARC-1210
171 pages
Print Icon
To Next Page IconTo Next Page
To Next Page IconTo Next Page
To Previous Page IconTo Previous Page
To Previous Page IconTo Previous Page
Loading...
HARDWARE INSTALLATION
43
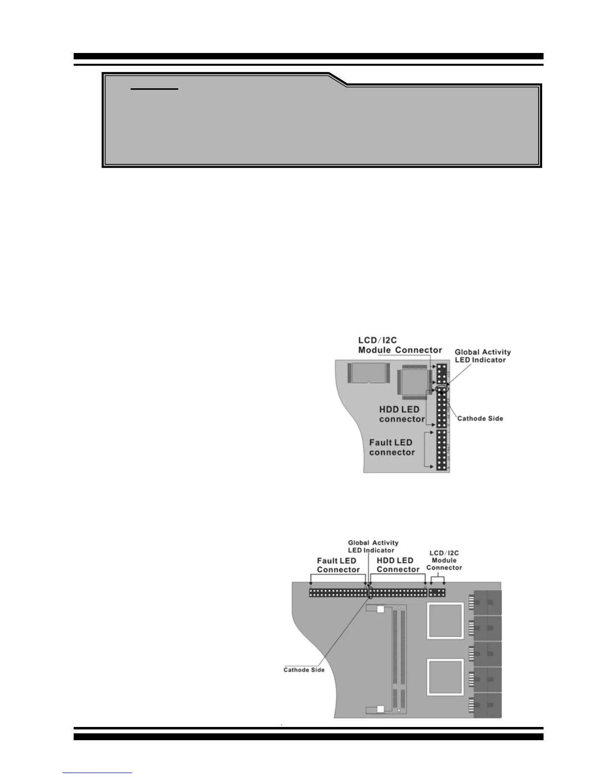
Note:
A cable for the global indicator comes with your computer sys-
tem. Cables for the individual drive LEDs may come with a drive
cage, or you may need to purchase them.
Figure 2-16, ARC-
1110/1120/1210/1220
global LED connection
for Computer Case.
Figure 2-17, ARC-
1130/1160/1230/1260
global LED connection
for Computer Case.
A: Global Indicator Connector
If the system will use only a single global activity indicator, attach
the LED to the rst two pins of the connector. The following dia-
grams show the connector and pin locations.

Table of Contents

Related product manuals