EasyManua.ls Logo

Argo 245C - Mitgeliefertes Zubehör; Montage der Einheit

Argo 245C
100 pages
Print Icon
To Next Page IconTo Next Page
To Next Page IconTo Next Page
To Previous Page IconTo Previous Page
To Previous Page IconTo Previous Page
Loading...
4
AUFSTELLUNG
Die Aufstellung soll von einem Fachtechniker durchgeführt
werden, indem die Aufstellungsanweisungen befolgen.
WAHL DES AUSSTELLUNGSORTS DER
EINHEIT
Auf dem Fall sollen Sie einen Radiator einer Heizanlage
ersetzen, folgen Sie die Aufstellungsanleitungen von dem
Kit für Wärmewasserheizung.
Die Wand soll eine Außenwand sein.
Befestigen Sie die Einheit Minimum 10 cm und Maximum
100 cm hoch.
Versichern Sie sich, daß die gewählte Wand das Gewicht
der Einheit tragen kann.
Berücksichtigen Sie, daß genug Platz für die Wartung
vorhanden ist.
Vergewissern Sie sich, daß keine Hindernisse neben der
Einheit den Luftumlauf unterbrechen können.
Vermeiden Sie die Installationen an Stellen, an denen
der Luftstrom der Einheit direkt gegen Leute, elektrischen
Haushaltgeräte oder Wärmequellen ist.
VORSICHT
Nachdem Sie das Aufstellungsort gewählt haben, indem
Sie die vorstehende Punkte folgen, versichern Sie sich,
daß kein Loch im Bereich mit elektrischen Kabeln und
Rohrkabeln gebohrt wird.
Prüfen Sie auch, daß keine Hindernisse den
Aussenluftumlauf in der Plastikröhre in der Wand
unterbrechen können.
Sie sollten einen Mindestabstand von 80 cm zwischen
der Einheit und eventuellen Wänden oder Hindernisse
schaffen.
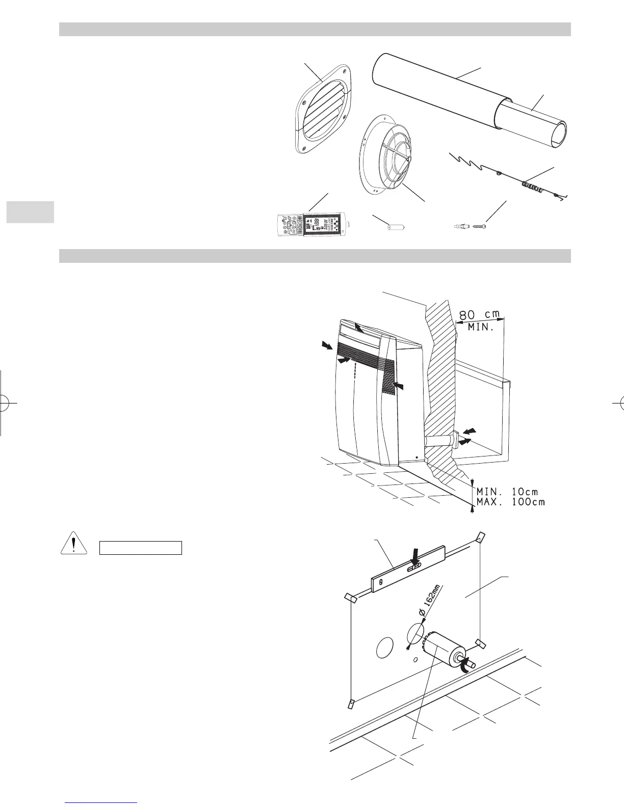
1. PLASTIKROHR (N°1)
2. AUSSENGITTER (N°2)
3. INNERE GITTER (N°2)
4. FEDER (N°2)
5. SCHABLONE (N°1)
6. DÜBEL + SCHRAUBEN (N°15)
7. FERNBEDIENUNG (N°1)
8. BATTERIE FÜR FERNBEDIENUNG (N°2.)
MITGELIEFERTES ZUBEHÖR
5
1
2
3
4
6
7
8
Waage
Schablone
Fräser
MONTAGE DER EINHEIT
- Die Schablone an die Wand anlehnen und nivellieren.
- Durchführen Sie die zwei Lochen Ø 162 mm und das
eventuellen Loch Ø 35 mm für die Wärmepumpe Einheit,
um das Kondenswasser Außen ablaufen zu lassen
(Versichern Sie eine Neigung nach Draußen).
D

Table of Contents

Related product manuals