EasyManua.ls Logo

Armstrong G2D80CT - Schematic Diagrams; G1 D80 BT;G1 D80 BR Schematic Diagram

Armstrong G2D80CT
31 pages
Print Icon
To Next Page IconTo Next Page
To Next Page IconTo Next Page
To Previous Page IconTo Previous Page
To Previous Page IconTo Previous Page
Loading...
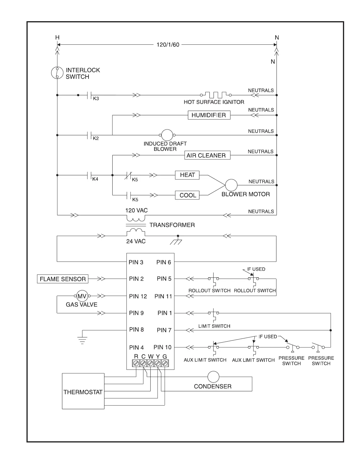
# 45465K005 Page 29
Figure 30
G1D80BT, G1D80BR Schematic Diagram
P/N 45198-006

Related product manuals