EasyManua.ls Logo

Arneg Lisbona - Page 13

Arneg Lisbona
Print Icon
To Next Page IconTo Next Page
To Next Page IconTo Next Page
To Previous Page IconTo Previous Page
To Previous Page IconTo Previous Page
Loading...
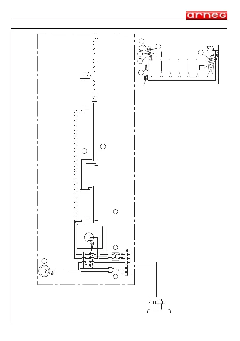
Lisbona
12 05060030 03 30/07/2015
16
3 2
4
12
1
CANOPY LIGHTING
ILLUMINAZIONE PLAFONIERA
12
5
34
TENDA NOTTE(OPTIONAL)
NIGHT BLIND(OPTIONAL)
BALLASTS
REATTORI
3124
FILTRO ANTIDISTURBO
LC RFI FILTER
NLUU
6
SHELVES LIGHTING
ILLUMINAZIONE RIPIANI
M
BLU/BLUE
G.VERDE/YELLOW-GREEN
MARRONE/BROWN
NERO/BLACK
6
5
4
3
2
1
Pe
N
L
COD 04490350
BALLAST QT2x36W
REATTORE QT2x36W
4
3
2
1
Pe
N
L
COD 04490376
BALLAST QT1x36W
REATTORE QT1x36W
3
4
5
7
NIGHT BLIND SWITCH
DEVIATORE TENDE NOTTEINTERRUTTORE LUCI
LIGHT SWITCH
76
1
2
3
4
5
6
1
2
3
5
4
6
7
8
9
CONNETTORE BIANCO
WHITE CONNECTOR
PLAFONIERA ILLUMINAZIONE
CANOPY LIGHTING
QE
2
1
4
6
5
3
DY
7
R1

Table of Contents

Related product manuals