EasyManua.ls Logo

Ashley AF1500E - Operating Air Settings; Air Control Functions; Air Control Settings

Ashley AF1500E
60 pages
Print Icon
To Next Page IconTo Next Page
To Next Page IconTo Next Page
To Previous Page IconTo Previous Page
To Previous Page IconTo Previous Page
Loading...
-18-
OPERATING THE PRIMARY AND SECONDARY AIR SETTINGS
Primary air- is the driving air supply that feeds the re in the heater. This air is introduced through the damper in
the feed door to sustain the combustion.
Secondary air is the air supply that is typically introduced above the re to effectively “re-burn” the smoke
created in the primary combustion before the exhaust gasses exit the stove. This air is preheated before being
injected into the heater so it can react with (re-burn) the smoke when they mix.
When increasing the amount of primary air supplied to the heater, the secondary should also be increased as
well to ensure a clean burn.
Rear Pilot/Tertiary Air The air that is introduced at the back of the rebox and is to help sustain heat in the
secondary air to help ensure a cleaner burn.
Start up: During Start-up the Primary and the Secondary air adjustments should be in the fully open or the “High”
setting positions. This allows for the maximum amount of combustion air during the initial start-up to insure the
fastest and cleanest start-up. The primary air will be in the “High” position when the thermostat is calling for heat.
These settings should remain open until the stove has heated up and an adequate re has been established.
Once the re is well established, both the primary and the secondary air settings can be adjusted down to the
desired heat setting. The primary and the secondary air mix inside the rebox to provide a more efcient and
cleaner burn. We encourage that you get to know your stove and how it reacts to adjusting both the primary
and the secondary air dampers so that you can achieve the best burn possible for the type of wood and the
draft situations in your particular installation.
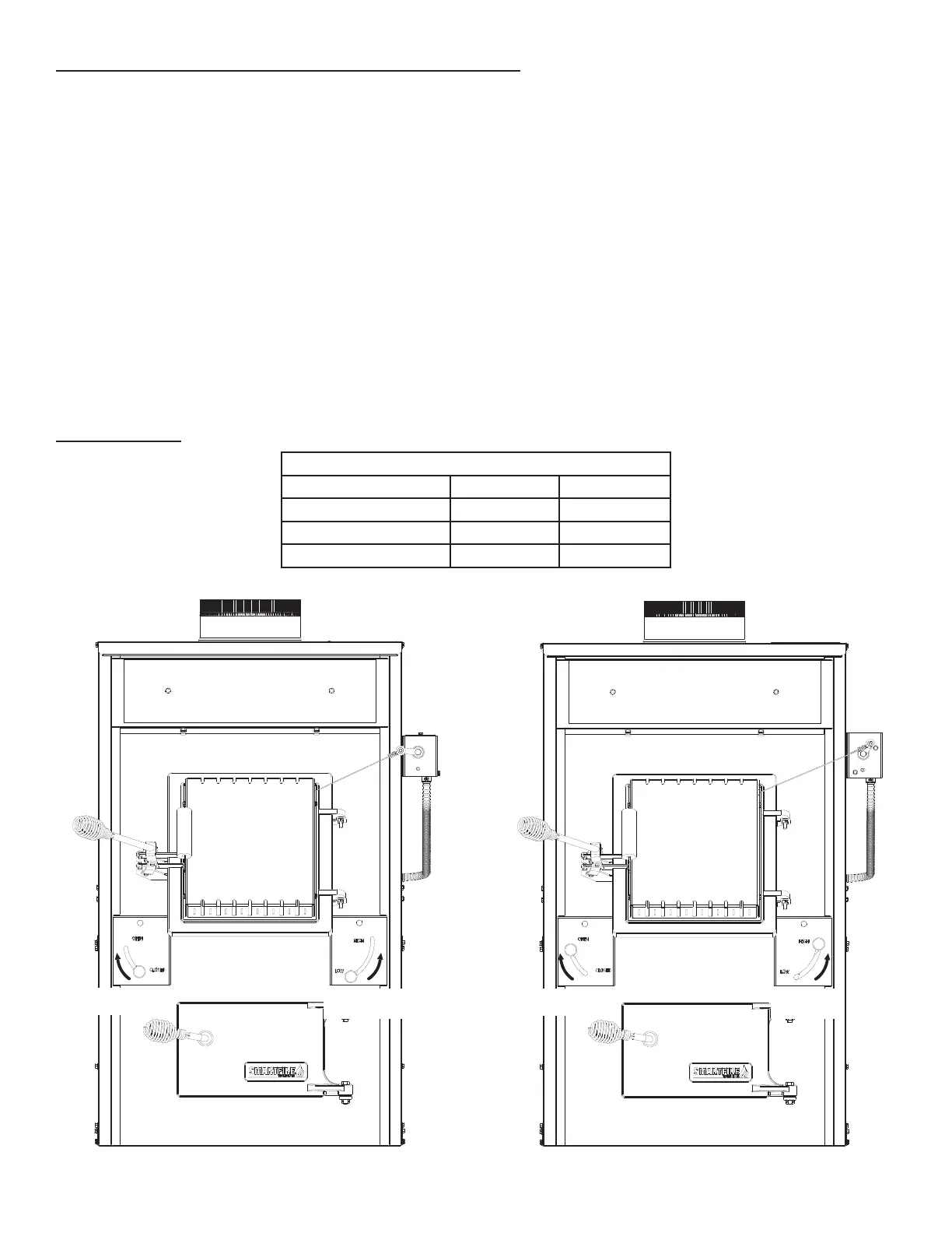
AIR CONTROL’S
FULLY CLOSED
Rear Pilot Air Damper
FULLY CLOSED
Secondary Air Damper
LOW BURN RATE SETTING
MAXIMUM BURN RATE SETTING
FULLY OPENED
Rear Pilot Air Damper
FULLY OPENED
Secondary Air Damper
AIR CONTROL’S
Low Burn Rate High Burn Rate
Primary Air Damper Fully Closed Fully Open
Rear Pilot Air Damper Fully Closed Fully Open
Secondary Air Damper Fully Closed Fully Open

Related product manuals