EasyManua.ls Logo

Ashley AG23 - Electrical Installation; Electrical Specifications; Wiring Requirements

Ashley AG23
96 pages
Print Icon
To Next Page IconTo Next Page
To Next Page IconTo Next Page
To Previous Page IconTo Previous Page
To Previous Page IconTo Previous Page
Loading...
44
© 2021 United States Stove Company
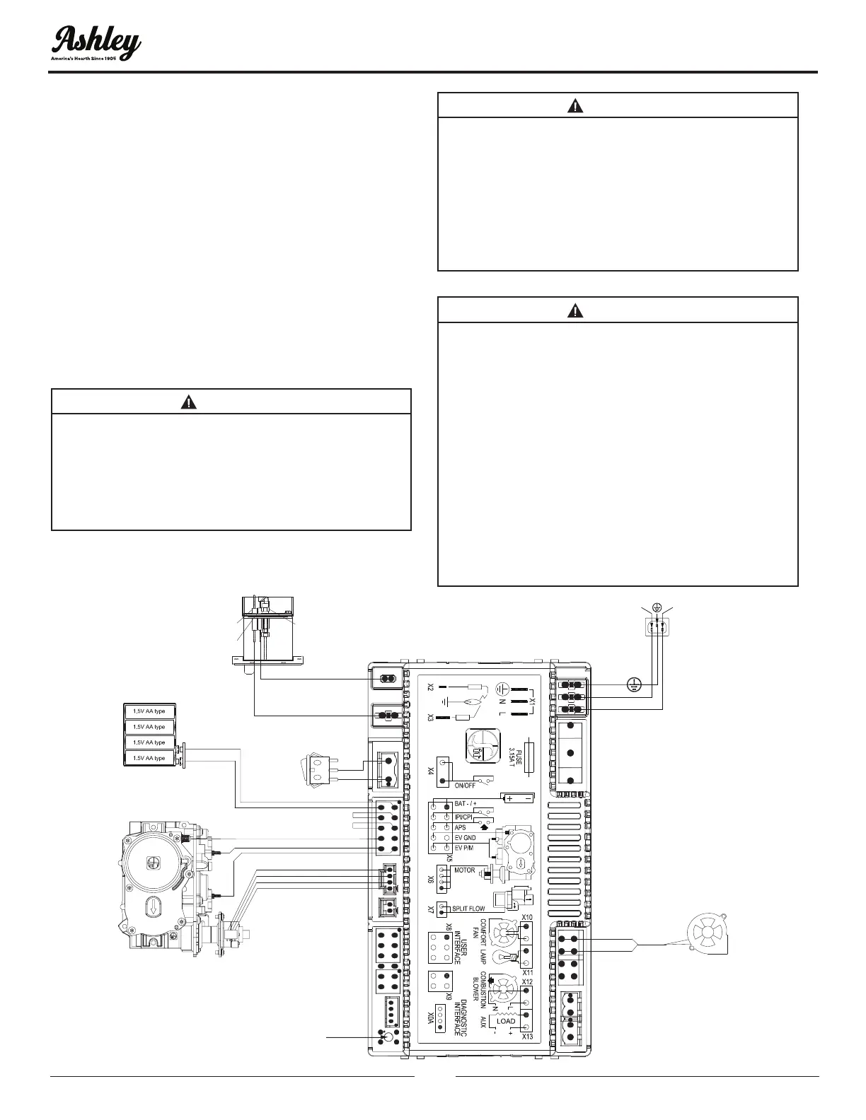
ELECTRICAL INSTALLATION
FEMALE
END
(OPTIONAL)
VARIABLE
SPEED FANS
GND
BATTERY
PACK
885 PROFLAME
MAIN ON/OFF
SWITCH
PILOT
PILOT
BURNER
FLAME
SENSOR
IGNITER
SW1 BUTTON (RED)
GND
N L
ELECTRICAL SPECIFICATIONS
This appliance, when installed, must be electrically
grounded in accordance with local codes, or in the
absence of local codes, with the National Electrical
Code, ANSI/NFPA 70, or the Canadian Electrical
Code, CSA C22.1.
WIRING REQUIREMENTS
The Ignition Module requires 120V of electricity and/
or batteries to operate.
Using the battery back-up will operate the burner
only.
Optional fan component will not function on
battery back up power.
WARNING:
DO NOT USE THIS UNIT IF ANY PART HAS
BEEN UNDER WATER. IMMEDIATELY CALL A
QUALIFIED SERVICE TECHNICIAN TO INSPECT
THIS APPLIANCE AND TO REPLACE ANY PART
OF THE CONTROL SYSTEM AND ANY GAS
CONTROL WHICH HAS BEEN UNDER WATER.
WARNING:
ELECTRICAL GROUNDING INSTRUCTIONS:
THIS APPLIANCE IS EQUIPPED WITH A
   
YOUR PROTECTION AGAINST SHOCK HAZARD
AND SHOULD BE PLUGGED DIRECTLY INTO
A PROPERLY GROUNDED THREE-PRONG
RECEPTACLE. DO NOT CUT OR REMOVE THE
GROUNDING PRONG FROM THIS PLUG.
WARNING:
ELECTRICAL CONNECTIONS SHOULD ONLY
BE PERFORMED BY A QUALIFIED, LICENSED
ELECTRICIAN. MAIN POWER MUST BE OFF
WHEN CONNECTING TO MAIN ELECTRICAL
POWER SUPPLY OR PERFORMING SERVICE.
ALL WIRING SHALL BE IN COMPLIANCE WITH
ALL LOCAL, CITY AND STATE CODES. THE
APPLIANCE, WHEN INSTALLED, MUST BE
ELECTRICALLY GROUNDED IN ACCORDANCE
WITH LOCAL CODES OR IN THE ABSENCE
OF LOCAL CODES, WITH THE NATIONAL
    

CSA C22.1.

Related product manuals