EasyManua.ls Logo

Asko D5536 FI - Installation; Installation overview; Safety instructions during installation; Setup and levelling

Asko D5536 FI
20 pages
Print Icon
To Next Page IconTo Next Page
To Next Page IconTo Next Page
To Previous Page IconTo Previous Page
To Previous Page IconTo Previous Page
Loading...
Installation
519
30-94
596
573
550
54
377
680-760**
30
670
195
444
49
700
821*-872
133-183
9
559
1198
[mm]
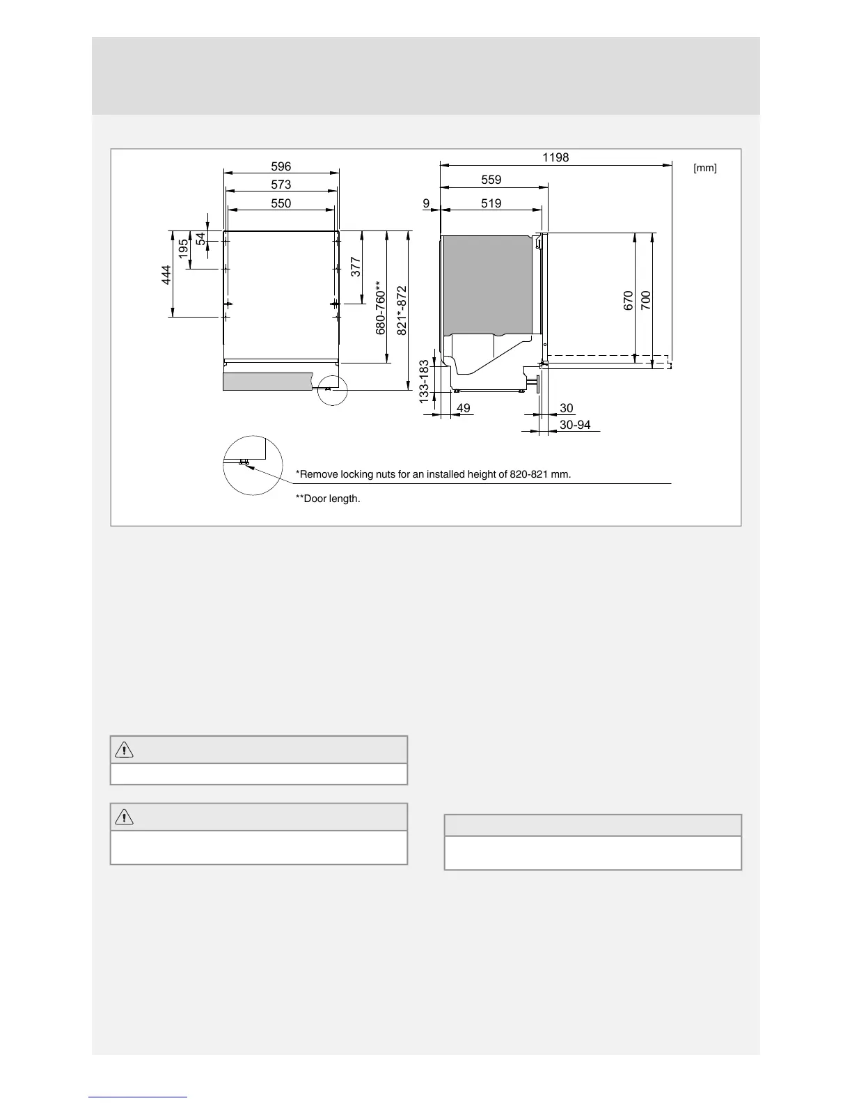
*Remove locking nuts for an installed height of 820-821 mm.
**Door length.
It is important that you read through and follow the instructions
and directions below. Conduct installation and connection in
accordance with the separate installation instructions.
Safety instructions
Connections to electricity, water and drainage must be per-
formed by a qualified professional.
Always follow applicable regulations for water, drainage and
electricity.
Take care during installation! Wear protective gloves! There
must always be two people!
Before screwing the dishwasher into place, test the dishwasher
by running the Rinse & Hold program. Check that the dish-
washer fills with water and drains. Check also that none of the
connections leak.
WARNING!
Turn off the water supply when installing the dishwasher!
WARNING!
The plug must be disconnected or power to the socket turned
off while the work is carried out!
Setup
The dimensions and connection information are included in
the separate installation instructions. Check that all dimensions
and connections are correct before commencing the installa-
tion. Note that the height of the exterior panel can be adjusted
to match other fittings.
Make sure the area on which the dishwasher is to be installed
is firm. Adjust the adjustable feet so that the dishwasher is
level. Tighten the lock nuts.
Stronger door springs are available for purchase for dishwash-
ers with a fitted wooden door. Springs are available for various
weights and sizes of wooden door. Door springs can be pur-
chased from the retailer who sold you the dishwasher.
Drainage connection
See the separate installation instructions for necessary informa-
tion.
The drainage hose may be extended by a maximum of 3 m (the
total length of the drainage hose must not exceed 4.5 m). Any
joins and connecting pipes must have an internal diameter of at
least 14 mm. However, the drainage hose should ideally be re-
placed with a new hose without joins.
No part of the drainage hose may be more than 950 mm above
the bottom of the dishwasher. The hose must not be routed direct-
ly to a floor drain or the like. In such cases, the hose can act as
a siphon and empty the dishwasher.
The hose must always discharge at least 350 mm above the
bottom of the machine.
Ensure that the drainage hose has no kinks.
NOTE!
The hose must be attached at the same height as the underside
of the sink.
Connection to water supply
Use only the supply hose provided with the dishwasher. Do not
re-use old hoses or other spare supply hoses.
The supply pipe must be fitted with a stopcock. The stopcock
must be easily accessible, so that the water can be shut off if the
dishwasher has to be moved.
Once the installation is complete, the stopcock should be opened
to allow the pressure to settle for a while and to check that all
connections are tight.
17

Related product manuals